logo

Houzz тур: Дача под Тарусой для большой творческой семьи

Современный деревянный дом с ностальгическим настроением и мастерской для живописи на открытом воздухе

Houzz Россия
Houzz Россия

23 мая 2019

Обновлено 26 июня 2019

Чтобы создать проект этого дома, архитектору надо было вдохновиться старыми дачами, окружающими участок. А чтобы обставить его — выбрать старинную мебель из личной коллекции хозяйки дома.
Houzz тур: Дача под Тарусой для большой творческой семьиАлексей Дунаев
С семьей заказчиков архитекторы Алексей Дунаев и Марианна Запольская уже были хорошо знакомы: делали для них прежнюю дачу, где требовалась реконструкция и преобразование старой постройки. А еще спроектировали интерьер другого загородного дома — в модном поселке с серьезными блокпостами охраны, в престижном доме-усадьбе. Но жить там семья не смогла: им оказалась больше по душе свободная атмосфера, ностальгические пейзажи с маленькими седыми домиками и соседство с творческими людьми.
Houzz тур: Дача под Тарусой для большой творческой семьиАлексей Дунаев
О проекте
Место:
Подмосковье
Год: 2018
Размер: 350 кв.м на участке в 8 соток
Кто здесь живет: 4 поколения большой семьи
Авторы проекта: архитекторы Алексей Дунаев и Марианна Запольская, архитектурное бюро «ПРОЕКТ905»
Фото: Полина Полудкина
Houzz тур: Дача под Тарусой для большой творческой семьиАлексей Дунаев
Как только появилась возможность поменять элитный поселок на уютный пейзаж там, где семья привыкла отдыхать в прежние годы, заказчики продали новый дом с готовым интерьером и купили землю недалеко от реки Оки.

Надо было построить вместительное здание — здесь живут не только заказчики, но и их пожилые мамы, сын с женой и внуки. К тому же семья любит принимать большие компании. В окружающем пейзаже новый дом должен был не доминировать над старыми постройками, а напротив, приблизиться к ним по духу.
Houzz тур: Дача под Тарусой для большой творческой семьиАлексей Дунаев
Перепад высот
Рельеф участка со значительным уклоном к реке представлял дополнительную сложность для проектирования. Хозяевам же хотелось, чтобы интерьер отражал особенности рельефа, чтобы можно было переходить с уровня на уровень внутри дома.
Houzz тур: Дача под Тарусой для большой творческой семьиАлексей Дунаев
План участка
Houzz тур: Дача под Тарусой для большой творческой семьиАлексей Дунаев
Разрез дома с перепадом высот
Houzz тур: Дача под Тарусой для большой творческой семьиАлексей Дунаев
Компромисс между современностью и стариной
Алексей рисовал один эскиз за другим, но предложенные варианты не устраивали заказчиков — все казалось им слишком современным: «Мне ближе модернистская архитектура. Хозяйка же говорила: “Очень красиво, но сделать нужно так…”, а потом показывала мне настоящую избушку». Новый проект дома (к слову, 17-й по счету!) появился в мыслях Алексея сразу целиком: деревянный дом с очертаниями двух стоящих рядом домиков с двускатной крышей.

Дом каркасный — из клееного бруса на монолитном железо-бетонном фундаменте. Часть дома там, где идет понижение участка, нависает над землей, выступая за фундамент. В том месте, где расположена гостиная, на фасаде от монолитной плоскости стены отделяется прямоугольный консольный эркер.
Houzz тур: Дача под Тарусой для большой творческой семьиАлексей Дунаев
Цвет фасада
Снаружи и внутри дом отделали обычной сосной: «Мы захотели сделать фасады “живого” цвета состарившегося дома — здание довольно большое, но в таком цвете кажется меньше». Алексей восстановил старую шведскую технологию обработки дерева, самостоятельно сделал выкрасы, передал на производство нужный образец и инструкцию по старению материала. Правда, на производстве сосна оказалась более молодой, чем те доски, над которыми экспериментировал Алексей, и материал неожиданно приобрел зеленоватый оттенок: «Это был ужасный цвет! Но за сезон дом почернел до нужного оттенка».
Houzz тур: Дача под Тарусой для большой творческой семьиАлексей Дунаев
Деревянные рамы с мелкой разбивкой окон (на такой настаивала хозяйка) покрасили в темно-серый цвет с синевато-зелёным оттенком — это был компромисс между желанием заказчицы иметь оконные переплеты яркого цвета и идеей архитектора сделать их темно-серыми.

По уличному и садовому фасаду на уровне второго этажа фрагменты фасада отделаны теми же листами металла, что и крыша. На их темно-серой плоскости отражаются рефлексы неба, так что они перекликаются с цветом оконных рам.
Houzz тур: Дача под Тарусой для большой творческой семьиАлексей Дунаев
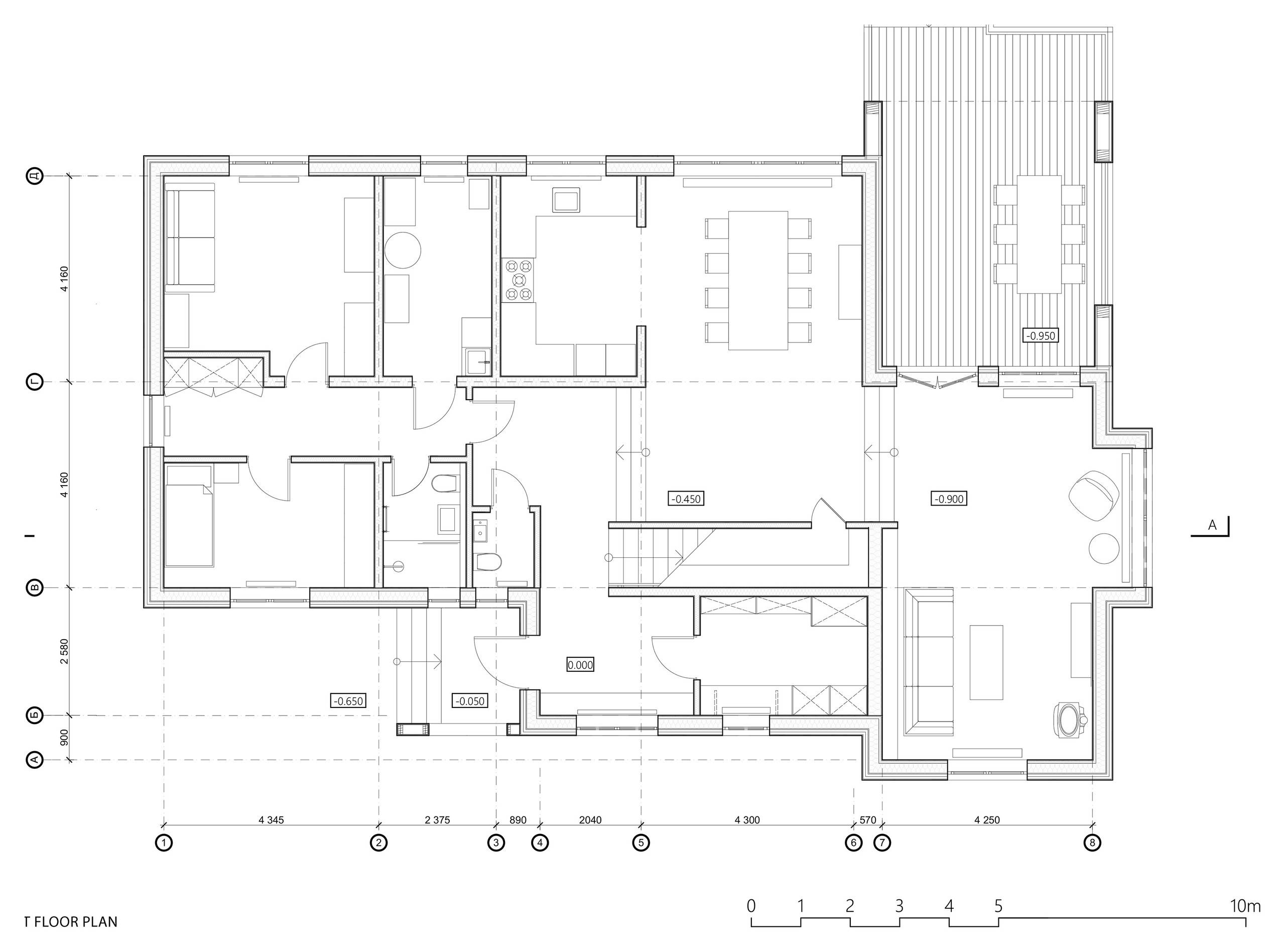
План первого этажа
На одном уровне со входом, налево от него, архитектор расположил две комнаты для мам заказчиков. В правую часть дома, где расположена столовая и объединенная с ней кухня, можно пройти, спустившись на три ступени вниз, на средний уровень первого этажа. Еще три ступени вниз ведут на нижний уровень — в гостиную с выходом на веранду, где стоит большой уличный обеденный стол.
Houzz тур: Дача под Тарусой для большой творческой семьиАлексей Дунаев
На второй этаж из холла поднимается лестница, выстроенная между двух стен. Прямо напротив входа в дом — большая гардеробная. Газовый котел, который отапливает дом, расположен в бойлерной напротив туалета на первом этаже.

На чем сэкономили:
Первоначально хозяева задумывали отделать весь дом лиственницей, но это выходило за рамки бюджета. Тогда стены и потолки решили зашить традиционной сосной, а лиственницу положить только на пол.
Houzz тур: Дача под Тарусой для большой творческой семьиАлексей Дунаев
Кухонная мебель ИКЕА

КУХНЯ
П-образную кухню с мойкой у окна обставили типовой модульной мебелью. Фартук сделали из белой квадратной плитки. Стену над плитой украсили фаянсовыми блюдами из коллекции хозяев.
Houzz тур: Дача под Тарусой для большой творческой семьиАлексей Дунаев
СТОЛОВАЯ
Для больших компаний, когда в дом приезжают все дети и внуки хозяев или друзья, на заказ сделали длинный обеденный стол. Стены по обе стороны от него украсили картинами из коллекции владельцев. Справа на стене у прохода на кухню — портрет хозяина дома работы художника Николая Ватагина.
Houzz тур: Дача под Тарусой для большой творческой семьиАлексей Дунаев
Весь дом освещают точечные светильники, так называемый технический свет. Но для обеденного стола специально нашли антикварную люстру — сначала хозяйка хотела повесить светильник с тканевым абажуром, но Алексей уговорил выбрать стеклянный вариант. Старинный буфет и стулья хранились в коллекции хозяйки, им нужно было найти лишь подходящее место в новом доме.
Houzz тур: Дача под Тарусой для большой творческой семьиАлексей Дунаев
ГОСТИНАЯ
Пространство гостиной хорошо просматривается через широкий портал из столовой. Единственная граница между помещениями — лестница на этот, самый низкий, уровень первого этажа. Три больших окна выходят на разные стороны, открывая вид на весь участок. Маленькие форточки в окнах, прибавляющие ностальгического уюта, сделаны по просьбе хозяйки.
Houzz тур: Дача под Тарусой для большой творческой семьиАлексей Дунаев
На чем сэкономили: Значительная часть обстановки дома — старинная мебель, часто столетней давности, купленная на блошиных рынках хозяйкой дома. Но вот ярко-синее кресло имеет другую историю — советскую модель 1970-х нашли в полуразвалившемся доме, который продавался вместе с участком, подреставрировали и переобили.
Houzz тур: Дача под Тарусой для большой творческой семьиАлексей Дунаев
В дальней части гостиной по желанию хозяев установили чугунную печку-буржуйку. Для безопасности стену за ней закрыли оштукатуренным листом изоляции, на пол положили металлический лист.

На чем сэкономили: Напротив печки вдоль стены установили невысокий стеллаж: его смастерили из досок строители. Такую же бюджетную систему хранения сделали в хозяйской спальне.
Houzz тур: Дача под Тарусой для большой творческой семьиАлексей Дунаев
ВЕРАНДА
Выход на веранду расположен слева от эркера в гостиной. Здесь для посиделок на свежем воздухе поставили еще один огромный стол, сделанный на заказ.
Houzz тур: Дача под Тарусой для большой творческой семьиАлексей Дунаев
С веранды есть выход в сад. Неподалеку от дома возвели еще одну постройку — мастерскую, где хозяин дома проводит время вместе с внуками, вырезая поделки. При входе в эту уличную мастерскую архитекторы сделали «колоннаду» — скат крыши поддерживают четыре опоры из обычных поваленных деревьев с торчащими сучьями.
Houzz тур: Дача под Тарусой для большой творческой семьиАлексей Дунаев
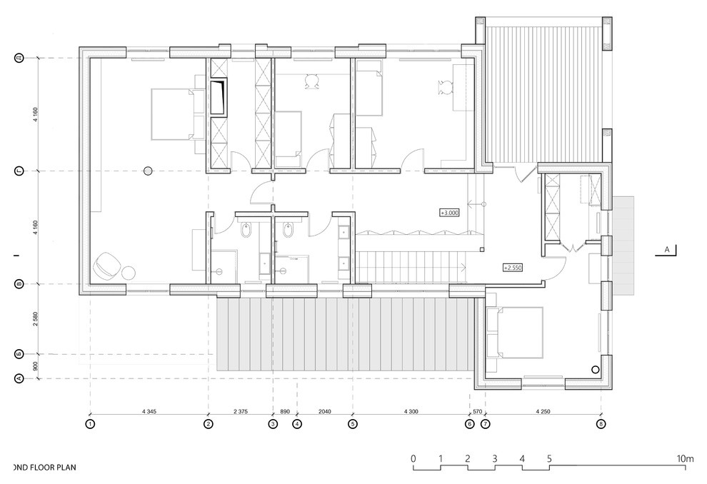
План второго этажа
На втором этаже тоже есть перепад уровней. На площадке чуть ниже основного уровня — вход в спальню семьи сына и гардеробную. Оттуда же, с лестницы, есть выход на глубокий балкон под двускатной крышей.
Houzz тур: Дача под Тарусой для большой творческой семьиАлексей Дунаев
По правой стороне на основном уровне — двери в две детские для внуков. Слева в конце галереи — общая ванная комната.

Вместо обычной ограды галереи архитекторы устроили дополнительное место для хранения — здесь хозяйка держит постельное белье. За дверью в конце коридора — вход в хозяйский блок со спальней, своей ванной комнатой и гардеробной.
Houzz тур: Дача под Тарусой для большой творческой семьиАлексей Дунаев
В хозяйской спальне: бра Tolomeo, Artemide
Houzz тур: Дача под Тарусой для большой творческой семьиАлексей Дунаев
ХОЗЯЙСКАЯ СПАЛЬНЯ
Архитектурная особенность спальни — несущая колонна, на которую приходится часть нагрузки крыши. «И мне, и хозяевам не нравятся оцилиндрованные бревна, — поясняет Алексей. — Я нарисовал в проекте кривое дерево — настолько, чтобы оно все же выполняло конструктивную функцию. Мы долго искали подходящее бревно — крепкое старое дерево найти тяжело».

Простую деревянную кровать хозяйка купила на дороге по пути к даче и сама покрасила каркас в зеленый цвет. Светильники же в изголовье, наоборот, поставили дизайнерские — это то немногое, что хозяева решили перенести из предыдущего дома в элитном поселке.
Houzz тур: Дача под Тарусой для большой творческой семьиАлексей Дунаев
В хозяйской ванной комнате: керамическая плитка и раковина VitrA; зеркало ИКЕА
Houzz тур: Дача под Тарусой для большой творческой семьиАлексей Дунаев
ХОЗЯЙСКАЯ ВАННАЯ
В хозяйском санузле выстроили большую душевую кабину. Мебель сделали на заказ из ангарской сосны по эскизу архитекторов — конструкция рассчитана так, что в большой столешнице есть щели на случай повышенной влажности, а крепеж незаметен.
Houzz тур: Дача под Тарусой для большой творческой семьиАлексей Дунаев
БАЛКОН ДЛЯ ЖИВОПИСИ
Архитекторы постарались учесть все пожелания большой семьи — в доме есть даже место для живописи на открытом воздухе: хозяйка любит рисовать. Отсюда, со второго этажа, открывается вид на невысокие дома соседей и бесхитростный и оттого особенно милый сердцу пейзаж.

СМОТРИТЕ ТАКЖЕ…
Зимние фотографии дома в профиле архитекторов
Houzz тур: Дача под Тарусой для большой творческой семьиАлексей Дунаев
ОБ АВТОРАХ ПРОЕКТА…
Перейдите на страницу Алексея Дунаева и Марианны Запольской, архитектурное бюро «ПРОЕКТ905», чтобы изучить другие работы из портфолио архитекторов
________________________
В ВАШЕМ ГОРОДЕ …
Найдите архитектора на Houzz — закажите собственный проект

У ВАС ЕСТЬ ДЛЯ НАС ПРОЕКТ…
Загрузите съёмку в свой профиль на Houzz, отправьте ссылку с кратким описанием на editorial@flatica.ru

Для справки: Какие объекты мы публикуем

Комментарии 44

ух ты))!! какая необычная и красивая вещь вышла. Так артистично и ненавязчиво. Улыбался когда смотрел. Спасибо вам!!
Прекрасный дом! Зря переживали за цвет фасада - в итоге получился очень приятный оттенок, отлично вписывающийся в окружающее пространство.
Как же хорошо.

Оставьте комментарий

Читать похожие статьи