logo

Houzz тур: Бывший евроремонт на Рублёвке

От прежнего интерьера оставили кухню. Алую

Евгения Назарова
Евгения Назарова

24 янв. 2018

Обновлено 18 февр. 2018

Постоянный автор Houzz, интерьерный журналист

Архитектор, дизайнер и декоратор Елена Корнилова назвала ход работы над этим проектом «пластической операцией»: владельцы попросили кардинально изменить стиль интерьера, но по возможности не трогать конструктив. Это оказалось сложнее, чем создать проект с нуля, и всё-таки операция удалась. Сэкономленную на отделке часть бюджета потратили на винтаж из галерей Европы и Америки.

О проекте
Место:
Москва, Рублёво-Успенское шоссе
Размер: 200 кв.м
Кто здесь живёт: молодая пара
Автор проекта: Елена Корнилова
Houzz тур: Бывший евроремонт на РублёвкеElena Kornilova
Квартиру в одном из клубных поселков в районе Рублево-Успенского шоссе супруги купили у друзей. Первые владельцы успели сделать в ней евроремонт, но вскоре уехали жить за границу. Новые хозяева хотели сохранить максимум от старой отделки, но избавиться от всех примет устаревшего стиля.
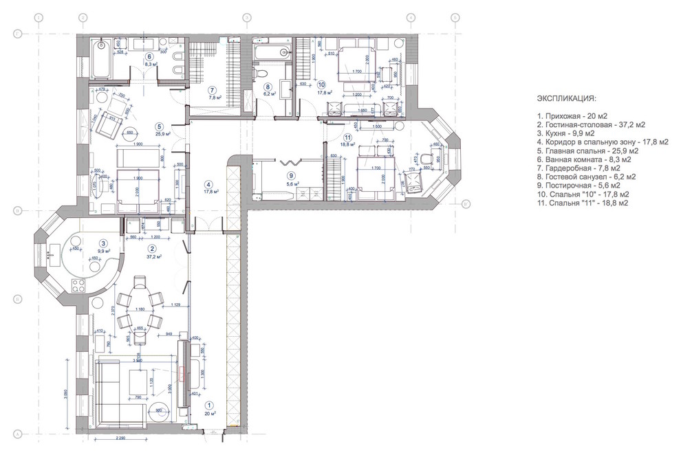
Планировка квартиры с круглой кухней Единственным препятствием, по словам дизайнера, стало отсутствие грузового лифта — только парадный, в котором запрещено поднимать строительные материалы. Проблемы решали по мере поступления: что-то подрядчики поднимали вручную, а что-то, небольшое и не пачкающее, удалось подвезти на пассажирском лифте. От прежнего интерьера оставили паркет, который привели в порядок, кухонный гарнитур сложной формы и некоторые детали отделки. Планировка изменилась лишь в деталях: между прихожей и гостиной установили витражные двери, а одну из спален объединили с кабинетом.
Houzz тур: Бывший евроремонт на РублёвкеElena Kornilova
КОРИДОР Входную группу продолжает длинный коридор с линией шкафов. При входе расположили консоль и два зеркала, изготовленные по авторским эскизам.
Houzz тур: Бывший евроремонт на РублёвкеElena Kornilova
На дальней стене коридора появился арт-акцент: работа франко-японского художника Микао Коно, написанная в 1930 году. В целом стилистика ушла от евроремонта в сторону эклектики. « Мои заказчики — молодая пара, оба следят за современными тенденциями, но при этом ценят традиции. Поэтому в интерьере уживаются классические и современные предметы » , — поясняет Елена Корнилова.
Ещё одна конструктивная особенность квартиры — балка, разделяющая коридор: её обыграли декоративной лепниной. « Я нашла старинную материю начала ХХ века, которая меня очень впечатлила. По мотивам орнамента нарисовала панно, которое мы вылепили из гипса и поместили на балку с обеих сторон. Так дефект превратился в эффект » , — рассказывает дизайнер.
Houzz тур: Бывший евроремонт на РублёвкеElena Kornilova
ГОСТИНАЯ Палитра стен — нейтральный жемчужно-серый оттенок. « Я всегда выбираю те оттенки, которые идут интерьеру, с учетом цветовых предпочтений заказчика. Это равносильно тому, что одному человеку идет синее платье, а другому — бежевое. Все это обусловлено освещением и природными данными квартиры: площадью, высотой потолка и конструктивом » , — поясняет автор. Акценты в интерьере — не яркие, но заметные: например, камин из оникса и зеркало с латунной раскладкой, созданные по эскизам дизайнера.
Houzz тур: Бывший евроремонт на РублёвкеElena Kornilova
На фото: диван Mary’s corner — салон Fifth Avenue , люстра — итальянский винтаж 1960-х, парные стулья середины XIX века привезены из Америки Почти всю мебель в проекте сделали по авторским чертежам, а обстановку «разбавили» винтажными и антикварными предметами, которые дизайнер собрала во время поездок по европейским и американским галереям. К моменту переезда хозяев в квартире уже появилась коллекция картин: подбор предметов искусства не на шутку увлёк владельцев. Вопросами стройки заказчики почти не занимались: все технические вопросы взяла на себя Елена Корнилова.
Houzz тур: Бывший евроремонт на РублёвкеElena Kornilova
КУХНЯ Округлая форма кухни обусловлена архитектурой здания, и дизайн этой зоны стал для Елены настоящим вызовом. Красные фасады решили оставить от прошлого ремонта, так как замена не вписывалась в бюджет: скругленные фасады стоят дороже стандартных. Внешний вид кухни изменили с помощью декораторских приёмов: к фасадам подобрали нужный оттенок стен, потолочный карниз, латунные фартук и плинтус. Для большей графичности нижние шкафы дополнили столешницей из черного гранита. Плинтус и латунную фурнитуру дизайнер привезла из Парижа. В круглой стене между кухней и гостиной предусмотрено внутреннее окно — его дополнили художественным стеклом.
Houzz тур: Бывший евроремонт на РублёвкеElena Kornilova
На фото: люстра из Италии, 1960-е; б ра в форме змеек из Индии, 1930-е; л ампа и торшер из Франции, 1950-е СПАЛЬНЯ Тональность интерьера в целом сдержанная: она служит фоном для экзотических предметов обстановки: здесь и комод из эвкалиптового дерева, туалетный столик из корня мадроны и коллекция винтажных светильников. Стену в изголовье кровати украшает уменьшенный вариант скульптуры Сергея Соболева « Венера » , изготовленный для этого проекта.
Houzz тур: Бывший евроремонт на РублёвкеElena Kornilova
ВАННАЯ Пол в ванной комнате при спальне был оформлен мрамором, но посередине выложен паркетом. Это решение казалось странным и дизайнеру, и заказчикам. Чтобы сохранить существующий камень и сделать границу между новым и старым покрытием незаметной, Елена создала графичный « ковер » из черного и бежевого мрамора. Композицию дополняет крупная раковина из чёрного мрамора. На фото: люстра и бра из Франции, 1930 – 1940
Houzz тур: Бывший евроремонт на РублёвкеElena Kornilova
ГОСТЕВАЯ СПАЛЬНЯ Кроме хозяйской, в квартире две гостевых спальни, наполненных винтажной мебелью и светильниками. На фото: кровать Mariе’s corner; винтажное к ресло из Италии, 1940-е; л юстра из Италии, 1960-е; л ампы из ореха и состаренной бронзы — Америка, 1960-е
ГОСТЕВАЯ СПАЛЬНЯ На фото: все светильники — итальянские винтажные модели 1960 годов
ГОСТЕВОЙ САНУЗЕЛ Натуральный травертин совместили с многослойной художественной покраской: покрытие имитирует шелк своими тонкими сложными оттенками с напылением перламутра. На фото: люстра и бра из Франции, 1930-е; с месители Nikolazzi; зеркало сделано на заказ по авторскому чертежу ОБ АВТОРЕ ИНТЕРЬЕРА… Перейдите на личную страницу Елены Корниловой , чтобы изучить другие работы из портфолио дизайнера или заказать собственный дизайн-проект КАК ЗАДАТЬ ВОПРОС ДИЗАЙНЕРУ … Если у вас остался вопрос по маркам и конструктивным решениям, на который вы не нашли ответа в статье, спросите напрямую у автора этого проекта. Откройте нужное фото в полноэкранном режиме, найдите кнопку « задать вопрос » в правом нижнем углу и напишите свой. Дизайнер получает уведомления о каждом вопросе, добавленном к его фотографиям У ВАС ЕСТЬ ДЛЯ НАС ПРОЕКТ… Загрузите съёмку в свой профиль на Houzz, отправьте ссылку с кратким описанием на editorial@flatica.ru. Для справки: Какие объекты мы публикуем

Комментарии 34

Кое-что местами понравилось, но больше вызывает недоумение... Нет целостности, нет идеи... Евроремонт рулит..
...не хватает большого американского пылесоса 50-х годов...
Потрясающие люстры!

Оставьте комментарий

Читать похожие статьи