Houzz тур: Большая квартира, где у хозяев 2 девочки и 2 мальчика

Интерьеры здесь строгие и светлые, как мрамор построек Древней Греции. Так и не скажешь, что в семье четверо детей

Яна Иванченко
Яна Иванченко

27 апр. 2020

Обновлено 14 июня 2020

Постоянный автор HouzzRU, историк искусства. Интерьерный журналист с 2004 года, работала внештатным автором в журнале SALON и для его приложений «Техномания» и «Декор», писала статьи для журналов «Идеи вашего дома» и Interior Digest, для приложений к журналу «Интерьер+Дизайн» («100% ВАННЫЕ» и «100% КУХНИ»), а также для Elle Decoration (под именем «Антонина Носикова»). . . Несколько лет посвятила дизайн-бюро, занимавшемуся архитектурой и мебелью, где работала заместителем директора, знакома со сложным и увлекательным процессом воплощения проектов в жизнь не понаслышке.

Эта квартира находится в жилом комплексе, где каждый корпус назван в честь одного из древнегреческих богов: Зевса, Геры, Гермеса, Диониса… А на детской площадке между ними стоит корабль аргонавтов. Добавить в интерьеры элементы неоклассики было просто необходимо, считает его автор, дизайнер Наталья Преображенская.
О проекте
Место: ЖК «Донской Олимп», Москва
Размер: 141 кв.м
Год: 2020
Кто здесь живёт:
Дизайнер проекта: Наталья Преображенская, студия «Уютная Квартира»
Фото: Сергей Ананьев
Стилист: Дарья Соболева
Хозяева квартиры родом из Узбекистана. Это очень чадолюбивое семейство — глава семьи принял решение переехать в Москву, когда в доме зашла речь, какое образование должны получить дети. Семья выбрала для них школы при ведущих технических ВУЗах России — РЭУ им. Плеханова и МГТУ им. Баумана. Обосновавшись в Москве, супруги и четверо детей (от пяти до пятнадцати лет) в итоге переехали в большую квартиру в новостройке. Дизайн интерьеров доверили студии «Уютная Квартира» Натальи Преображенской.
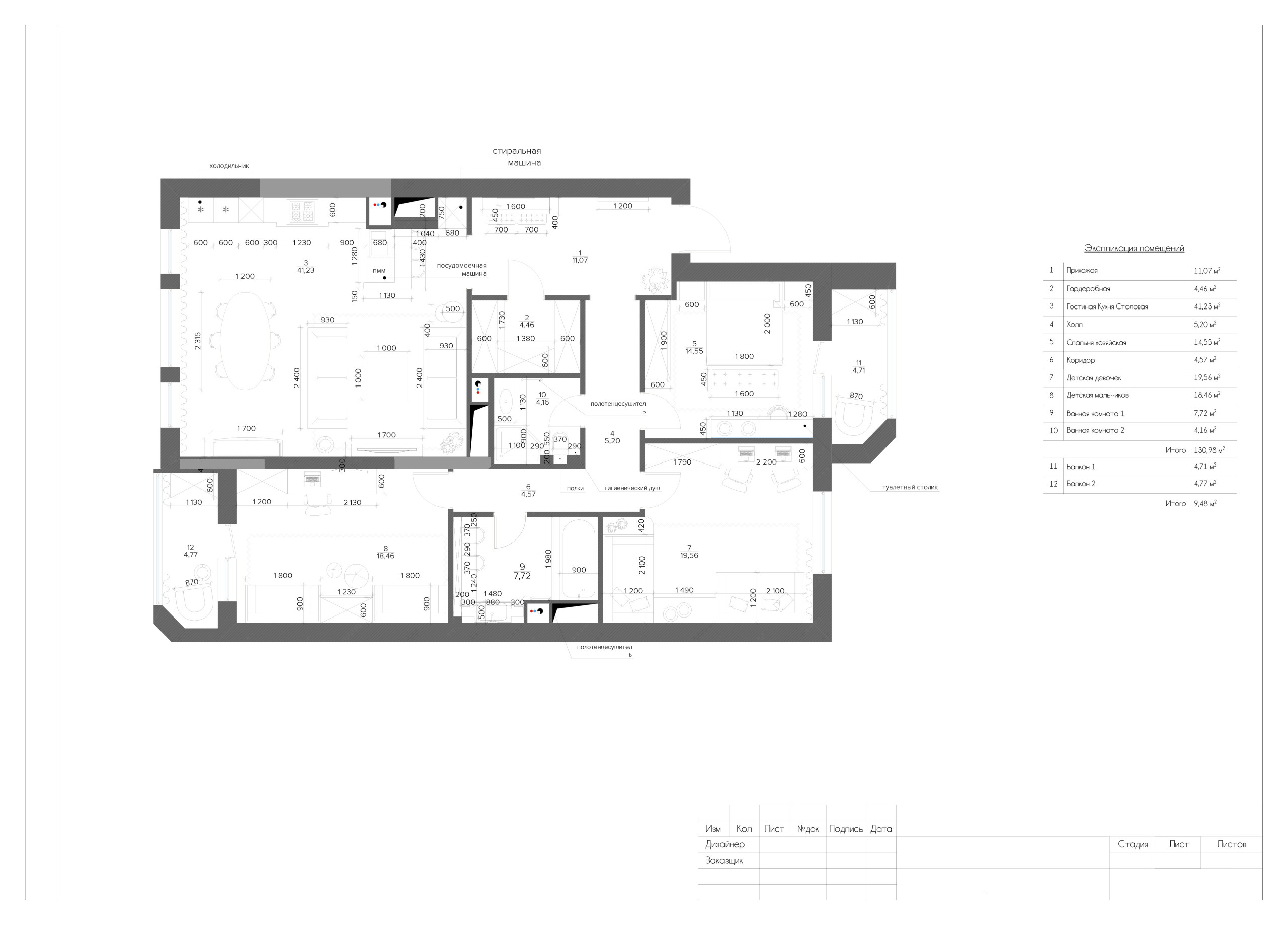
План квартиры

ПЛАНИРОВКА
Прямо из холла-прихожей открывается вид на кухню-гостиную с большим окном — благодаря ему всё пространство прихожей залито светом. Налево от входной двери — длинный Г-образный коридор, ведущий в приватные помещения: хозяйскую спальню с санузлом напротив входа в нее, две большие детские и ванную комнату между ними.
ПРИХОЖАЯ-ХОЛЛ И КОРИДОР
По желанию заказчика для отделки квартиры подбирали материалы премиум-класса. Полы в прихожей и коридоре выложили светлым мрамором с контрастным окаймлением, добавили высокий профилированный плинтус. Поверхность стен структурировали разбивкой гисповыми молдингами на декоративные филенки.

При холле есть отдельная гардеробная площадью 4,5 кв.м — это практичное решение позволило убрать из входной части лишние вещи и придать этой части репрезентативный характер. Напротив гардеробной дизайнер поставила вместительную обувницу с двумя банкетками. Белую консоль у зеркала также выполнили на заказ.
На фото: справа дверь в гостевой санузел, слева дверь в родительскую спальню, за ней — вход в комнату девочек

Обратите внимание: контрастное решение пола подчеркнуто и оформлением дверей — полотна дверей и дверные коробки темные, а наличники выбраны светлые. Это отдельное пожелание заказчика при разработке проекта — такое сочетание использовано в интерьерах в его любимом фильме.


В холле и коридоре: краска Roling Fog – Dark (№160), Little Greene; обувница и консоль на заказ — мебельная студия Sunday; картина над консолью в холле — Валерий Песин; лампы и аксессуары MoonStores
КУХНЯ-ГОСТИНАЯ
Главное помещение квартиры разделили на три большие зоны. У окна, под объемной люстрой поставили обеденный стол. За ним в дальней части комнаты — зона отдыха с двумя диванами. Справа от окна — широкая кухня, занявшая всю стену до выступа стояка и воздуховода. Его дизайнер обыграла широкой барной стойкой, которая органично закольцовывает пространство кухни-гостиной — она расположена ровно напротив зоны отдыха.
Пол в основном пространстве гостиной выложили модульным паркетом из брашированного дуба. По краям и в зоне кухни продлили мраморную отделку холла — светлый Crema Marfil в обрамлении полос темного мрамора Emperador Dark. Потолок в центральной части гостиной зрительно приподняли. Гипсовая лепнина выполнена на заказ по индивидуальному проекту.
Архитектурный язык классики — профилированные карнизы, декоративные пилястры (в деталях кухни) — сочетается в интерьере с элементами в духе ар деко. Лаконичная гамма объединяет разнохарактерные вещи в единый ансамбль.

Сперва заказчик хотел сделать здесь белые стены, но дизайнер убедила добавить легкий оттенок. Хозяева долго и тщательно согласовывали цвет стен гостиной, холла и коридоров — стены в гостиной немного светлее и холоднее, чем в проходной части квартиры.
Двуцветная немецкая кухня — наиболее классическая часть интерьера кухни-гостиной. Две глухие секции у окна отвели под большой холодильник — с расчетом на шестерых членов семьи. В соседней секции, также уходящей под потолок, — духовка и СВЧ-печь.
В центре кухни, где установлена варочная поверхность, нижняя часть выступает вперед небольшим ризалитом — выдвижные ящики оформлены по краям канеллированными пилястрами с резными капителями. Это не только элемент декора кухни — за ними спрятаны узкие выдвижные секции.
Мойка интегрирована в угловую часть кухни, переходящую в «полуостров» с барной стойкой. В нем с краю, со стороны рабочей зоны, спрятана посудомоечная машина. Ширина полуострова — больше метра, так что с обратной стороны от машины достаточно места для ног сидящего.

Глухой торец барной стойки, фартук и рабочая поверхность кухни отделаны крупными слэбами натурального камня — дизайнер подобрала белый греческий мрамор сорта Volakas с эффектным рисунком серых жил.
В кухне-гостиной: краска Mortar (№239), Little Greene; модульный дубовый паркет Finexfloors; кухня Leicht; люстра и бра Hudson Valley; текстиль Sanderson; подушки на диване Enere; посуда Дом Фарфора; вазы и большая картина над консолью Moon Stores; триптих над диваном из галереи Carrie d’Atistes; поставка краски, лепнины, текстиля — мастерская 40/19
ГОСТЕВОЙ САНУЗЕЛ
Небольшой гостевой санузел вместил угловую душевую. Слева от двери — широкий умывальник в легкой металлической раме. Стены душевой отделаны эффектной плиткой в форме гексагонов с золотыми вставками (геометрический узор из гексагонов есть на шторах в гостиной).
В гостевом санузле: керамогранит Marvel Edge, Atlas Concorde
ХОЗЯЙСКАЯ СПАЛЬНЯ
Комната родителей — самая маленькая из трех приватных помещений квартиры. На лоджии при ней разместилась небольшая зона отдыха с уютным креслом и шкафом напротив. На пол во всех спальнях положили инженерную доску шириной 140 мм.
Оттенок стен для спальни и мебели в ней выбрали более теплый, чем в гостиной, но сохранили классическую разбивку молдингами в изголовье кровати. Потолок украсили хрустальной люстрой. Всю мебель сделали на заказ. Крупные настольные лампы и высокое изголовье кровати придали стилю спальни характер американской классики.
В спальне: постельное белье Atelier Tati; картина Валерий Песин; настольные лампы MoonStores
КОМНАТА ДЕВОЧЕК
Корпусную мебель для детских сделали на заказ. В ближайшей к родительской спальне разместились старшие дочери— десяти и пятнадцати лет. Интерьер их комнаты решен в мягкой серо-розовой гамме.
В комнате девочек: корпусная мебель, комод на заказ Sunday; фотообои на заказ — мастерская 40/19; постельное белье Atelier Tati; ковёр Art DeVivre; картины из галереи Carrie D’Artistes Moscow

Обратите внимание: горошек на стены нанесен вручную — вверху горошины чуть ближе друг к другу, отчего декор смотрится живее.
ВАННАЯ КОМНАТА
Большая ванная разделяет детские девочек и мальчиков. Главное украшение 8-метровой ванной — панно из керамогранита огромного формата в раскладке «бабочкой».
В ванной комнате: керамогранит Maxfine ARABESCATO

ЧИТАЙТЕ ТАКЖЕ…
Что лучше: Мрамор или керамогранит под мрамор
В комнате мальчиков:
корпусная мебель на заказ Sunday; плед HM Home


КОМНАТА МАЛЬЧИКОВ
Хотя мальчики еще маленькие — младшему всего пять, а старший закончил первый класс — их комната сделана на вырост. Большое панно во всю стену с ретро-фотографией Нью-Йорка сделано с подсветкой — вечером город загорается.
_______________________

ОБ АВТОРЕ ПРОЕКТА…
Перейдите на страницу Натальи Преображенской, студия «Уютная Квартира», чтобы изучить другие работы в ее портфолио
_______________________


У ВАС ЕСТЬ ДЛЯ НАС ПРОЕКТ…
Загрузите съёмку в свой профиль на Houzz, отправьте ссылку с кратким описанием на editorial@flatica.ru

Для справки: Какие объекты мы публикуем

Комментарии 40

Alya

5 л.

стильно, красиво. Жаль, что нет восточного колорита ... я живу в Казахстане, это страна кочевников. такой культуры ремесел как в оседлом Узбекистане, у нас не было ... вот и покупаем здесь узбекские пиалки и коврики, чтобы привнести этот чудесный стиль в свои дома ...
Подскажите, где купить кровати для мальчиков с этого проекта ?
Мягкое и приятно-жилое колористическое решение.

Оставьте комментарий

Читать похожие статьи