logo

Houzz тур: Бетонный лофт в однокомнатной квартире в Красногорске

Рассказываем, как в короткие сроки и за небольшие деньги оформить квартиру в стиле лофт

Houzz Россия
Houzz Россия

14 дек. 2015

Обновлено 3 янв. 2016

Пара молодых людей с ребенком, купивших квартиру в подмосковном Красногорске, собирались жить в ней не долго, около трех лет. У новой квартиры изначально был типичный для новостройки вид: бетонные стены, пол и перекрытие потолка, а также кирпичные перегородки в санузле.

Перед дизайнерами из бюро «Однушечка» заказчики поставили вполне конкретную задачу: при минимальном бюджете максимально сохранить то, что уже есть. В первую очередь, заказчики хотели оставить открытыми поверхности из бетона на потолке и частично на стенах, а также не прятать проводку и кирпичи вновь возведенных перегородок. Все это как нельзя лучше соответствует интерьеру в стиле лофт. В процессе работы над проектом к бетону и кирпичам дизайнеры добавили металл, дерево и каучуковое полимерное покрытие на пол.
Houzz тур: Бетонный лофт в однокомнатной квартире в КрасногорскеСергей Бахарев
О проекте
Место: новостройка в Красногорске с видом на лес
Год: реализация проекта заняла месяца, ремонт — четыре месяца
Размер: 57 кв.м
Кто здесь живет: молодая семейная пара с маленьким ребенком
Автор проекта: студия «Однушечка», Сергей Бахарев и Дмитрий Жигалев
Фото: Евгений Кулибаба; стилист — Лиза Эшва

В квартире есть кухня, совмещенная с гостиной, отдельная спальня, большой санузел и маленькая гардеробная в прихожей при входе.
Houzz тур: Бетонный лофт в однокомнатной квартире в КрасногорскеСергей Бахарев
Хозяева не стали менять входную дверь и сами ее покрасили, причем водоэмульсионной краской, которую для надежности сверху покрыли лаком. Но это не спасло дверь, поскольку ребенок вскоре придал ей эффект естественной состаренности. Зато на остальных дверях экономить не стали: приобрели двери-невидимки итальянской фабрики Barausse. Их установили заподлицо в скрытом алюминиевом коробе, без наличников.

Чтобы дизайн с открытой проводкой выглядел естественно и гармонично, купили промышленные поворотные выключатели с черными ручками. Такие выключатели используют именно на заводах и стоят они намного дешевле, чем дизайнерские ретро-выключатели.
Houzz тур: Бетонный лофт в однокомнатной квартире в КрасногорскеСергей Бахарев
В прихожей справа от входа удалось сделать гардеробную, которую очень хотели иметь заказчики. Перегородку гардеробной облицевали листовым металлом со следами окалины. Листы нашли на складе металла и сварили каркас уже на месте. На одной стене гардеробной предусмотрены крючки для одежды, на другой — приклеено зеркало, маскирующее вход в гардеробную.

Сергей Бахарев рассказал, что гардеробная спланирована на пределе минимальных габаритов из-за экономии площади. В результате, в ней получился проход в 45 см, по которому можно протиснуться к нужным вещам и попасть в скрытую часть за зеркалом. А на верхних полках даже уместились все чемоданы.

Благодаря всего лишь одному предмету — игривому стулу на растопыренных ножках — прихожая выглядит весело и незаурядно.

Стул: Дом Культа, Artplay
Houzz тур: Бетонный лофт в однокомнатной квартире в КрасногорскеСергей Бахарев
Открытые поверхности из бетона привели в необходимый для жизни вид. Поскольку бетон имеет зернистую поверхность, ремонтники тщательно срубили и скололи все выпирающие капли и шероховатости, затем, чтобы бетон не пылил, пластиковыми щетками с применением пульверизатора очистили стены и потолок от пыли и в завершение покрыли их матовым лаком для каменных поверхностей.
Houzz тур: Бетонный лофт в однокомнатной квартире в КрасногорскеСергей Бахарев
Новые перегородки возвели из облицовочного кирпича, который купили на рынке. Со стороны гостиной стены из кирпича не штукатурили, зато оштукатурили со стороны санузла.

Заказчики попросили постелить на пол практичное и безопасное покрытие, не позволяющее разбиться чашке или телефону в том случае, если ребенок случайно их уронит. Поэтому выбрали имитирующее массив полимерное покрытие Polyfloor, которое, ко всему прочему, еще и легко чистится.
Houzz тур: Бетонный лофт в однокомнатной квартире в КрасногорскеСергей Бахарев
Строители по чертежам дизайнеров сварили конструкцию кухни из металлических стоек, расположив на ней деревянные полки. Эти полки, как и все столешницы в квартире (кроме обеденного стола), выполнили из дуба. Открытая кирпичная кладка и открытые полки с металлическими креплениями, вместо традиционных кухонных шкафов, полностью соответствуют эстетике лофта.

В обеденной группе все элементы прекрасно сочетаются по фактуре, цвету и геометрии. Графичные линии основания стола рифмуется с проволочными стульями Wire Side Chair, придуманными дизайнером Гари Бертойя (Harry Bertoia) и признанными шедевром дизайнерского модернизма. Дерево на столешнице добавляет необходимое тепло, а красное сиденье стула Eames Plastic Side Chair — яркий акцент, оживляющий композицию.

Стулья: Harry Bertoia Style Wire Side Chair и Eames Plastic Side Chair, оба — Scott Howard
Houzz тур: Бетонный лофт в однокомнатной квартире в КрасногорскеСергей Бахарев
У обеденного стола своя история. В магазине Deep House дизайнерам понравилась опора для стола. Поскольку сама столешница была повреждена, купили только подстолье, а круглую столешницу сделали сами из соснового щита, который пролежал полгода на улице и состарился естественным образом.

Подстолье: Deep House; столешница: собственное производство
Houzz тур: Бетонный лофт в однокомнатной квартире в КрасногорскеСергей Бахарев
Поскольку заказчики хотели кухню из ИКЕА, нишу выполнили специально под размеры купленной кухни.
Houzz тур: Бетонный лофт в однокомнатной квартире в КрасногорскеСергей Бахарев
Интерьер не выглядит скучно благодаря разнообразию фактур. Эмоции, тепло и долю юмора в пространство с холодным бетоном и металлом добавляют дизайнерские предметы из дерева и яркие акценты. Легкомысленный настрой поддерживает двуногий торшер на скейтборде. Его и другие аксессуары ручной работы приобрели в Доме Культа в галерее Artplay.

Торшер: Дом Культа, Artplay; графика: Artplay
Houzz тур: Бетонный лофт в однокомнатной квартире в КрасногорскеСергей Бахарев
Заказчики хотели, чтобы рабочее место расположилось вдоль всего окна от стены до стены. Современную столешницу из дубовых щитов изготовил частный мастер по чертежам дизайнеров. На самом деле, она не такая толстая, как кажется: иллюзию толщины создает специальный фальш-торец.
Houzz тур: Бетонный лофт в однокомнатной квартире в КрасногорскеСергей Бахарев
В гостиной решили отказаться от дивана в пользу пуфиков-мешков. Они дают свободу размещения и не дороги (по сравнению с диваном).

Кресло: кресло- мешок «Пирамида, Smart Balls, Artplay
Houzz тур: Бетонный лофт в однокомнатной квартире в КрасногорскеСергей Бахарев
Концепция спальни была очень простой — просто чтобы выспаться. Поэтому здесь присутствуют спокойные оттенки, все лаконично и без излишеств. Стены покрасили белой матовой краской, а кровать приобрели в ИКЕА.

Часть несущей стены было решено оставить без отделки даже в этой зоне.
А с помощью ярких акцентов в спальне решили поднять настроение.

Вешалка: Smart Balls, Artplay; столик: Дом Культа, Artplay; подушки: Bo Concept
Houzz тур: Бетонный лофт в однокомнатной квартире в КрасногорскеСергей Бахарев
Канализационный стояк оставили открытым. Дизайнеры объяснили это решение: «В ванной мы решили не прятать инженерные коммуникации, как это обычно принято, а использовать это пространство для установки сушильной машины и изолировать его раздвижными стеклянными перегородками».
Houzz тур: Бетонный лофт в однокомнатной квартире в КрасногорскеСергей Бахарев
Зато заказчики попросили спрятать унитаз. Это очень грамотно с точки зрения дизайна санузла — при входе не натыкаться на унитаз. На перегородку повесили деревянную столешницу с накладной раковиной. Душ организовали необычно, без поддона, какой-либо занавески или защитного экрана. Вода течет прямо на пол и уходит в трап Viega.
Houzz тур: Бетонный лофт в однокомнатной квартире в КрасногорскеСергей Бахарев
Дубовая столешница под раковиной в санузле, как и столешница вдоль окна, за счет отделки торца кажется толще. Столешница частично скрывает стиральную машину.
Houzz тур: Бетонный лофт в однокомнатной квартире в КрасногорскеСергей Бахарев
Зеркало в раме из дуба отлично расширяет пространство маленького санузла. Смеситель с коротким изливом, монтируемый на стену в условиях экономии места, — отличное решение.
Houzz тур: Бетонный лофт в однокомнатной квартире в КрасногорскеСергей Бахарев
Ванну нашли необычной формы, чтобы она лучше вписалась в пространство и сохранился комфортный проход. Торец перегородки, отделяющей унитаз, для усиления отделали металлическим швеллером. Здесь также металл прятать не стали, а покрыли лаком для защиты от коррозии. Плитка на полу — намеренно промышленного вида.
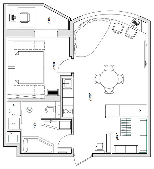
На плане квартиры становится понятна задумка с планировкой гардеробной и размещением зеркала: вход в гардеробную замаскирован, несмотря на отсутствие двери. Столешница вдоль окна немного видоизменилась,так как, построив макет, дизайнеры поняли, что лучше поставить прямую столешницу.

ПРЕДЛОЖИТЕ СВОЙ ПРОЕКТ ДЛЯ ПУБЛИКАЦИИ…
Загрузите фотосъемку в свой профиль на Houzz, отправьте ссылку и краткое описание проекта на editorial@flatica.ru

Мы обязательно свяжемся с вами, если примем решение о публикации.

Комментарии 17

в таком душе моещься, пол мокрый, к унитазу не протиснуться ((( очень не продумано. о том, что есть ребенок в квартире даже не поймёшь (( неуютно как то и недоделано как то ...хотя лофт я люблю...
Душ без поддона ОЧЕНЬ неудобен в использовании, к сожалению.
Рассматривала проект, не поняла где спит ребенок. Очень понравилось.

Оставьте комментарий

Читать похожие статьи