logo

Houzz тур: Ажурный «иней» в московской сталинке

В этой квартире удалось сохранить атмосферу сталинского дома и придать ему настроение нового века

Екатерина Перминова
Екатерина Перминова

22 июля 2015

Обновлено 6 дек. 2015

Постоянный автор HouzzRu, журналист

Проект дизайнера Юлии Хохловой, получивший романтичное название «Весенний иней», создавался для квартиры в сталинском доме. Это было далеко не идеальное жилье, где главной проблемой стал выбор мебели и сантехники. Квартира была в плохом состоянии, поэтому работа началась со сноса всех не несущих перегородок и демонтажа старой отделки со стен и пола. Через несколько месяцев пустое помещение превратилось в теплый дом для семейной пары с двумя малышами.
Houzz тур: Ажурный «иней» в московской сталинке
Houzz тур: Ажурный «иней» в московской сталинке
Юлия Хохлова постаралась учесть самое главное пожелание хозяев квартиры — добавить или сохранить места для хранения. Каждый метр в квартире используется. Здесь множество встроенных шкафов, наличие которых не бросается в глаза, но не стоит удивляться, если из ниши в холле хозяин вдруг достанет обувь, а из тумбы с камином диски и семейные альбомы.
Houzz тур: Ажурный «иней» в московской сталинке
О проекте
Место: Москва
Размер: 88 кв.м, высота потолков — 3,2 м
Автор проекта: дизайнер Юлия Хохлова, архитектор Марджана Королева (рабочие схемы для сторительно-отделочных работ)
Фото: Екатерина Гераскина

Первая встреча дизайнера с владельцами прошла еще на этапе покупки квартиры — во время сделки клиенты столкнулись с рядом сложностей, но, несмотря на препятствия, даже не рассматривали варианты купить квартиру в новостройке. Когда проблема выбора жилья была решена, наступило время обсуждать интерьер. В новом жилье заказчики хотели сохранить настроение дома и, в то же время, учесть все атрибуты сегодняшних реалий и комфорта.
Houzz тур: Ажурный «иней» в московской сталинке
«Всегда интересно работать с проектами, в которых необходимо объединить архитектуру прошлого и современные технологии, — делится Юлия Хохлова. — Дух интерьера, его наполнение и настроение хотелось выдержать на грани классики и современного стиля». Сохранить баланс и не увлечься помогали четкие линии и правильные геометрические формы. Они стали основой всего дизайн-проекта. Однако материалы выбирали современные, а технику — функциональной.

Особенностью планировки стали несущие ригели — горизонтальные балки, опоры для остальных конструкций. Конечно, это не несущие колонны, однако в интерьере их нужно было обыграть, чтобы не скармливать свободную площадь межкомнатным перегородкам. В гостиной, например, появился портал. Он выделил зону отдыха и сам стал предметом любования, благодаря панелям буазери — они добавляют комнате шарма.


Чтобы солнечный свет радовал обитателей дома как можно чаще и больше, окна в квартире также сделали максимально высокими, плюс, на стене за диваном повесили зеркальные панно, отражающие лучи.
Houzz тур: Ажурный «иней» в московской сталинке
Houzz тур: Ажурный «иней» в московской сталинке
Houzz тур: Ажурный «иней» в московской сталинке
Шарм этот поддерживают круглые люстры и мягкие стулья вокруг обеденного стола. И камин, встроенный в тумбу с рельефной стеновой панелью.

«Высота потолков — 3,2 м, что позволило использовать различные сценарии освещения, в том числе закарнизные подсветки, подвесные светильники, встроенные витражи, — поясняет дизайнер. — Другой плюс высоких потолков — возможность поставить увеличенные дверные проемы. Возможностью этой мы не преминули воспользоваться и двери в 2,3 м заняли свое место».

«Зону холла и гостиной мы разделили легкой ажурной перегородкой, рассказывает Юлия. Вариантов ее исполнения мы рассматривали несколько: пескоструйная печать на стекле, изготовление из крашеного резного МДФ. Но в итоге остановились на перегородке, которую нам сделали в кузнечной мастерской. Ковку покрыли белой краской в итоге, зонирование получилось легким и ажурным».
Houzz тур: Ажурный «иней» в московской сталинке
Houzz тур: Ажурный «иней» в московской сталинке
Кухня небольшого размера, поэтому обеденный стол оставили в зоне гостиной, здесь же обошлись барной стойкой. Но, как мы помним, основа проекта интерьер на стыке стилей, так что остальная мебель имеет классическую форму.

Изначально над барной стойкой планировали повесить светильники итальянской фабрики BAGA, но сроки поставки и высокая стоимость смущали и заказчиков, и дизайнера.

«Мы решили не отказываться от первоначальной идеи. Приобрели светильник с тремя плафонами и стеклянными подвесами, но стеклянный декор был довольно скудный, и мы заказали подвесы на фабрике “Гусь Хрустальный”; через неделю у нас был готов авторский светильник, не уступавший по изысканности и великолепию итальянским», делится дизайнер.
Houzz тур: Ажурный «иней» в московской сталинке
Houzz тур: Ажурный «иней» в московской сталинке
Отделочные материалы обсудили еще на этапе эскизов. Для холла, гостиной и кухни использовали декоративную покраску OPTIMIST-ELIT. «Цветовую гамму подбирали в соответствии с проектом: основной тон жемчужный бежевый, акцентные стены — серо-лиловые», говорит Юлия.
Houzz тур: Ажурный «иней» в московской сталинке
Белые мотивы продолжаются в ванной. И, как и во всей квартире, не сразу понимаешь, какой материал перед тобой. На первый взгляд кажется, что в ванной обои, однако это кружевная плитка Azulejos El Mijares. Она же облицовывает внешнюю сторону чаши. Тумбу с раковиной выбрали тоже испанского производства. На полу в ванной положили плитку, а стены украшены лишь необходимыми вещами зеркалом и держателями.
Houzz тур: Ажурный «иней» в московской сталинке
Необычная история — у зоны постирочной. В первоначальной планировке ванная и туалет были раздельными. Между ними размещались два воздуховода. Еще две колонны с канализацией и прочими коммуникациями — располагались между санузлом и кухней.
Houzz тур: Ажурный «иней» в московской сталинке
«Мы не могли вносить изменения в эти инженерные конструкции и поэтому обыграли их с помощью авторских витражей, рассказывает Юлия. Теперь внешние воздуховоды в объединенном санузле стали источниками света витражными колоннами. За ними скрыта хозяйственная часть со стиральной машиной и полками для хранения бытовой химии».
Houzz тур: Ажурный «иней» в московской сталинке
Houzz тур: Ажурный «иней» в московской сталинке
Почти вся мебель для проекта изготавливалась под проект. Диваны, барные и обеденные стулья, пуф — производились на подмосковной фабрике мебели для отелей и ресторанов. Кровать, тумбы и комод в спальне испанского производства. Вся корпусная мебель, в том числе, шкаф в этой комнате, заказывали на мебельном производстве города Владимир. Старые вещи в новый интерьер не вписывались, поэтому их решили оставить в прошлом.
Houzz тур: Ажурный «иней» в московской сталинке
Houzz тур: Ажурный «иней» в московской сталинке
В цветах спальни по-прежнему доминирует белый в сочетании с лиловым. Ажурные обои Cole&Son из коллекции Vivienne Westwood, мягкое изголовье кровати, металлическая оправа зеркала и люстра стали украшением комнаты.

«Изначально люстру планировали сделать менее активную, однако в процессе подбора картина сложилась сама с кружевными, немного “зимними”, обоями Cole&Son эта люстра и зеркало в состаренной раме так прекрасно сочетались, что покорили нас, и мы остановили свой выбор на таком комплекте», вспоминает Юлия. Несмотря на кажущиеся не функциональными крохотные световые точки, люстра дает очень много света, а зеркало на стене визуально добавляет освещенности в спальне.

Свет в квартире: Eichholtz, Lightstar; бра: IPE Cavalli, Arte Lamp; лампы: Laura Ashley
Houzz тур: Ажурный «иней» в московской сталинке
Самая интересная история в связана с детской комнатой. В начале работы над проектом малыш был один, мальчик, и комната полностью разрабатывалась для него, учитывая пол и возраст. К завершению работ заказчики ожидали еще одного ребенка на этот раз, девочку. Тогда в цветовую гамму внесли изменения: ультрамарин поменяли на более нейтральный цвет лазури, добавили теплый зеленый в текстиль. Общую концепцию морскую тематику менять не стали. Пока колыбель малышки стоит в родительской спальне, но, как только она подрастет, то будет жить вместе с братом.
Houzz тур: Ажурный «иней» в московской сталинке
Houzz тур: Ажурный «иней» в московской сталинке
«На школьную пору у нас предполагается разместить большую столешницу вдоль двух окон, где у каждого будет свое место для учебы, говорит дизайнер. Также запланировано пространство для второй детской кровати вдоль окрашенной стены».

В детской совместили два покрытия — декоративную покраску оттенка лазури и фотообои на фактурном основании.
Houzz тур: Ажурный «иней» в московской сталинке
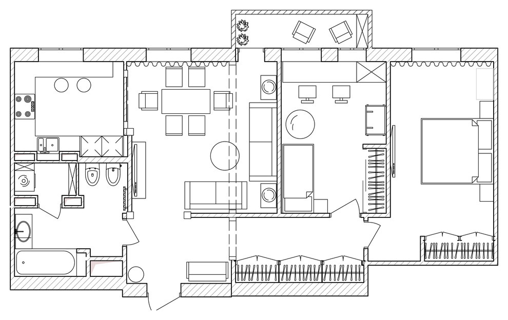
План квартиры

ПРЕДЛОЖИТЕ СВОЙ ПРОЕКТ ДЛЯ ПУБЛИКАЦИИ…
Загрузите фотосъемку в свой профиль на Houzz.ru, отправьте ссылку и краткое описание проекта на editorial@flatica.ru

Мы обязательно свяжемся с вами, если примем решение о публикации.

Комментарии 12

Какого года проект ? как 80е чесслово , я думала сейчас такого уже не бывает. .
Lal Ritta

6 л.

Какая потрясащая ажурная перегородка между прихожей и гостиной! Залюбовалась) И не соглашусь с теми, кому кухня пришлась не по вкусу. На кухне в первую очередь должно быть все удобно и под рукой. Кураж и новизна дизайна приедаются, в долгострочной перспективе в приоритете удобство.
Alla M.

10 л.

Перебор с сиренью и зеркалами, безвкусно получилось :-(

Оставьте комментарий

Читать похожие статьи