logo

Houzz тур: Апартаменты в мансарде с зимним садом

С настоящим дровяным камином и спальней без дверей

Евгения Назарова
Евгения Назарова

28 мая 2018

Обновлено 20 авг. 2018

Постоянный автор Houzz, интерьерный журналист

Заказчикам так понравилась визуализация, созданная студией DesignRocks, что они захотели на 100% перенести её в интерьер. Дело дошло до того, что обои ждали четыре месяца, а аксессуары отливали из пластика на заказ в одной из московских мастерских. «Это один из немногих опытов, когда хозяева готовы были пойти на любые жертвы, лишь бы результат полностью соответствовал концепции. Даже для нас это соответствие было не так важно, как для них», — рассказывает Евгения Шилова.

О проекте
Место:
Москва, ул. Берзарина
Размер: 107 кв.м
Кто здесь живёт: молодая пара с собакой
Автор проекта: Евгения Шилова, Илья Ерошевич, DesignRocks
Фото: Сергей Красюк
Houzz тур: Апартаменты в мансарде с зимним садомЕвгения Шилова
Апартаменты с пятиметровыми потолками находятся на последнем этаже реконструированного дома. Компания-застройщик сдала их с готовой стяжкой и гипсокартоном на стенах, но хозяева запланировали масштабный ремонт и решили избавиться даже от черновой отделки. В новой отделке из бетона, дерева и металла легко читаются индустриальные мотивы: этот стиль оказался близок владельцам и гармонировал с фасадами дома.
Houzz тур: Апартаменты в мансарде с зимним садомЕвгения Шилова
Работы начались с демонтажа, а перепланировка позволила увеличить площадь почти на 10 кв.м. Галерею второго этажа расширили, чтобы увеличить проход и организовать гардеробную, а спальню удлинили до противоположной стены.
Планировка первого этажа

Особенность планировки — много открытых площадей: заказчики попросили предусмотреть огромную кухню-гостиную, чтобы проводить время с друзьями. В спальне второго этажа даже нет двери: по концепции, все пространства органично перетекают друг в друга.
Houzz тур: Апартаменты в мансарде с зимним садомЕвгения Шилова
ПРИХОЖАЯ
Владельцам нравятся интересные фактуры, поэтому материалы подбирали в том числе и за тактильный комфорт. Использовать наливной пол под бетон и инженерную доску с лёгким рельефом предложили заказчики. В итоге деревом обшили стену и потолок прихожей, превратив её в куб внутри общего пространства гостиной.

Все системы хранения спроектированы таким образом, чтобы задействовать каждый сантиметр. В подлестничное пространство вписали большой шкаф с белыми глянцевыми фасадами его створки открываются из прихожей.
Houzz тур: Апартаменты в мансарде с зимним садомЕвгения Шилова
Наливной пол под бетон Pandomo

Глянцевый торец шкафа украшает голова льва, она перекочевала в готовый интерьер прямиком из визуализации. «Мы нарисовали её в 3D-модели, чтобы отметить таким образом место для декора. Но заказчики настояли, чтобы в интерьере была именно эта скульптура. Пришлось отдавать чертежи в местную мастерскую, чтобы отлили точно такой же декор из пластика», вспоминает Евгения.
Houzz тур: Апартаменты в мансарде с зимним садомЕвгения Шилова
ГОСТИНАЯ
Изначально планировали установку открытых металлических швеллеров, проходящих по стенам и потолку. Но от этой идеи отказались: зимой такие элементы сильно промерзают. В итоге их сымитировали с помощью гипсокартона: короба, окрашенные чёрной краской, стали основой для трековых светильников.

Одну стену оформили панелями из фибробетона: их изготовили на заказ на белорусском производстве под нужные размеры. Панели довольно тяжелые, поэтому для монтажа использовали и клей, и крепежи. Для них впоследствии подобрали декоративные шайбы.
Houzz тур: Апартаменты в мансарде с зимним садомЕвгения Шилова
На чем сэкономили: На фото справа от камина видны подушки из войлока, которые выглядят как крупные валуны. Эти подушки придумала группа польских архитекторов, но хозяйка нашла похожий вариант у российских мастеров. Жалеть о покупке не пришлось: качество подушек не уступает оригиналу, а цена ниже.
Houzz тур: Апартаменты в мансарде с зимним садомЕвгения Шилова
Камин Paxfocus, Focus; диван Pixel, Saba

Ещё на этапе технического задания заказчик сказал, что очень хотел бы видеть в гостиной именно эту модель камина. В апартаментах уже был дымоход, но с монтажом всё равно возникли проблемы. Чтобы улучшить тягу, пришлось пригласить специалистов и нарастить дымоход.
Houzz тур: Апартаменты в мансарде с зимним садомЕвгения Шилова
Встроенный шкаф сделали на заказ по чертежам дизайнеров из крашеной МДФ и шпонированных панелей. Правую секцию выделили под дровницу: изнутри она отделана листом чёрного металла, его почти невозможно поцарапать, в отличие от МДФ.

«В столярной мастерской наш проект в шутку прозвали “Три миллиметра”, — рассказывает Илья. — Мы беспокоились из-за размеров встроенной мебели и проверяли соответствие тонким листом МДФ соответствующей толщины. Если зазоры были меньше или больше трёх миллиметров, просили мастеров переделывать работу».
Houzz тур: Апартаменты в мансарде с зимним садомЕвгения Шилова
КУХНЯ
Из-за конструктивных особенностей под кухню выделили помещение неправильной формы. Архитекторы планировали линейный вариант: он смотрелся бы более спокойно и цельно. Но заказчики не захотели терять ни сантиметра и отвергли эту идею. В итоге кухонная мебель «обходит» нишу, продолжается вдоль примыкающей стены, а затем перерастает в барную стойку. Цвет и фактуру фасадов под ржавый металл выбрали сами заказчики.
Houzz тур: Апартаменты в мансарде с зимним садомЕвгения Шилова
Кухня Giulia Novars; барные стулья Filly too, Bonaldo

Кухню обрамляют чёрные ламели, переходящие со стены на потолок. Между ними встроены ленты подсветки с возможностью диммировать освещение. Этот же приём использовали для подсветки лестницы, отказавшись в этой части квартиры от люстры и встроенного света.
Houzz тур: Апартаменты в мансарде с зимним садомЕвгения Шилова
Сложно поверить, но этот интерьер пример разумной экономии. Это заметно по бюджету на покупку мебели: все предметы заказали напрямую у фабрик, минуя местные салоны. «Это заслуга заказчиков, отмечает Евгения, они нашли способ обойтись без посредников. В итоге мебель обошлась чуть ли не в два раза дешевле, чем если бы мы покупали её в московских салонах. Например, такой диван, как в гостиной, мы бы просто не вписали в бюджет».
Houzz тур: Апартаменты в мансарде с зимним садомЕвгения Шилова
Обеденный стол и стулья Bonaldo; технический свет Centrsvet; светильники над обеденным столом Restoration Hardware

Часть первого этажа выделили под зимний сад, его отделяет от гостиной лишь прозрачная перегородка на металлическом каркасе. В будущем эту комнату можно превратить в кабинет или детскую, для этого предусмотрены даже розетки.
Houzz тур: Апартаменты в мансарде с зимним садомЕвгения Шилова
ВАННАЯ КОМНАТА
В квартире два санузла: один при спальне владельцев, второй — с ванной на первом этаже: обычно он выполняет функции гостевого.

На чем сэкономили: Для отделки санузлов выбрали недорогой российский керамогранит под камень. Сантехника тоже не из люкс-сегмента, но благодаря спокойной гамме интерьер не выглядит дешево.
Houzz тур: Апартаменты в мансарде с зимним садомЕвгения Шилова
Керамогранит Atlas Concorde; мебель RiFRA; раковина ArtCeram

Ещё один пример экономии — круглое зеркало, которое дизайнеры купили в интернет-магазине и добавили подсветку. Форме зеркала вторят круглые полки.

СМОТРИТЕ ТАКЖЕ…
Фото второго санузла и зимний сад крупным планом в других кадрах из этого проекта
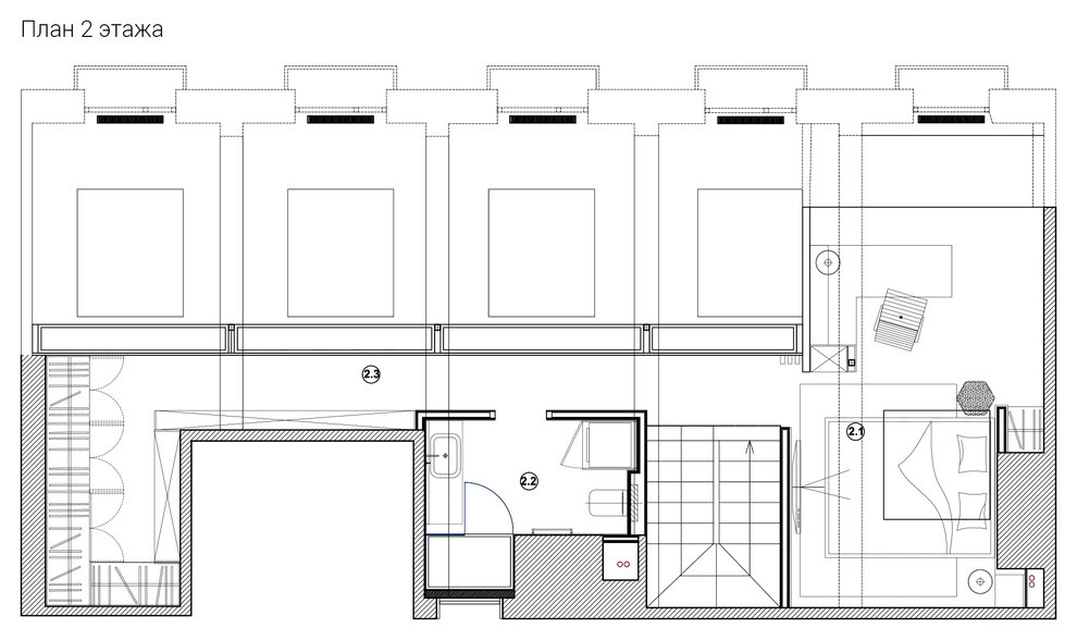
План второго этажа
Houzz тур: Апартаменты в мансарде с зимним садомЕвгения Шилова
ГАРДЕРОБ
Основные системы хранения организовали на втором этаже: встроенные шкафы смонтировали вдоль открытой галереи. Шкафы вдоль основной стены неглубокие и предназначены в основном для обуви. Затем линия хранения поворачивает за угол и вырастает в П-образную систему. Здесь также задействован каждый сантиметр до самого потолка: у шкафов даже нет цоколей.
Houzz тур: Апартаменты в мансарде с зимним садомЕвгения Шилова
СПАЛЬНЯ
Главный акцент в интерьере спальни обои с изображением лошадей: этот символ удачи настолько понравился владельцам, что они настояли на переносе рисунка из визуализации прямиком в жизнь. Не смутило даже то, что обои пришлось ждать четыре месяца.

Обои из коллекции Crazy Paper, Momenti Casa
Houzz тур: Апартаменты в мансарде с зимним садомЕвгения Шилова
Обратите внимание: Все дерево в отделке спальни — похожих оттенков и фактур. Элементы подбирали тон в тон, чтобы интерьер производил целостное впечатление. Перегородка с ТВ и изголовье обшиты одинаковыми шпонированными панелями. Выступ в изголовье скрывает вентиляционную шахту.

ОБ АВТОРАХ ПРОЕКТА…
Перейдите на страницу Евгении Шиловой и Ильи Ерошевича, DesignRocks, чтобы изучить другие работы из портфолио архитекторов и связаться с ними
В спальне: кровать Bonaldo; журнальный столик BoConcept; светильники Latitude

В ВАШЕМ ГОРОДЕ…
Найдите архитектора на Houzz в вашем городе — закажите собственный проект

У ВАС ЕСТЬ ДЛЯ НАС ПРОЕКТ…
Загрузите съёмку в свой профиль на Houzz, отправьте ссылку с кратким описанием на editorial@flatica.ru

Для справки: Какие объекты мы публикуем

Комментарии 37

Alya

5 л.

поснимать со стен гипсокартон от застройщика , чтобы сымитирировать металл из гипсокартона:) это забавно. имитация чувствуется и в ванной, керамогранит под камень. то как дизайнеры в таких статьях отмежевываются от выбора заказчиков, выглядит всегда забавно. Правда, в случае голов льва и лошади это можно понять:) Очень понравились системы хранения, отличное решение. Конечно, колорит беспроигрышный - обилие красивых оттенков серого, белого, чёрного и дерева всегда the best.
Красиво. 9 метров на детсткую.... ужас какой. Даже не верится что в таком красивом проекте дизайнеры это предложили....
Супер во всём, молодцы! Все на славу потрудились.

Оставьте комментарий

Читать похожие статьи