logo

Houzz тур: Апартаменты с видом на Елоховский собор

Альтернатива лофту в апартаментах бывшего промышленного здания

Наталья Мурадова
Наталья Мурадова

1 февр. 2019

Обновлено 10 мар. 2019

Houzz тур: Апартаменты с видом на Елоховский собор
Это здание, расположенное в Басманном районе, прежде занимали фабричные помещения. Апартаменты сохранили следы промышленной архитектуры: колонны, выступы, большие окна, выходящие на фронтальный фасад, и массивные балки на потолке.

О проекте
Место: Москва,
Размер: 95 кв.м
Кто здесь живёт: мама с сыном
Авторы проекта: Porte Rouge Interiors, главный дизайнер проекта Карина Задвина, дизайнеры Наталья Леонова и Анастасия Михайлова
Houzz тур: Апартаменты с видом на Елоховский собор
«Когда мы зашли, первое впечатление было: “Ух ты!” рассказывает дизайнер Наталья Леонова. Мы увидели огромные окна и большое свободное пространство. Но когда начали накладывать на него сценарий жизни заказчиков, стало понятно, что сохранить ощущение простора будет сложно. Но было важно, чтобы оно осталось».
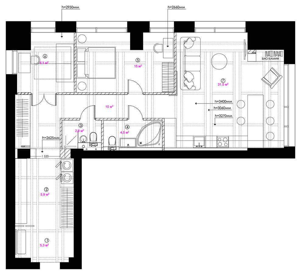
Планировка апартаментов

Изначальная планировка была не самой удачной: в большой коридор выходили двери узких комнат и единственного санузла. К тому же в квартире много несущих конструкций.
Houzz тур: Апартаменты с видом на Елоховский собор
Сначала дизайнеры собирались оставить широкие потолочные балки открытыми. Однако оказалось, что бетонные конструкции находятся в плохом состоянии. Так появились разноуровневые потолки, перепад между которыми местами достигает полуметра.
Houzz тур: Апартаменты с видом на Елоховский собор
Хозяйка очень любит американский стиль и попросила, чтобы квартира была оформлена в похожей эстетике, а не в стиле лофт, мысли о котором напрашивались из-за промышленного прошлого здания
Houzz тур: Апартаменты с видом на Елоховский собор
КУХНЯ-ГОСТИНАЯ
Из окон гостиной открывается красивый вид на Елоховский собор. Дизайнеры выбрали палитру, которая гармонично сочетается со старым московским пейзажем: мягкую сероватую гамму с вкраплениями ярких цветов. Большие несущие колонны отделали декоративной штукатуркой, похожей на бетон.
Houzz тур: Апартаменты с видом на Елоховский собор
Декоративная штукатурка под бетон; краска Farrow & Ball; столярные изделия изготовлены на заказ в компании «Кондор»

Удобные замшевые кресла в гостиной — винтаж. Точно такие же можно увидеть в фильме «Игрушка» с Пьером Ришаром. Дизайнеры когда-то привезли их из Франции и ждали, когда для них найдется подходящий интерьер.
Houzz тур: Апартаменты с видом на Елоховский собор
Кухня объединена с гостиной, между ними находится небольшой выступ, оформленный деревом.

На что потратились: Кухонный комплект со столешницей и фартуком из натурального гранита Viscont white сделали на заказ по чертежам дизайнеров. На пол положили итальянский паркет.
Houzz тур: Апартаменты с видом на Елоховский собор
СПАЛЬНЯ
В спальне хозяйки дизайнеры хотели добиться эффектного интерьера при небольших затратах на мебель.
Houzz тур: Апартаменты с видом на Елоховский собор
Краски Argile, Little Greene оттенок Pale French Gray; светильник Flos

Выбор акцента — розового оттенка для стены за кроватью — позволил отказаться от изголовья.
Houzz тур: Апартаменты с видом на Елоховский собор
Кресло Roche Bobois, свет Heathfield&Co

СПАЛЬНЯ СЫНА
Зато комната сына больше напоминает кабинет, чем детскую: для нее выбрали нейтральные краски.
Houzz тур: Апартаменты с видом на Елоховский собор
САНУЗЛЫ
Выкроить место для второго санузла было непросто, к тому же в квартире был предусмотрен только один канализационный стояк. Дизайнеры решили организовать второй санузел поближе к уже существующему.
Houzz тур: Апартаменты с видом на Елоховский собор
Оба санузла находятся на одной линии, вдоль коридора. Санузлом с геометричной черно-синей плиткой пользуется сын, а более просторная ванная комната предназначена для хозяйки.
Houzz тур: Апартаменты с видом на Елоховский собор
КОРИДОР И ПРИХОЖАЯ
Сделать постирочную, о которой мечтала хозяйка, из-за расположения коммуникаций оказалось сложно. В итоге стиральную машину спрятали в шкаф в коридоре.
Houzz тур: Апартаменты с видом на Елоховский собор
Всю мебель в прихожей дизайнеры проектировали сами. В качестве материала столешницы для длинной тумбы они выбрали натуральный гранит. Деревянный каркас пришлось укреплять дополнительно, чтобы он смог выдержать тяжелый камень.
Houzz тур: Апартаменты с видом на Елоховский собор
Легкие поперечные перегородки в прихожей маскируют перепады высоты потолка и одновременно зонируют пространство. Большой коридор кажется более соразмерным комнатам, поскольку поделен на входную группу и холл. Границу между ними подчеркивают разные напольные покрытия.
ОБ АВТОРАХ ПРОЕКТА…
Перейдите на страницу бюро Porte Rouge Interiors, чтобы изучить другие работы из портфолио дизайнеров или заказать собственный проект
________________________

В ВАШЕМ ГОРОДЕ…
Найдите дизайнера на Houzz в вашем городе — закажите собственный проект

У ВАС ЕСТЬ ДЛЯ НАС ПРОЕКТ…
Загрузите съёмку в свой профиль на Houzz, отправьте ссылку с кратким описанием на editorial@flatica.ru

Комментарии 28

Очень уютная цветовая гамма, квартира похожа на хороший коньяк: достаточно сдержанно, дорого и эстетично. Выглядит как на страничках журнала об интерьерах :)
Konsensus

6 л.

Стильно, профессионально, но очень по-мужски. В такой квартире представляешь себе одинокого холостяка
Anika

6 л.

а этот интерьер норм по цветам и материалам в спальне и гостиной-кухне. планировку я бы тут выбрала вообще странную, но крутую. из спальни надо убрать травмоопасную лампу или хоть перевесить. но лучше убрать. прихожка-коридор - на дом от 250 квадратов, в этом метраже можно было и поинтереснее с ней поиграть.

Оставьте комментарий

Читать похожие статьи