Houzz США: Современная интерпретация бревенчатого дома в Монтане

Эта загородная композиция из нескольких зданий стала не только необычным архитектурным проектом, но и примером ландшафтного искусства

Houzz Россия
Houzz Россия

1 дек. 2015

Обновлено 14 февр. 2016

После успешного строительства дома без кондиционера под палящим солнцем Аризоны, архитектор Артур Андерссон решил обыграть ту же концепцию, но в более холодном климате. «Я подумал, что было бы интересно построить дом без центрального отопления в Монтане», вспоминает он.

Когда у клиентов прошел первый шок, Артур приступил к работе и спроектировал несколько отдельно стоящих зданий — главный дом, гостевой дом, дом-гостиную и кухню. Вместе они представляют собой современный загородный комплекс для семейной пары, их детей и внуков, куда можно приезжать в любое время года. Вместо прокладки труб для традиционной системы отопления, вентиляции и кондиционирования воздуха, архитектор предложил инновационный метод утепления дома. Плотно уложенные поленья позволяют удерживать максимальное количество тепла, исходящего от теплого пола и нескольких дровяных печей.
О проекте
Место: эта необычная загородная резиденция находится на севере штата Монтана; несколько корпусов стоят на склоне холма с видом на озеро Флатхед
Кто здесь живет:
три поколения одной семьи приезжают сюда отдыхать
Автор проекта: Артур Андерссон (
Arthur Andersson) из компании Andersson-Wise Architects
Интересные факты:
по большей части дом утеплен плотно уложенными деревянными поленьями; внутри одного из домов есть стеклянная перегородка, которая поднимается с помощью поворотного колеса. По мнению архитектора, «этот проект совершенно не похож на традиционный дом»
История: когда семейная пара купила этот участок (оба супруга занимаются недвижимостью), здесь была только небольшая хижина площадью 3х4,5 м, построенная в 1920 году
Фото: Art Gray
Хозяева хотели построить несколько домиков, чтобы резиденция походила на летнюю туристическую базу, и чтобы их взрослые дети и внуки могли при желании уединиться со своими семьями. Главной задачей для архитектора стало создание домов-трансформеров, которые бы закрывались на зиму и удерживали тепло, а летом открывались навстречу свежему воздуху.

На этом снимке вы видите фасад главного дома. Высокая трава, высаженная на крыше, служит дополнительным утеплителем, а также помогает дому слиться с ландшафтом. Артур говорит, что, проектируя главный дом, он вдохновлялся работами ландшафтного дизайнера Энди Голдсуорси (Andy Goldsworthy). Он использовал минимальный набор материалов дерево и камень и, в результате, создал дом, который выглядит не просто как архитектурное произведение, а как образец современного искусства. «С расстояния трудно понять, что это такое, говорит Артур. Это строение определенно не выглядит, как дом. Оно и на здание не очень похоже».
Сначала клиенты просили Артура построить бревенчатый дом, но архитектор предложил отойти от традиционных для этой местности зданий, обшитых панелями, в которых бревна видны только по углам. Он разработал инновационную конструкцию из стальных рам, плотно забитых еловыми и сосновыми поленьями. Большую часть деревьев для этого утеплителя срубили неподалеку от дома, выбирая по возможности болеющие деревья или те, которые в любом случае должны были спилить.

Древесину как следует очистили и просушили в печи — получился плотный, но, в то же время, дышащий утеплитель с красивой фактурой. Он заполняет промежутки между каменными стенами двойной толщины с гидроизоляционной прослойкой. «Когда вы так жестко ограничиваете себя в выборе материалов, понятно, что архитектура здания будет довольно абстрактной, говорит Артур. Ни о каких сложных декоративных деталях не может быть и речи».

В стене предусмотрено место для окна, также обозначенное стальной рамой. Зимой окно можно заложить поленьями до самого верха. Так как дом отапливается дровяными печами, по мере того, как хозяева вытаскивают поленья из оконной рамы, в доме становится все больше и больше света.
Лестница с наружной части стены ведет на террасу на крыше, где семья часто устраивает пикники. «Эта лестница не согласуется ни с одним известным мне правилом строительства, говорит Артур. Но, к счастью, в Монтане нет строительного кодекса для жилых домов. Если вы готовы взять на себя всю ответственность, можно делать все, что хочешь». Хозяева охотно решились на этот эксперимент, ведь наградой стал вид на озеро, от которого захватывает дух.
К главному дому примыкает застекленная веранда. Хозяева могут спуститься сюда, затопить печь, забраться под теплое одеяло и уснуть, слушая, как волны набегают на берег озера.
На предыдущем снимке видно, как стена из поленьев, «вторгаясь» внутрь дома, становится частью интерьера и служит перегородкой между кухней и главной спальней.

В саду есть отдельное строение, которое используется как кухня. Но когда на улице слишком холодно, чтобы перебегать из дома в дом, хозяева пользуются этой кухней. Мойка и столешница изготовлены из нержавеющей стали.
В хорошую погоду хозяева пользуются уличным душем, расположенным рядом с главной ванной.
Архитектор сотрудничал с компанией Quantum Windows, разработавшей систему окон в раздвижных деревянных рамах во всю стену. Открывая окна, хозяева объединяют гостиную с террасой.
С террасы хозяева спускаются по каменным ступеням к озеру и деревянной платформе, с которой можно нырять (сейчас в процессе строительства).
Большая часть фасадов обшита досками из калифорнийской пихты, покрашенными в цвет дегтя, чтобы дома смотрелись, как глубокие лесные тени. «Со временем я понял, что дома, покрашенные в яркие цвета, отражают много света и будто выпрыгивают на вас, говорит Артур. Поэтому постарался подобрать оттенок, который бы сделал дома похожими на тени от вековых сосен, растущих вокруг». На этом снимке вы видите стену сторожевого домика у входа на участок.
Большое здание, которое используется для семейных сборищ (на фото слева) называется «домом-гостиной». По сути, это легкий летний коттедж, расположенный в центре участка. В нем есть большая столовая, открытая терраса и гостиная, которую можно отгородить стеклянной перегородкой. Домик справа кухня, в которой также есть небольшая столовая. Кухня и дом-гостиная соединены крытым проходом.
Поворачивая колесо на стене в столовой, хозяева опускают стеклянную перегородку, разграничивающую зоны столовой и гостиной. «Эта идея родилась в ответ на желание клиентов обедать на свежем воздухе, и в то же время, иметь возможность полностью закрыть гостиную в холодное время года», говорит архитектор.

Еще одно поворотное колесо поднимает и опускает люстру, которая состоит из масляных фонарей. Хозяевам нравится зажигать ее перед каждой трапезой и гасить по окончании вечера. Дизайнер Мими Лондон (Mimi London), работавшая над интерьерами, сама не любит электрический свет в столовой, поэтому была рада найти такой необычный светильник. Кстати, большая часть мебели в этом проекте изготовлена по ее эскизам.
Вход в гостевой домик закрывает большая амбарная дверь на полозьях. В хорошую погоду ее часто оставляют открытой.
На первом этаже гостевого дома, прямо у входа, есть камин. В зависимости от погоды дверь за ним можно оставлять открытой или полностью закрыть, тогда в доме будет очень тепло. «Здесь царит почти первобытная атмосфера, говорит архитектор. Гостиная получилась похожей на пещеру, что смотрится забавно и, в то же время, вполне аутентично для Монтаны».
Такой вид открывается из окна одной из спален гостевого дома. Прямо дом-гостиная и кухня, соединенные крытым переходом. Главный дом расположен чуть ниже по склону, справа.
Одна из троп ведет к лодочному причалу, где пришвартована лодка хозяев, классическая деревянная модель, изготовленная вручную компанией Chris Craft.
Детальный план участка
Цифрами обозначены следующие места.
  1. Главный дом.
  2. Дом-гостиная.
  3. Гостевой дом.
  4. Сторожка.
  5. Деревянный настил для отдыха на озере (в проекте).
  6. Лодочный причал.
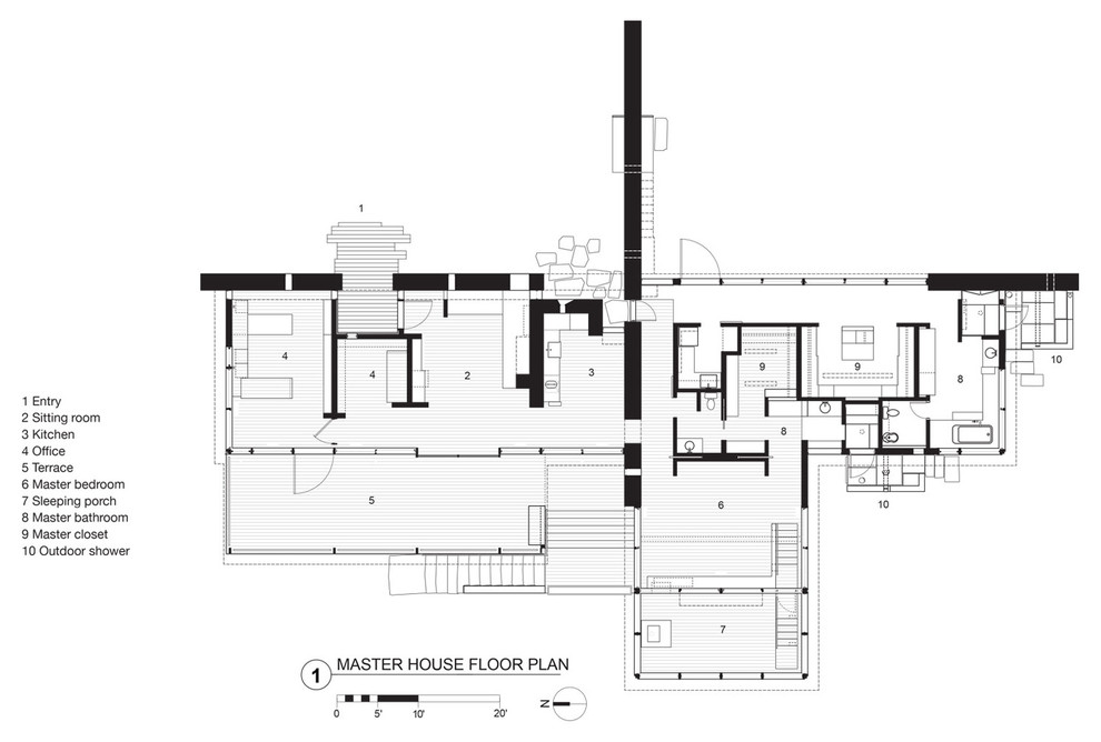
Жирной линией обозначены стены, утепленные кладкой из деревянных поленьев. Одна из таких стен расположена перпендикулярно главному фасаду и делит дом на две части жилую и спальную.

Цифрами обозначены следующие места.
  1. Вход.
  2. Гостиная.
  3. Кухня.
  4. Кабинет.
  5. Терраса.
  6. Главная спальня.
  7. Спальня на веранде.
  8. Главная ванная.
  9. Санузел.
  10. Летний душ.
Это один из акварельных эскизов, созданных Артуром на начальном этапе работы. «Немногие архитекторы сегодня делают такие наброски, но мне это очень нравится», говорит он.

СМОТРИТЕ ТАКЖЕ…
Еще 45 примеров домов и квартир из Северной Америки

СТАТЬИ ПО ТЕМЕ…
Houzz в мире | Мир дизайна | США и Канада | Австралия | Япония | Северная Европа | Британия | Франция | Германия | Италия | Испания | Другие страны

Комментарии 3

Лена

10 л.

хэндмэйд -он и в Африке-hand made. Его ешо ни кто не отменял. Просто хорошо забытое старое,вкус надо иметь гаспада, да и только.
Отличная статья и безусловно высокая работа Архитектора. Познавательно.
Отличная статья, Спасибо! Архитектор Arthur Andersson великолепно владеет архитектурной графикой! Такая редкость в настоящее время... Добавлю к этому поразительное чувство места для привязки объекта и остроумие в подборе отделки для стен построек.Его творчество Заслуживает самых высоких похвал!

Оставьте комментарий

Смотреть похожие темы

Читать похожие статьи