
Houzz США: Дом в лесах, к северу от Нью-Йорка
Houzz Россия
7

11 апр. 2017
Обновлено 4 авг. 2018
7 л.

Houzz США: Дом в лесах, к северу от Нью-Йорка
Houzz Россия
7

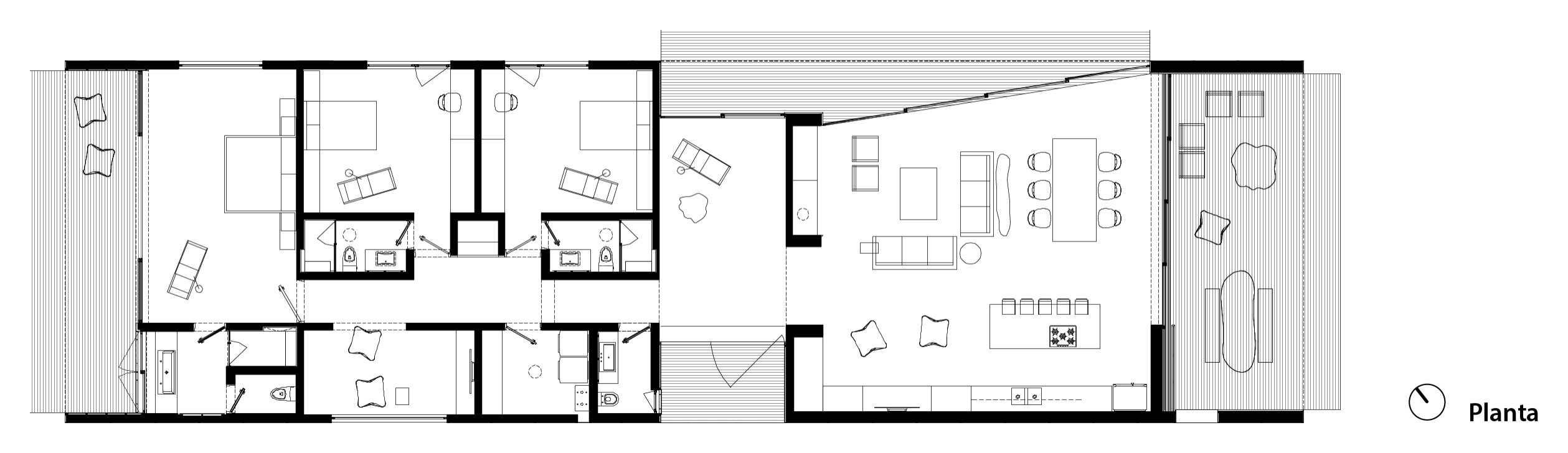
Houzz Япония: Дом 40 метров... в длину
Houzz Россия
5

Дом-легенда: Реконструкция «Двуликого Сфинкса» Филиппа Старка
Houzz Россия
6

Houzz Индия: Большой дом в тропическом стиле
Houzz Россия
8

Houzz Испания: Современный дом вместо амбара
Houzz Россия
9

Houzz Британия: Терраса на крыше дома с деревом посередине
Houzz Россия
8

Houzz Новая Зеландия: невероятный дом в чистом поле
Houzz Россия
10

Проект недели: 40 кв.м. — переделка узкого двора
Houzz Россия
2

До и после: Переделка каркасного домика 1980-х годов
Houzz Россия
11

Houzz Швеция: И дом, и галерея
Houzz Россия
3

Houzz Германия: Когда Бавария встречается с Японией
Houzz Россия
3

Houzz Белоруссия: Испанская вилла под Минском
Евгения Назарова
27

Houzz Германия: Перестройка двух одинаковых домов — сравниваем!
Houzz Россия
2

Houzz Австралия: Дом на узком участке увеличили вдвое
Houzz Россия
20

Houzz Британия: Чудесное превращение старой молочной фермы
Houzz Россия
26

Houzz тур: 31 кв.м — квартира с «гнездом» для кота
Houzz Россия
9

Архитектура: «Пасхальный» дом в Домодедово
Евгения Назарова
25

Houzz тур: Дом, который продали во время ремонта
Houzz Россия
19
Эля Якова
7 л.