logo

Houzz Латвия: Дом из амбарной доски и стали

Здание возвели на готовом фундаменте, используя местные материалы

Евгения Назарова
Евгения Назарова

12 апр. 2018

Обновлено 6 дек. 2018

Постоянный автор Houzz, интерьерный журналист

Небольшой частный дом расположен недалеко от Рижского залива. Участок граничит с лесом, а дом за счет нестандартной планировки воспринимается как часть ландшафта. О проекте Место: Латвия, 30 км от Риги Размер: 125 кв.м Кто здесь живёт: основную часть дома занимает семья; для родственников и друзей предусмотрена приватная часть с отдельным входом Авторы проекта: Анастасия Шевелева, Александр Малинин, INT2architecture
До знакомства с архитекторами заказчики уже начали строительство по готовому проекту. Дело даже дошло до фундаментов, но хозяева вскоре передумали: тот вариант дома устраивал их не до конца. Залитые фундаменты решили сохранить, как и деревья, росшие рядом. Этим и объясняется о тдельное расположение построек (дома и гаража) на участке.
Дом, построенный по каркасной технологии, поделен на две части. В основной (хозяйской) располагаются кухня-гостиная, спальня и кабинет. В гостевой предусмотрены спальня и ванная с сауной. Блоки объединены крытым переходом: он визуально соединяет двор с лесом, а летом превращается в крытую террасу для завтраков. Для отделки фасадов использован местный материал — амбарная доска, пропитанная гидрофобным составом. Крыша и фасады отделаны стальными фальцевыми панелями цвета антрацит .
Особое внимание уделили деталям: и ради эстетики постройки, и для будущего комфорта владельцев. Со стороны гостевой части предусмотрели небольшой навес и мини-террасу для хранения дров (в гостиной есть печь). На террасе со стороны основной спальни разместили уличный душ. Наличники на окна сделали из той же стали, что и фасады.
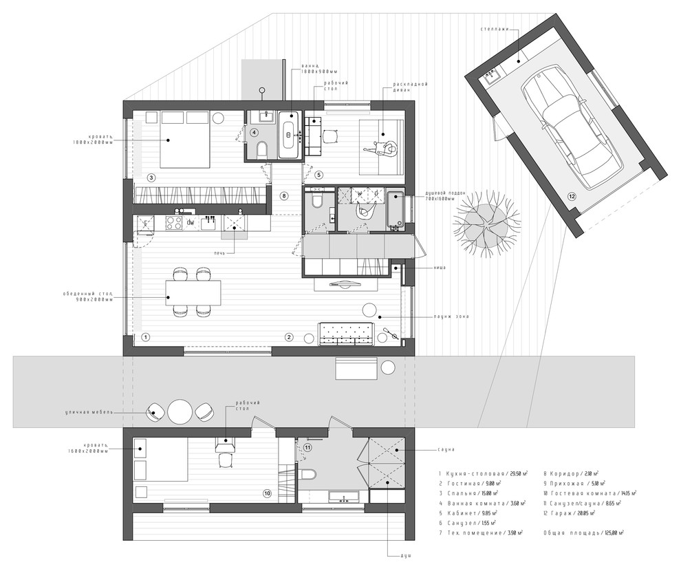
Планировка дома
ПРИХОЖАЯ Интерьер дома решен в духе минимализма. Основная составляющая концепции проекта — единство интерьера и ландшафта: простая отделка, отсутствие броских деталей и экологичность материалов подчеркивают связь между лесом и внутренним пространством дома. Базовый материал внутренней отделки тоже местный: все основные поверхности в доме обшиты березовой фанерой. Из неё же изготовлены фасады вместительных шкафов в прихожей.
Отделка пола Dinesen, BaseDouglas Classic; диван BoConcept; консоль под телевизором MINT, M1211; о беденный стол Muuto, Adaptable; стулья HAY Кухня, объединенная с гостиной и столовой — центральное помещение в доме: здесь нет лишних деталей, большая часть мебели выбрана у скандинавских брендов и решена в лаконичных линиях. На полу использована доска хвойных пород, причем без плинтуса: стены отделывали фанерой уже после того, как был уложен пол.
Один из самых броских элементов кухни-гостиной — дровяная печь . Благодаря конвекционным боковинам её можно встраивать вплотную к горючим материалам (например, в линию кухонного фронта) и использовать как дополнительный источник обогрева. Вытяжка у варочной поверхности встроена в навесной шкаф. У печи — естественная вентиляция.
Крупная бытовая техника от Miele; дровяная печь Josef Davidssons, Viking 75 Проблема и решение: Необходимые технологические решения порой портят интерьер. Чтобы деликатно вписать их в пространство, вместо вентиляционных решеток архитекторы сделали фрезеровку в фанере для канального кондиционера и вентиляции.
Кровать MINT, M1903; с толик у кровати Rolf Benz, 973 Side Table СПАЛЬНЯ Это лаконичное пространство с большим окном и видом на лес. В интерьере нет ничего лишнего, лишь базовый набор предметов: двуспальная кровать с прикроватными столиками и платяной шкаф, который протянулся от стены до стены. Все ручки в фанерной мебели сделаны по эскизам архитекторов.
Мозаика Jasba, Loop ГЛАВНЫЙ САНУЗЕЛ Самым тонким моментом в обустройстве санузлов стали стыки между материалами: круглую серую мозаику и фанеру уложили в одной плоскости. Благодаря миксу материалов удалось защитить « мокрые » зоны от брызг воды и выдержать в интерьере общую линию: фанера стала объединяющим материалом для всех помещений.
Рабочий стол BoCocncept, Cupertino; стул BoCocncept, London; диван Innovation, Splitback КАБИНЕТ Отдельный кабинет тоже полностью обшит фанерой. А на полу использовали доски хвойных пород без плинтуса. Стена за диваном сделана из фанеры по эскизам Анастасии и Александра. Рабочий стол отделан шпоном ореха под лаком с матовой чёрной структурой. Он рифмуется с оконными рамами, радиатором и розетками, которые выделяются на фоне светлых стен.
Кровать MINT, M1902; п рикроватная тумба Bolia, Case; рабочий стол Bolia, Vilfred ; стул BoCocncept, London ГОСТЕВАЯ КОМНАТА Спальня для друзей или родственников находится в отдельном корпусе — его отделяет крытая терраса. Платяной шкаф и вход в санузел объединены в блок, выделенный белым цветом, причем смонтированная на скрытую коробку дверь почти незаметна в интерьере, выдает ее только ручка.
Душевая и сауна TYLO, Inpression Twin i1309; р аковина Clou, Mini Wash Me В гостевом санузле предусмотрена сауна с душевой кабиной. Естественный свет попадает в помещение через окно над раковиной. ОБ АВТОРАХ ПРОЕКТА… Перейдите на страницу Анастасии Шевелевой и Александра Малинина, INT2architecture , чтобы изучить другие работы из портфолио архитекторов ________________________ В ВАШЕМ ГОРОДЕ… Найдите архитектора на Houzz в вашем городе — закажите собственный проект У ВАС ЕСТЬ ДЛЯ НАС ПРОЕКТ… Загрузите съёмку в свой профиль на Houzz, отправьте ссылку с кратким описанием на editorial@flatica.ru Для справки: Какие объекты мы публикуем

Комментарии 51

Очень стильный проект
Надежда Фролова точь-в-точь выразила моё ощущение от просмотра фотографий этого проекта.
Проект понравился, прямо мое. Люблю такой стиль, чистоту и покой. Только да, не понятно, как решен вопрос с обогревом и водоподготовкой. Батареи есть, следовательно, должен быть котел и все пр., а горячая вода? Как решен вопрос отопления с отдельностоящей частью, гостевой? Жаль, что авторы проекта никак не комментируют и не отвечают на вопросы.

Оставьте комментарий

Читать похожие статьи