logo

Houzz Испания: Пентхаус с хитрой планировкой в Мадриде

Микс органических очертаний и форм, а также единство интерьера с экстерьером легли в основу этого проекта

Houzz Россия
Houzz Россия

8 янв. 2016

Обновлено 23 мар. 2016

Отправная точка проекта чердачное помещение шириной два с половиной метра. Чтобы попасть на террасу, владельцам квартиры приходилось идти сквозь длинный и темный коридор. Эктор Руиз-Веласкес из HRuiz Architecture & Design Team, архитектор и владелец квартиры, превратил эту проходную зону — когда-то наименее привлекательную часть дома в центральный элемент проекта. Выполненная в виде изгибов, она стала душой квартиры. «Это наш первый дом после рождения ребенка. Мы хотели, чтобы пентхаус площадью 60 кв.м был открытым, светлым и позволял семье вкушать жизнь во всей ее полноте. Мы стремились эффективно использовать каждый сантиметр пространства, объединив разумный подход, эстетику и изобретательность», рассказал автор проекта.

О проекте
Место: Чамбери, Мадрид
Размер: 60 кв.м, плюс терраса — 30 кв.м
Кто здесь живет: Архитектор и автор проекта Эктор Руиз-Веласкес, его супруга — директор книжного магазина Ivory Press, и двое детей
Автор проекта: Эктор Руиз-Веласкес (Héctor Ruiz-Velázquez) из HRuiz Architecture & Design Team
Фото: Педро Мартинез (Pedro Martínez)
Коридор в форме трехмерной диагонали-синусоиды обеспечивает доступ к разным комнатам в этом мадридском пентхаусе. Эктор Руиз-Веласкес так объясняет избранное архитектурное решение: « Мне нравится удивлять. Когда вы попадаете в какое-либо место, очень важно первое впечатление. Это движение, которое производит изогнутый коридор, обусловлено не только эстетическим аспектом, но и практическими соображениями. Результат — динамичное пространство, которое удалось создать на небольшой площади, — продолжает архитектор. — Органические формы способны визуально преодолеть законы гравитации, заставить пространство парить и расширить его границы. Они эмоционально влияют на людей, которые здесь живут, и мы не можем отрицать, что они куда более «человеческие»: на чувственном, бессознательном уровне мы легко их воспринимаем и чувствуем себя комфортно в таких жилищах » . Пол во всем доме выложен древесиной породы ипе от Radisa . Отделка стен из МДФ также выполнена из материалов этой компании. Краску для стены выбрали в Valentine .
Стены коридора скрывают спальню с ванной комнатой. А сам коридор приводит в дневную зону с кухней и столовой. Доминирующий белый цвет интерьера разбавляют черные акценты, создавая интересные оптические эффекты. По словам архитектора, использованные « точки » и покрытия черного цвета дают ощущение глубины и создают контраст с белоснежным полотном трехмерного пространства. Кухня-столовая, центральная часть квартиры, организована таким образом, чтобы гость мог видеть в ней хозяина, но не знал, чем он там занимается. Такая планировка позволяет общаться, но не видеть, например, плиту и кухонные приспособления. Глянцевые кухонные модули легко моются и делают небольшое пространство визуально светлее. Вся кухонная техника — встроенная и спрятана за фасадами.
Столовая купается в лучах солнца, поступающих с трех сторон, и выглядит по-настоящему гостеприимно — в том числе и благодаря стульям, выполненным в таких же изогнутых линиях. Речь о классических моделях Panton Chair, которые выпускает Vitra . Отдельно архитектор говорит о выступе на полу: « Ступень с настилом стала решением, как скрыть 40-сантиметровый перепад высоты между помещением и террасой. Кроме того, она служит для того, чтобы спрятать коммуникации, которые проходят от кухни к санузлам.
Кривые линии использовали не только в оформлении стен и пола, но и на потолке, чтобы добиться гармоничного впечатления. « Технически выступы на потолке работают для того, чтобы скрыть элементы инсталляции, а с эстетического ракурса задают перспективу и вытягивают пространство — так формируется трехмерная концепция, которую хотелось реализовать в этом интерьере » , — говорит Эктор. Системы искусственного освещения продуманы до миллиметра, чтобы подчеркнуть объемы и создать ощущение спокойствия. Стены подсвечиваются со стороны потолка и пола, объединяя интерьер с экстерьером.
Полы выкрашены в белый цвет с глянцевой текстурой: они приятно « звучат » , так как материал поглощает звук и создает в комнатах особый уют. Что касается разных уровней, то они, к тому же, таят секрет: в покрытии есть люки, скрывающие под полом системы хранения.
Гостиная разместилась на террасе под крышей. « Возможно, мои корни сильно повлияли на некоторые решения в интерьере, — говорит Эктор, который родился в Пуэрто-Рико. — Для меня интерьер и экстерьер в урбанистическом окружении должны находиться в непрерывном единстве, благо средиземноморский климат и ограждение позволяют реализовать этот прием летом » .
В гостиной использована мебель на колесиках, которую легко передвинуть на открытую часть террасы. Комплектацию довершает легендарная модель — красивый и эргономичный шезлонг LC4, созданный Ле Корбюзье, Пьером Жаннере и Шарлоттой Перриан — сейчас его перевыпускает Cassina.
Как и гостиную, спальню можно полностью объединить с экстерьером летом, а зимой — закрыть. В эту комнату попадаешь либо с террасы, либо из столовой — через остекленную откатную дверь. Кровать заказали в La Oca , а торшер модели SAMTID выбрали в IKEA.
Постельное белье: Gandia Blasco; серое покрывало: La Oca И в гостиной, и в спальне полупрозрачные гардины сочетали с другими покрытиями, чтобы иметь возможность затемнить помещение и защититься от холода. В остекленных перегородках встроены электрические элементы, а тенты под крышей открываются и закрываются механически, в зависимости от задач на конкретный момент. В целом, системы освещения и обогрева организованы для максимального комфорта.
В санузле можно увидеть подвесную сантехнику, дизайн которой создан Филиппом Старком для Duravit, и душевую кабину. Зеркало на стене как будто увеличивает пространство вдвое.
В детской спальне изогнутая стена, которая огибает также ванную, выложена зелеными стеклянными элементами размером 10x10 см — она отражает свет и изолирует стену от влаги. Эту облицовку заказали в Azulejos Peña. Высокие полки позволяют максимально освободить пространство для игры.
Эскиз коридора: динамичная ось, которая бросает вызов гравитации и логике, неожиданно меняя восприятие пространства по мере того, как вы продвигаетесь по нему, формирует пространство-поток, который тянется вдоль всего дома. Эктор спроектировал его, ориентируясь на переход от помещения к этажу, а не наоборот.
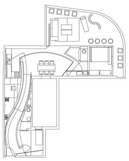
План квартиры Г-образной формы: В этом «складывающемся» пространстве легко почувствовать объемы, а вот функционал остается незамеченным. Гостиная и спальня со стеклянными фасадами сливаются с экстерьером, а владельцы ощущают себя так, будто живут в бесконечном лете. К тому же каждое помещение открыто к другому, чтобы создать ощущение протяженности и донести непрямой свет до самых удаленных уголков квартиры. Эта квартира вся наполнена театральными трюками, которые придают пространству индивидуальность. « Во время учебы в Академии Андреа Палладио в Виченце я много узнал об усилении перспективы. Эти приемы нашли отражение в том, как я понимаю архитектуру, как классические приемы внедряются в современную жизнь » , — резумирует Эктор Руиз-Веласкес, владелец студии HRuiz Architecture & Design Team, а также этого оригинального мадридского пентхауса. РАССКАЖИТЕ НАМ… Что вам больше всего понравилось в этом необычном проекте? Поделитесь своим мнением в разделе комментариев. СТАТЬИ ПО ТЕМЕ… Houzz в мире | Мир дизайна | США и Канада | Австралия | Япония | Северная Европа | Британия | Франция | Германия | Италия | Испания | Другие страны

Комментарии 3

Eloiz Sa

10 л.

Суперрр ....вот это действительно космос...К белому цвету не очень ...но здесь..все очень органично...и превосходно...
Супер!!! Чувствуется рука мастера, очень индивидуальный интерьер. У нас штампуют безликие интерьеры с одним и тем же набором мебели, светильников и т.п., и называют это дизайном.......
9katena

10 л.

Детская похожа на кладовую для швабр и ведер... Там есть окно?

Оставьте комментарий

Смотреть похожие темы

Читать похожие статьи