logo

Houzz Испания: Дом как бетонная скала, что выросла у Средиземного моря

Построенный по авторскому проекту дом на Коста-Брава превратился в уникальную смотровую площадку

Houzz Россия
Houzz Россия

2 сент. 2015

Обновлено 12 окт. 2015

Расположенный в престижном районе Коста-Брава, этот дом, повернутый к морю, выделяется причудливым фасадом. В любом случае, Оскар Велез, архитектор, которому поручили проектирование, считает, что ему повезло встретить идеального заказчика: «Владелец человек публичный и не лишенный фантазии: он хотел построить необычный дом и отойти от привычных архитектурных схем. Кроме того, он мечтал акцентировать вид на море, что было не так-то просто. Успеху мы обязаны, в первую очередь, взаимопониманию, которое установилось с первой минуты знакомства».

О проекте
Место:
один из самых живописных уголков местечка Бегур, Коста-Брава (Жирона)
Размер: площадь дома 288 кв.м, участка 1400 кв.м
Кто здесь живет: это вторая резиденция семейной пары с четырьмя детьми
Автор проекта: Оскар Велез, VelezCarrascoArquitecto
Интересные факты: сад, который мы видим на фото, создавался со второй попытки: первый продержался ровно три дня, пока его не смыло сильнейшим ливнем с градом. И случилось это на следующий день после того, как владельцы получили ключи
Фото: Рафаэль Варгас (Rafael Vargas); стилист — Мар Рекена (Mar Requena)
Houzz Испания: Дом как бетонная скала, что выросла у Средиземного моря
Решение построить фасад из бетона было принято, чтобы минимизировать уход за ним. «Я живу недалеко от этого дома, рядом с морем, и знаю, что окрашенные фасады требуют обновления максимум через два года, объяснил архитектор. Бетон как решение для фасада не часто встречается в этой местности, а ведь он красиво стареет, и на поверхности не видны загрязнения».

Фото: Хорди Алкала (Jordi Alcalá)
Houzz Испания: Дом как бетонная скала, что выросла у Средиземного моря
Для украшения ландшафта выбрали местные растения. В основном, они растут самостоятельно и требуют ухода в разумных рамках. «Все растения, которые мы посадили, родные для этого климатического пояса кроме, разве что, олеандров. Здесь есть и ароматные травы — лаванда, укроп и другие, — и каменный дуб, и лимонные деревья, и даже великолепная олива, которая приветствует при входе в дом». По мнению архитектора, не тратить время на уход за садом разумная идея для владельцев дома, которые проводят здесь всего несколько недель в году.
Houzz Испания: Дом как бетонная скала, что выросла у Средиземного моря
Дом выглядит так, будто наполовину ушел под землю. «Земельные законы относительно побережья в Бегуре очень строгие: нельзя строить здания, которые возвышались бы над землей больше, чем на пять метров. Так как участок расположен под наклоном, у нас не было другого выхода», считает архитектор. Благодаря каменному фасаду дом похож на скалу, выросшую на лесном склоне.
Houzz Испания: Дом как бетонная скала, что выросла у Средиземного моря
Так как участок обращен не к морю, фасад пришлось разворачивать навстречу видам. «Фасад тянется к морю углом в этой части дома расположены приватные комнаты, а наиболее хорошо средиземноморские пейзажи выделены в зоне, где находятся гостиная, столовая и кухня», рассказал автор проекта. Одна из главных особенностей дома панорамное окно, которое тянется на 21 м в длину и превращает жилье в потрясающую смотровую площадку.

Фото: Ксавье Валлехо (Xavier Vallejo)
Houzz Испания: Дом как бетонная скала, что выросла у Средиземного моря
Комнаты расположили по линейному принципу заказчик хотел, чтобы одно помещение плавно перетекало в другое, не встречая преград в виде коридоров и дверей.

Кухня, гостиная и столовая находятся в едином 80-метровом пространстве, которое ограничено лестницей на нижний этаж и каменной стеной в гостиной. Зону кухни подчеркивает остров с огромной рабочей поверхностью.
Houzz Испания: Дом как бетонная скала, что выросла у Средиземного моря
Пол выложили камнем из Сан-Висанс это износостойкая и приятная на ощупь порода, которая органично вписалась в общий облик дома. Фасады выглядят достаточно строго; эта строгость проникла в интерьер и повлияла на выбор мебели. В особенности это касается сосны особого сорта Мелис древесины отличного качества, которая долгое время сохраняет аромат смолы. Ее использовали в отделке пространства между гостиной и спальней, а обнаружили в виде старых балок на фабрике с более чем столетней историей.

«Сосна Мелис материал, который часто используют для производства мебели в IKEA. Для быстрого роста сосну оборачивают пластиком, а это приводит к тому, что древесина становится мягкой. Дерево, которое использовали мы, росло в естественной среде и сохранило свою особую прочность. Я рад, что мы использовали именно эту древесину, а не любой другой благородный материал, который все знают сосна придает интерьеру особый шик, близкий по духу этому дому», рассказал автор проекта.
Houzz Испания: Дом как бетонная скала, что выросла у Средиземного моря
Мебель выбирали сами владельцы, ориентируясь на иконы дизайна. Диваны нашли у Vitra, это модель Polder голландского дизайнера Хеллы Йонгериус (Hella Jongerius). Еще один предмет, который обращает на себя внимание — кресло-бабочка, икона современного дизайна. Пучок из трех металлических трубок, напоминающих китайские палочки, удерживает роскошный абажур это Trípode G5 от Santa & Cole.
Houzz Испания: Дом как бетонная скала, что выросла у Средиземного моря
В доме почти нет развязок и проходов. «Единственный коридор ограничен сосновыми панелями, которые больше похожи на мебель, чем на стену. С другой стороны протянулась линия шкафов они не до конца примыкают к потолку, и вечером над ними зажигается встроенный свет, создавая иллюзию расширения пространства», говорит архитектор.
Houzz Испания: Дом как бетонная скала, что выросла у Средиземного моря
В спальне установили подиум, который приподнял кровать: теперь отсюда открывается самый эффектный пейзаж. Это не перегруженная деталями комната с мебелью строгих линий и примыкающей ванной.
Houzz Испания: Дом как бетонная скала, что выросла у Средиземного моря
Спальню и ванную связали между собой, чтобы максимально отказаться от дверей-разделителей. Стеллаж, не примыкающий к потолку, отделяет приватную зону, оформленную в простых линиях и без избытка мебели. Таким образом, вход в ванную превращается в удобный тамбур.
Houzz Испания: Дом как бетонная скала, что выросла у Средиземного моря
В определенной степени на интерьер повлияли земледельческие традиции региона: отсюда выбор каменной отделки для некоторых зон. «Грядки в горах на побережье Коста-Брава обустраивают на склонах: наши каменные установки напоминают конструкции, на которых здесь выращивают виноград и оливу», пояснил архитектор.
Houzz Испания: Дом как бетонная скала, что выросла у Средиземного моря
Прежде чем приступать к отделке, все материалы внимательно изучили на предмет использования в прибрежной зоне, где в некоторые месяцы дует северный ветер. На двухуровневой террасе в зоне бассейна использована та же каменная порода из Сан-Висанс, что и на полу в доме. В силу погодных условий входные двери выполнены из нержавеющей стали и выкрашены в черный: этот прием порой используют в оформлении общественных зданий.

Расположение бассейна продиктовано наклоном породы. «Мы приняли решение разместить бассейн в дополнение к основному зданию, на уровне крыльца, перед спальнями внизу. Идея оказалась удачной, так как рядом с бассейном теперь есть солнечная терраса с крытой площадкой, откуда можно попасть и в спальню, и на верхний этаж», поделился автор проекта.
Houzz Испания: Дом как бетонная скала, что выросла у Средиземного моря
Освещение ключевой элемент проекта, оно создает уютную обстановку и уходит от концепции «включить свет, чтобы видеть». Комнаты словно перетекают одна в другую, и сценарий освещения был построен по той же схеме — свет переливается плавно, неразрывно объединяя помещения.

Большинство светильников регулируемые, и настраивали их так, чтобы теплый медовый свет создавал уют. Искусственное освещение формирует участки света и тени, которые ломают однородность пространства и акцентируют основные маршруты в главной части дома.
Houzz Испания: Дом как бетонная скала, что выросла у Средиземного моря
Эффектный пример грамотной работы со светом иллюминация коридора, который протянулся вдоль окон и занял всего 50 см в ширину: «Нам хотелось, чтобы 21-метровая галерея воспринималась снаружи как единое пространство». Это ощущение становится особенно сильным в вечернее время, когда включается ночная подсветка.

Кроме того, в доме установили элементы автоматизации на уровне климатического контроля и систем безопасности. «Для экономии электроэнергии мы установили тепловой насос для подогрева воды и кондиционирования воздуха. Это так эффективно, что нас освободили от обязательного использования солнечных батарей, несмотря на существующие правила», признался автор проекта.
Houzz Испания: Дом как бетонная скала, что выросла у Средиземного моря
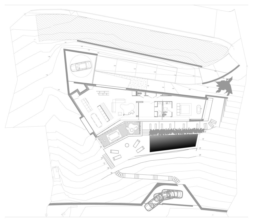
Верхний этаж
Оскар признался, что закладывать фундамент было сложно: «При строительстве у нас возникли проблемы с поиском точки опоры на всем протяжении дома. Но, в конце концов, нам удалось сделать его двухэтажным, хотя часть нижнего этажа и уходит в землю. На плане видно, каким образом дом удалось повернуть к морю». Оскар годится тем, что ему удалось обустроить столько разноплановых помещений внутри одной постройки.

А еще здесь раскрывается один из секретов дома. «Мы назвали его “Хова”, потому что на плане он похож на карабин японской оружейной марки Howa. Нам понравилось это название: оно ничего не говорит человеку несведущему, но хорошо иллюстрирует планировку дома с присущим ему аскетизмом в обращении с пространством и материалами вполне японский способ освоить пространство», рассказал архитектор.
Houzz Испания: Дом как бетонная скала, что выросла у Средиземного моря
Нижний этаж
Кроме двух спален, здесь обустроили небольшой кабинет с ванной комнатой при входе этим помещением удобно пользоваться после бассейна.

Обустройство внешней среды было очень важно для восприятия дома: если на верхнем этаже разместили большую террасу, которая иногда превращается в открытую столовую, то на нижнем появились галерея неправильных очертаний и большая зона для принятия солнечных ванн у бассейна.

РАССКАЖИТЕ НАМ…
Понравился ли вам этот дом с бетонным фасадом у самого моря? Поделитесь своими идеями в разделе комментариев!

Комментарии 6

Отметил в первую очередь архитектурное решение. Также интересно было просмотреть, какую именно кухонную и жилую мебель подирают в подобные пространства.
Очень вписанный в ландшафт дом! С одной стороны вид на море, с другой - но зеленые горные пейзажи!
rbtr

10 л.

Вот это работа.

Оставьте комментарий

Смотреть похожие темы

Читать похожие статьи