logo

Houzz Германия: «Курная изба» на озере Шлирзее в Верхней Баварии

Традиционная сельская архитектура в современной интерпретации — в дереве и бетоне

Houzz Россия
Houzz Россия

9 авг. 2015

Обновлено 22 авг. 2015

На озере Шлирзее жизнь идет своим чередом. Преобладает традиционная архитектура, много старых сельских домов. Когда архитекторы бюро vonMeierMohr и заказчики встретились впервые, они вместе обошли земельный участок, расположенный прямо на озере и были одинаково очарованы лодочными сараями, которые, казалось, парят над водой. Поскольку их участок временами затапливает и в силу болотистой почвы, не выдерживающей большой нагрузки, то в качестве концепции будущей постройки буквально напрашивалась платформа на сваях. Также всех вдохновил способ возведения деревенских домов с характерными «черными кухнями», где каменный очаг был вписан в деревянную архитектуру. Этот принцип стал второй конструктивной особенностью вот только вместо камня здесь архитектурный бетон.
Houzz Германия: «Курная изба» на озере Шлирзее в Верхней Баварии
О проекте
Кто здесь живет: фотограф моды Барбара Маурер (к настоящему моменту умерла) и автоинженер Роберт Вебер
Размер: 200 кв.м
Место: Шлирзее
Автор проекта: Штефан Мор (Stefan Mohr), MeierMohr Architekten

Фото: Барбара Маурер и Йоханнес Коттье


Подобно лодочному сараю парит над землей этот построенный на 18 сваях дом. «Впервые обойдя участок, мы повсюду вокруг видели эти маленькие шлюпочные сараи, которые, казалось, висят над водой», рассказывает архитектор Штефан Мор из бюро vonMeierMohr Architekten. Поскольку участок время от времени затапливается, то потребовалось функциональное решение.
Houzz Германия: «Курная изба» на озере Шлирзее в Верхней Баварии
Фасад выполнен из лиственницы. Вся постройка, за исключением двух шахт для коммуникаций внутри нее, сооружена по принципу каркасного дома. В то время
как облицовка верхнего этажа пущена вертикально, большие раздвижные двери на первом этаже были обшиты горизонтально изысканно и эффектно.
Houzz Германия: «Курная изба» на озере Шлирзее в Верхней Баварии
Как и в традиционных домах во всей округе, кухня является центральной частью дома. «В свое время в доме моих родителей женщине была отведена маленькая кухонька и все… Из-за запахов или чего-то там еще. Сейчас все совсем иначе. В нашем доме можно сидеть где угодно хоть рядом с кухней, хоть нет. Она сердце дома», рассказывала об этом Барбара Маурер еще до своей смерти в документальном фильме, снятом ARD. Для нее, фотографа моды, которая часто была в разъездах, этот дом стал когда-то оазисом покоя. Ее последним проектом был фотоальбом «Место силы Баварии», вышедший уже после ее смерти (Herbig Verlag).

Слегка глянцевый бетонный пол нагревается теплом земли. Дело в том, что 18 столбов, на которых стоит дом, имеют зонды, по которым тепло передается внутрь дома. О технических деталях позаботился сам хозяин Роберт Вебер, который, будучи инженером-автомобилистом, исследует альтернативные двигатели

Мебель: Стол и стулья Tulip, диз. Ээро Сааринен (Eero Saarinen); барный табурет: Diz Chair, Lin Brasil
Houzz Германия: «Курная изба» на озере Шлирзее в Верхней Баварии
Столяр Оливер из мюнхенской фирмы Wense изготовил кухню с фасадами из промасленной брашированной лиственницы. Авторы эскизов архитекторы из vonMeierMohr.

Мойка:: Blanco Claron, Blanco; газовая варочная панель: Smeg
Houzz Германия: «Курная изба» на озере Шлирзее в Верхней Баварии
«Два бетонных пилона образуют своего рода якорь дома», рассказывает Штефан Мор. После того, как были забиты сваи, они были первым, что можно было увидеть на стройплощадке. Соседи втихаря перешептывались, что, мол, здесь построят безобразный гараж стоит признать, что на этом этапе строительства требовалась недюжинная сила воображения. В две отлитых из монолитного бетона «шахты» встроены все инженерные коммуникации дома, от которых зависит отопление, водоснабжение, готовка.
Houzz Германия: «Курная изба» на озере Шлирзее в Верхней Баварии
Дом опоясывает терраса, которая активно используется прежде всего в летнее время. Барбара Маурер когда-то описала ее так: «В летние месяцы большие окна у нас всегда распахнуты, и это так прекрасно, как жизнь струится изнутри наружу». Зимой опять же часто зажигают камин чем не «курная изба»?
Houzz Германия: «Курная изба» на озере Шлирзее в Верхней Баварии
Houzz Германия: «Курная изба» на озере Шлирзее в Верхней Баварии
Лестница огибает шахту коммуникаций и ведет на второй этаж, где расположены личные помещения, такие как спальня и бывшая мастерская Барбары Маурер.
Houzz Германия: «Курная изба» на озере Шлирзее в Верхней Баварии
По обе стороны от встроенных шкафов из лиственницы, изготовленных столярной мастерской Leutenbauer из Весслинга, тянется длинный коридор. Помимо спальни и гостевой комнаты здесь расположен кабинет хозяина дома и ателье хозяйки. Оно на другом конце коридора.
Houzz Германия: «Курная изба» на озере Шлирзее в Верхней Баварии
В мастерской наверху тоже есть камин. Железную дверь изготовила слесарная мастерская Rudolf Scheur. Справа к бетонной шахте прислонена фотография, сделанная хозяйкой дома. Весь пол второго этажа застелен половой доской из лжетсуги толщиной 3,5-сантиметров, сначала обработанной раствором щелочи, а потом покрытой маслом.
Houzz Германия: «Курная изба» на озере Шлирзее в Верхней Баварии
В ванной второго этажа тоже настелена половая доска из лжетсуги. Влажная зона, встроенная в бетонную сердцевину дома, освещается через световую шахту.

Мозаика: Jasba; умывальник: Vero, Duravit
Houzz Германия: «Курная изба» на озере Шлирзее в Верхней Баварии
Посмотрев из душа или ванны наверх, можно увидеть верхний свет.
Houzz Германия: «Курная изба» на озере Шлирзее в Верхней Баварии
Сандек открытая веранда чем-то похожа на плот: расположенная в такой близи от озера, архитектура логичным образом соотносится с лодочными сараями.
Houzz Германия: «Курная изба» на озере Шлирзее в Верхней Баварии
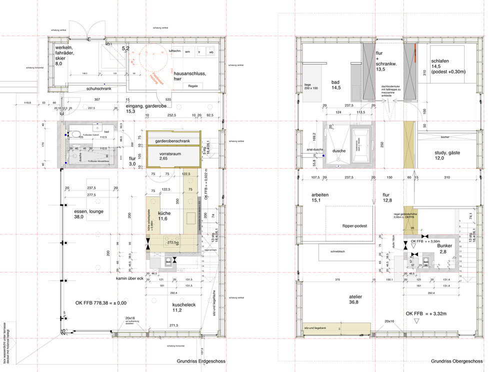
Победа за простотой! Подобно старым сельским домам с их «черными кухнями» на первом этаже все группируется вокруг очага. На втором этаже находятся помещения для работы и отдыха. Таким образом, здесь произошел апдейт традиционных форм во вкусе хозяев дома, современных и в то же время
тянущихся к корням.


Комментарии 1

Отметил организацию пространства кухни и гостиной. Интересна состыковка элементов камина и кухонной мебели. Интересно было узнать про наличие в сваях зондов, по которым тепло передается от земли дому.

Оставьте комментарий

Смотреть похожие темы

Читать похожие статьи