logo

Houzz Франция: Из студии — квартира с отдельной спальней

Стеклянная перегородка в спальне расчерчена по мотивам абстракции Мондриана

Houzz Россия
Houzz Россия

18 янв. 2018

Обновлено 27 сент. 2018

О проекте Место: Нёйи-сюр-Сен под Парижем, Франция Размер: 37 кв.м Кто здесь живет: девушка Авторы проекта: Aннн Фат и Юлия Шмит, агентство June Фото: Shoootin Владелица искала подходящий вариант почти год, прежде чем нашла жилье своей мечты — студию на пятом этаже дома 1960 годов. Хотя квартира находилась в довольно хорошем состоянии, она не соответствовала важным требованиям хозяйки. Ей нужны была спальня, отделенная от остальной части пространства, и гардеробная для хранения одежды и обуви.
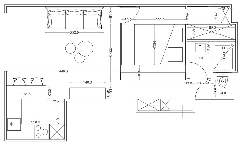
План квартиры Для всех ремонтных и установочных работ потребовалось два с половиной месяца. Дизайнеры уменьшили объединенный санузел, выделив место для отдельного туалета, и отдали часть пространства коридору и гардеробной. В студии полностью заменили проводку, сантехнику и радиаторы. Во всей квартире понизили потолок — это решение создало дополнительную звукоизоляцию и скрыло новую разводку.
ПРИХОЖАЯ До: Так выглядела входная часть до ремонта — белые стены, виниловое напольное покрытие и устаревшая проводка.
После: После переделки санузла в коридоре возвели новую стену, смежную со спальней. В нижних шкафах вдоль нее хранится обувь, а в нишах — книги хозяйки.
САНУЗЕЛ До: Санузел полностью перестроили — до ремонта он был объединенным и довольно просторным. Его решили уменьшить, выделив место для отдельного туалета и уступив сантиметры гардеробной при спальне.
После: Новый уменьшенный санузел вместил и душевую часть, и зону для умывания.
СПАЛЬНЯ Заказчица просила дизайнеров выделить в квартире отдельную спальню. Из-за того, что все окна находятся далековато от кровати, спальную часть отгородили прозрачной перегородкой из стекла и металла — она хорошо пропускает дневной свет. Р исунок перегородки выполнили по мотивам геометрической абстракции Мондриана, так как хозяйка — большая поклонница авангардного искусства.
Спальня не очень большая по площади, но полноценная кровать поместилась. На месте, взятом у прежнего санузла, организовали гардеробную. Полку со встроенными зеркалами над изголовьем дизайнеры сделали самостоятельно.
КУХНЯ-ГОСТИНАЯ До: Владелица влюбилась в эту квартиру из-за панорамного окна с выходом на небольшой балкон. Слева виден проем, в котором находилась узкая барная стойка.
После: Дизайнеры убрали часть перегородки между кухней и гостиной, впустив в общее пространство свет из окон. Вместо узкой стойки сделали широкий полуостров — в его основании несколько вместительных шкафов для посуды.
Кухонные шкафы ИКЕА; с толешница Lapeyre В кухню встроили всю необходимую хозяйке технику: духовку, микроволновку, посудомойку, раздельные холодильник и морозильник. П-образная планировка помогла разместить большое число шкафов, так что от части верхних модулей отказались. Взамен повесили несколько полок для открытого хранения коллекции ваз и посуды.
Раковину в цвет столешницы установили у окна, но максимально сдвинули в угол. Это позволило увеличить полезную площадь рабочей столешницы.
Мебель и свет ИКЕА, La Redoute Хозяйке близка эстетика скандинавского хюгге, она попросила дизайнеров использовать для студии монохромную бело-серо-черную гамму и натуральные материалы.
БАЛКОН Обновленный балкон визуально расширяет гостиную и частично компенсирует пространство, потерянное в спальне. На пол здесь постелили тиковые плитки, небоящиеся непогоды. А стандартный экран балкона заменили плетеным ограждением. ___________________________ В ВАШЕМ ГОРОДЕ… Найдите дизайнера на Houzz в вашем городе — закажите собственный проект

Комментарии 11

А где стиральная машина?
tovrotor

7 л.

очень понравилась кухня -гостиная-молодцы дизайнеры,все ок
Отличная квартира получилась. И диван отличный! Почему у нас в икее таких диванов нет?

Оставьте комментарий

Смотреть похожие темы

Читать похожие статьи