logo

Houzz Франция: Дом-корабль для путешествий по Сене

Жить на корабле у берегов Сены… Мечта, ставшая реальностью, благодаря полной реконструкции интерьеров старой лодки

Houzz Россия
Houzz Россия

14 февр. 2015

Обновлено 19 окт. 2016

«Когда-то этот старый корабль служил домом для пожилой пары. Новые владельцы судна знали меня и попросили полностью реконструировать интерьеры перед тем, как они туда въедут. Мы сломали все лишнее, чтобы вернуться к первоначальному состоянию судна, и даже немного изменили экстерьер», — объясняет архитектор Ян Кулуарн. «Предыдущие владельцы задействовали далеко не все внутренние пространства корабля, а мы решили использовать все его возможности». И начали создавать интерьеры в духе современного лофта. «Мне хотелось, чтобы здесь все было очень просто, чтобы были соблюдены все нормы, в том числе экологические, чтобы жилое пространство было максимально светлым и открытым и существовала действительная связь между экстерьером и интерьером».
Houzz Франция: Дом-корабль для путешествий по Сене
О проекте
Место: На берегу Сены в Дравее, пригороде Парижа
Размер: 130 кв.м
Кто здесь живет: Семья с двумя детьми
Автор проекта: Ян Кулуарн (Yann Coulouarn)
Интересные факты: Корабль 1930-х годов преобразовали в «плавучий дом» в 1970-х
Фото: Серджо Грациа (Sergio Grazia)
Houzz Франция: Дом-корабль для путешествий по Сене
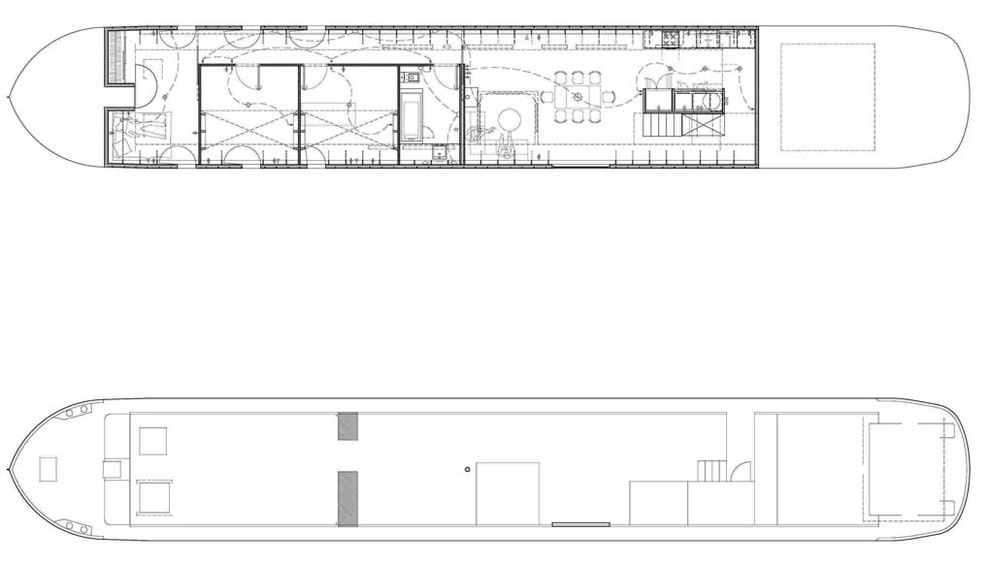
На судне, размеры которого 30 м в длину и 5 м в ширину, есть большая гостиная с открытой кухней, коридор, три спальни и ванная. Архитектор рачительно использовал имеющуюся площадь, по его словам, «дополнительное место удалось выкроить даже в рубке».

К слову, корабль перекрасили на верфи по ремонту барж, где заодно провели и техническую экспертизу. «Все корабли, на которых кто-то живет, нужно проверять каждые десять лет», подтверждает Ян Кулуарн. «Корпус судна имеет свойство расширяться и сжиматься в зависимости от температуры. Поэтому нам надо было улаживать технические проблемы с самого начала, в частности устанавливать специальные компенсаторы».
Houzz Франция: Дом-корабль для путешествий по Сене
В центре судна потолки довольно высокие, но на носу и на корме их высота меньше: около 2,10 метра. «Мы немного опустили пол в жилой части судна, но из-за этого там стало не хватать солнечного света». Так что пришлось думать, как компенсировать его нехватку: «Мы сделали дополнительные иллюминаторы в нижней части борта».
Houzz Франция: Дом-корабль для путешествий по Сене
Попасть внутрь можно по красивой лестнице из светлого дерева: входящий сразу оказывается в просторной гостиной. Открытое пространство объединяет в себе лаунж-зону, столовую и кухню. На полу доска из массива дуба: «Доски уложены в длину, чтобы создавать визуальный эффект протяженности пространства».
Houzz Франция: Дом-корабль для путешествий по Сене
На кухне необходимо было расположить многочисленные полки, разную бытовую технику и «еще насос — как, собственно, на всех баржах. Нужно было также увеличить рабочую поверхность столешниц».
Houzz Франция: Дом-корабль для путешествий по Сене
Большую часть мебели хозяева привезли с собой: «У них была отличная мебель, например, легендарные белые кресла и диван Togo Мишеля Дюкароя от Ligne Roset. «Верхние окна уже существовали, но мы заменили старые стекла на новые, пропускающие больше света. Они дают вид на небо, в то время как из иллюминаторов, расположенных ниже, видно Сену», рассказывает архитектор.
Houzz Франция: Дом-корабль для путешествий по Сене
Архитектор «сам занимался всей встроенной мебелью», но для кухни выбрал готовые шкафы из ИКЕА.
Houzz Франция: Дом-корабль для путешествий по Сене
Спальня родителей расположена в глубине, из нее через рубку можно выйти на нос корабля. Фактурная металлическая дверь была на судне и раньше, ее отреставрировали и теперь она ведет в гардеробную. Этот элемент очень оживляет интерьер, придает ему характер.
Houzz Франция: Дом-корабль для путешествий по Сене
«Мы спроектировали по комнате для обеих девочек, в каждой есть иллюминатор». Комнаты хорошо обставлены и адаптированы для детских игр и занятий.

Houzz Франция: Дом-корабль для путешествий по Сене
Дом на воде: план по этажам
Houzz Франция: Дом-корабль для путешествий по Сене
Дом из баржи: план в поперечном разрезе
Houzz Франция: Дом-корабль для путешествий по Сене
План корабля в продольном разрезе

ВАША ОЧЕРЕДЬ…
Понравился такой дом на воде? Расскажите нам, какие еще вы видели плавучие дома — фото присылайте в комментариях!

Комментарии 1

Дина

10 л.

Интересно как решен вопрос водоснабжения и бытовых стоков? Напрямую из реки и в реку, я так понимаю, не вариант....

Оставьте комментарий

Смотреть похожие темы

Читать похожие статьи