logo

Houzz Франция: 3 проекта квартир-студий с выделенной спальней

Учимся у парижан

Houzz Россия
Houzz Россия

19 нояб. 2018

Обновлено 6 февр. 2019

В этих небольших студиях удалось создать полноценную спальню, несмотря на нехватку метров. Смотрим, как именно.
План студии до ремонта 1. Студия в Марселе, где избавились от мезонина Место: Марсель, Франция Размер: около 40 кв.м Кто здесь живет: семейная пара среднего возраста Продолжительность работ: четыре месяца Дизайнер : Мария Олофсон
Это была студия с кухней, мезонином и ванной комнатой у входа. Апартаменты расположены на четвертом этаже дома в живописном районе Вобан (Vauban) в Марселе. Тут высокие потолки — 3,4 метра, много света, а из окон открывается вид на местный собор Нотр-Дам-де-ла-Гард. Интерьеры, правда, требовали обновления и более функциональных решений. Владельцы хотели, чтобы в студии появилась отдельная спальня без всяких лестниц на второй уровень.
План студии после ремонта Дизайнер выбрала для спальни самую темную часть, где раньше находился мезонин, и немного расширила границы комнаты. Это решение позволило разместить в спальне вместительный шкаф и оставить удобные подступы к кровати (не менее 50 см с каждой стороны). От камина отказались: «он стоял у единственной стены, где мы могли поставить полноценный диван», — объясняет дизайнер.
Хозяйка любит синий цвет, поэтому для интерьеров выбрали оттенки этой гаммы: сине-зеленый в гостиной, павлиний синий на кухне и приглушенный вариант для ванной. «Разные оттенки синего, даже яркие, хорошо сочетаются друг с другом», — говорит Мария.
Чтобы выделить спальню, не жертвуя естественным светом, дизайнер выгородила « комнату » с выходящей в гостиную стеклянной стеной. Изначально в студии был только один большой шкаф у входа, и места для вещей не хватало. В спальне вдоль одной из стен установили новый вместительный гардероб. Для него выбрали зеркальные двери, отражающие свет из окна гостиной. Настенный светильник над изголовьем сделал владелец квартиры.
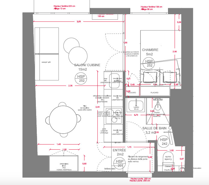
2. Студия с функциональной перегородкой, отделяющей спальню Место: Леваллуа-Перре, Франция Размер: 27 кв.м Кто здесь живет : студентка Продолжительность работ : два месяца Дизайнер : Аделина Соваж, myHomeDesign
Эту квартиру родители нынешней владелицы купили еще в 2000 году. До нового ремонта тут была большая комната с балкой в середине потолка, мини-кухня, гардеробная и ванная. Юная владелица попросила организовать больше места для работы, хранения вещей, уголок для просмотра телевизора и побольше уединения в «спальне».
План квартиры после ремонта Для деления пространства дизайнер предложила использовать балку, проходящую по потолку. По этой линии Аделина разработала конструкцию, соединившую в себе функции перегородки, обеденного и рабочего стола. «Не хотелось делить это небольшое пространство с помощью гипсокартона: так мы бы потеряли весь свет и заблокировали перспективы пространства», — рассказывает автор проекта. Чтобы увеличить место для хранения, дизайнер предложила поставить в спальной части шкаф с антресолями между блоками.
Диван Drawer ; ковер Toulemonde Bochart; стулья Umbra; подвесной светильник Tull, Incipit; кресло-качалка Maisons du Monde ; стол La Redoute Для гостиной дизайнер выбрала современные предметы с тонкими ножками или ажурной структурой, чтобы визуально не загромождать пространство.
Перегородку изготовили на заказ в плотницкой мастерской. «Мы хотели, чтобы конструкция выглядела так, словно всегда была там, поэтому связали ее с проходящей по потолку балкой», — отмечает дизайнер. Со стороны гостиной обеденный столик можно поднимать или опускать, освобождая место в комнате. Раньше в квартире вообще не было обеденного стола.
Перегородка работает на камерность спальни: со стороны гостиной нет прямого вида на кровать.
Со стороны спальни перегородка превращается в рабочий уголок. Существующую нишу слева переделали в стеллаж с задником из пробки, чтобы вешать туда памятки и нужные бумаги. А под столешницей установили шкафчики глубиной 40 см, куда прячутся все учебные и рабочие материалы.
Обои Ferm Living; рабочий стул IKEA Чтобы увеличить место для хранения, шкафчики глубиной 60 см повесили и над изголовьем. А у самой кровати сделали подъемную конструкцию, чтобы убирать под матрас пледы, подушки и сезонные вещи.
3. Спальня на месте кухни Место: Пре-Сен-Жерве, недалеко от Парижа, Франция Размер: 26 кв.м Кто здесь живет: молодая хозяйка Дизайнеры: Марго Меза и Карла Лопес , Transition Intérieur design Эта студия в доме 1960-х была с раздельными спальней-гостиной (15 кв.м) и кухней (5 кв.м). Владелица хотела сделать общую кухню-гостиную и выделить спальню в более уединенное пространство.
Исходный план помещения
План студии после ремонта Перебрав несколько вариантов, дизайнеры и заказчица решили сделать спальню на месте кухни, чтобы там было окно. «Сначала хозяйка думала поставить в гостиной диван-кровать, но после недолгого разговора этот вариант отклонили как не самый комфортный для нормального сна», — рассказывает Карла Лопес.
Вид гостиной до ремонта Входная часть была очень темной, а вместо шкафа в гостиной была ниша с портьерой вместо двери.
Обои с птицами MissPrint Дизайнеры убрали одну из перегородок между входной частью и гостиной, чтобы впустить туда естественный свет. И сделали в этой зоне антресоль, чтобы хранить там чемоданы и сезонные вещи. Хозяйка очень любит обои, и для входной зоны выбрала вариант с орнаментом из ветвей и птиц.
Старое напольное покрытие 1960-х было в плохом состоянии. Его удалили, заменив на доски из светлого дуба.
Кухню перенесли в пространство гостиной, для шкафов выбрали светлые фасады. Мраморный фартук — на деле красивая имитация из плитки. По стене у входа разместили шкаф, где хранится часть кухонной утвари.
Каркас кухни IKEA; фасады Superfront; ручки Hardware
Диван Ligne Roset; стулья Calligaris; стол с мраморной столешницей AM.PM; подвесной светильник Secto design
Спальню сделали небольшой, но там есть все необходимое для владелицы. В том числе — полноценная кровать с функциональным изголовьем. «Мы спроектировали его в виде двух высоких шкафов по бокам и антресоли сверху. Нишу над изголовьем оклеили орнаментальными обоями, которые так любит заказчица», — рассказывает Карла.
Краска Ressource ; обои MissPrint «Мы подбирали цвета для спальни и выбрали базовый белый и синий. Перепробовали для шкафа все возможные контрастные оттенки, в том числе желтый. Но лучшим вариантом неожиданно оказался розовый. Мы с хозяйкой просто влюбились в это сочетание», — вспоминает Карла Лопес. ПО ТЕМЕ… Есть решение: Спальня без окна Спальня в небольшой квартире: Как организовать спальное место Микротренды: «Спальня в кубе» — а почему бы и нет ___________________________ В ВАШЕМ ГОРОДЕ… Найдите дизайнера на Houzz в вашем городе — закажите собственный проект

Комментарии 15

Последний вариант вообще какой то, как будто часть квартиры забыли оставить, а вторую загромиздили просто минишкафами. И вход в стену. А вот цвет и птички очень хорошо.
Прекрасные минималистичные решения! Надеюсь, что следующее поколение в нашей стране осознает, что вместо квартиры в человейнике - 60 метров , лучше жить в центре и тратить время и деньги на путешествия и музеи с театрами, чем 3часа на дорогу-"зато квартира большая"! Квартира для меня, а не я для квартиры! И вместо хранения 100500 книг, которые уже прочли и гостиной, в которой гости бывают раз в квартал - можно прогуляться по парку или посидеть с друзьями в кафе, или в конце концов выспаться! Дорогие"критики"- из серии " лучше бы купили квартиру побольше"- купите хотя бы 40 метров в центре тысяч по 300-400 за метр, а потом говорите, что лучше)
obelov145

7 л.

Интересно как решается вопрос с притоком воздуха в эти стеклянные аквариумы, ведь предполагается, что человек там реально спит закрыв двери ... чем там дышать???

Оставьте комментарий

Читать похожие статьи