logo

Houzz Австралия: Старый коттедж с футуристичной террасой

Как увеличить дом в два раза? Архитектор из Мельбурна нашел оригинальные решения, среди которых необычная терраса и контейнер на крыше

Houzz Россия
Houzz Россия

10 мар. 2015

Обновлено 6 мая 2015

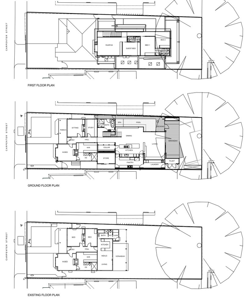
Этот проект, получивший ряд архитектурных наград, — по сути, переделка старого коттеджа под нужды современной семьи. «Хозяевам нравился этот эдвардианский дом, построенный в начале прошлого века, но им хотелось чего-то более современного и просторного. Они также хотели, чтобы жилые комнаты в доме представляли некое единство, но идея сделать общее пространство кухни, гостиной и столовой в одном помещении им не нравилась», — рассказывает архитектор Линдси Дуглас из мельбурнского бюро Dig Design, который и занимался переделкой. Таким образом, ему предстояло реорганизовать уже имеющиеся квадратные метры, задействовать территорию вокруг дома и превратить все это в комфортное семейное жилище.

О проекте Место: Мельбурн, Брайтон (центральный район города), Австралия Год: Проект реализован в 2014 году Размер: 223 кв.м.; 4 спальни, 4 ванные комнаты Кто здесь живет: Семья с двумя детьми Автор проекта: Архитектор Линдси Дуглас ( Lindsay Douglas ), бюро Dig Design
ДО: Задний фасад дома до реконструкции.
ПОСЛЕ: А вот как он выглядит теперь. Благодаря пристроенной к дому оригинальной деревянной террасе, за которую дизайнер получил ряд наград, удалось не только расширить жилое пространство, но и превратить этот классический коттедж в суперсовременное и комфортное жилище.
С улицы дом выглядит как традиционный, милый коттедж — его облик практически не изменился, за исключением новой широкой двери и минимальной реставрации фасада. Современная дверь — своеобразная подсказка к тому, что скрывается внутри.
Полы в прихожей и в коридоре заменили на широкие доски из ореха. Этот оттенок дерева был выбран автором проекта как своеобразное связующее звено между прежней историей дома и его новым обликом. Кроме того, элементы в отделке под орех встречаются и в других помещениях, тем самым объединяя их. Полы: классический орех, Royal Oak Floors
Винный погреб, рассчитанный на более чем 600 бутылок, отделен от коридора стеклянными перегородками. Для создания атмосферного освещения в нижнюю часть стеллажа и в полы вмонтировали подсветку. Линдси Дуглас специально так спроектировал помещение, чтобы в случае чего здесь нашлось место и для кресла — ведь иногда для выбора подходящего вина может потребоваться время для раздумий.
Коридор интегрирован в общее пространство: с одной стороны он граничит с винным погребом, с другой — с лестницей, ведущей на второй этаж.
В итоге все — внешние, внутренние, изолированные и приватные части дома стали более открытыми и светлыми, с глянцевыми полами из полированного бетона и стеклянными перегородками. Линдси Дуглас реорганизовал пространство на контрасте старого и нового таким образом, чтобы в нем было удобно перемещаться и комфортно жить. Краска для стен: Whisper White, Dulux ; диван: Jasper, King Furniture ; кресла: Wassily, диз. Марсель Брейер ( Marcel Breuer) ; журнальный столик: диз. Исаму Ногучи ( Isamu Noguchi)
Задача, по словам дизайнера, заключалась не только в том, чтобы соорудить современную пристройку к этому коттеджу, но и придать обоим частям здания свой характер. В то же время динамичное взаимодействие двух объемов — старого и нового — нужно было сделать по-настоящему комфортным для жизни. Ковер: Ikea ; подушки: Freedom
Гостиную от кухни отделяет сквозной стеллаж–перегородка. Его отделка под орех перекликается с полами в прихожей.
Невысокие шкафчики вдоль стены в гостиной помимо хранения выполняют еще одну функцию — на них можно сидеть. Сквозь панорамное окно комната залита естественным светом. По периметру стены встроена скрытая подсветка. «За счет продуманной светодиодной подсветки вечерами здесь можно достичь почти такого же эффекта, что и при естественном, дневном свете», — говорит Линдси Дуглас. Полы: наливное бетонное покрытие, Hanson
Картина: мельбурнский стрит-арт художник Роун ( Rone)
Палитра цветов и текстур в гостиной перекликается с отделкой кухни. Кухонная раковина, сантехника: Elite Appliances ; бытовая техника: Electrolux
Ламинированные фасады кухни отделаны под натуральный дуб. Рабочие поверхности и кухонный фартук выполнены из искусственного камня Caesarstone двух цветов: Raven и Oyster. Кухня: Ravine, polytec; к раска для стен: Whisper White, Dulux
В кладовую можно попасть из кухни: вход сюда находится за скрытыми дверями. Из кладовой есть проход в постирочную. Шкафы: polytec ; столешницы: Organic White Caesarstone ; раковина, сантехника: Franke ; посудомоечная машина: Miele
Хозяева хотели, чтобы дом отвечал не только их нынешним нуждам, но и мог бы легко адаптироваться к новым. Дизайнер спроектировал интерьер таким образом, чтобы у хозяев создавалось ощущение единства и совместного времяпрепровождения вне зависимости от того, кто где находится. Высокие табуреты из черной кожи и орехового дерева: Allegra, диз. Йоханнес Андерсен (Johannes Andersen)
Светильники: About Space
Деревянная терраса создает ощущение большего простора в гостиной и помогает размыть границы между интерьером и экстерьером. «Эффект единства между домом и улицей “срабатывает” благодаря панорамным окнам. Скругленные углы террасы и то, что она выполнена как единый объем — без видимых границ между полом, потолком и стенами — придают веранде динамичность», — считает автор проекта Линдси Дуглас.
Дерево, которым отделана терраса, красиво сочетается с полированными антрацитовыми плитками и зеленью газона.
Рассчитывая размеры террасы, архитектор ориентировался в том числе и на большое дерево, растущее во дворе — чтобы добиться композиционного равновесия между двумя этими объектами.
Динамичная форма крытой террасы очень полюбилась хозяевам: здесь, действительно, хочется проводить больше времени. «Нам удалось создать по-настоящему комфортное и современное семейное жилище, играя на контрастах и деталях. Мы гордимся этим проектом, особенно этой нестандартной находкой с террасой, о которой едва ли можно догадаться, глядя на дом с улицы». Пуф: Altabeanbags ; подушки: Freedom
Терраса плавно переходит в деревянный настил с боковой стороны дома, который ведет к бассейну. Таким образом, узкий проход между домом и забором тоже получил новое оформление и также был интегрирован в общую концепцию, придуманную архитектором.
Хозяева не хотели делать в доме столовую в классическом понимании, они предпочли открытое, незаметно переходящее в другие помещения пространство. Причем им хотелось, чтобы за обеденным столом свободно помещались бы до 12 человек гостей. Из панорамных окон кухни-столовой, открывается вид на бассейн. Если открыть окна, то оба пространства превращаются в одно целое, а подоконник становится барной стойкой. Стулья в столовой: диз. Рэй и Чарльз Имз (Ray and Charles Eames)
Дизайнер нашел интересное решение для пространства под лестницей: одна из ступеней продолжается в виде полки, которую можно использовать, например, как барную стойку. Отделка, как и у ступеней лестницы, выполнена из орехового дерева.
«Хозяева любят принимать гостей, поэтому мы сделали дом одинаково удобным как для самой семьи, так и для встреч с друзьями», — рассказывает Линдси Дуглас.
Стеклянная дверь убирается в специальный карман в стене и гостиная становится единым целым с террасой. До реконструкции дом был обшит сайдингом, теперь же его частично заменила деревянная вагонка, и, кстати, такая отделка оказалась гораздо более эффектной и современной.
ДО: С этой стороны дома теперь располагается бассейн. Некогда малоприглядный проход преобразился благодаря деревянной отделке и панорамному остеклению.
ПОСЛЕ: Из ванной комнаты на первом этаже тоже открывается вид на бассейн.
«В некоторых местах мы убрали перекрытие между первым и вторым этажом, чтобы связать второй этаж с зонами отдыха внизу и усилить ощущение единства, которое мы взяли за основу всего проекта». Изначально в первый этаж дома были втиснуты три спаленки, две ванные, маленькая кухня, гостиная и столовая. После перепланировки в границах старой части располагается только хозяйская спальня с собственной ванной и просторная гардеробная. А в пристроенных частях — гостиная, кабинет, еще одна большая ванная, кладовая и винный погреб. Освещение: About Space
Второй этаж архитектор «нарастил» за счет прямоугольного объема, обшитого титановыми листами. Он разместил его как раз над гостиной, кухней и столовой. В нем находятся еще две спальни, гостевая комната с собственной ванной, еще одна отдельная ванная и игровая, которая тоже со временем станет гостиной, когда дети подрастут.
Внешние жалюзи на втором этаже обеспечивают приватность, чтобы жители соседних домов не заглядывали в окна. В то же время они пропускают достаточно света, да и вид на окрестности не скрывают. Важно, что терраса пристроена к дому с юга — именно с южной стороны в дом попадает больше света и солнца и за счет террасы дом открылся им навстречу. Панорамные окна во всю стену обеспечивают естественную вентиляцию, от перегрева дом защищают жалюзи, навесы и маркизы. Все материалы и оборудование подбирались с учетом долговечности, экологичности и энергосбережения. СТАТЬИ ПО ТЕМЕ… Лофты | Скандинавские | Загородные дома | Квартиры | Маленькое жилье | Houzz в гостях | Houzz в мире | США и Канада | Европа | Австралия

Комментарии 1

Отметил следующее интересное: . 1. Архитектурное решение с террасой. Решение применимо не только в строительстве, но и во многих других ремесленных областях. . 2. В целом интересным кажется общее стилистическое решение интерьера, а также мебели в жилом пространстве и особенно на кухне. . 3. Решение с единым дизайном межкомнатных дверей и фасадов кухонной мебели. . 4. Решение с уплотнением кухонных шкафов под потолок. Применен какой-то белый уплотнитель. Он, конечно, заметен. Однако смотрится вполне хорошо. Не вижу, какой именно применен материал. Однако подобрать что-то похожее можно. Интересное решение, которое стоит взять на вооружение.

Оставьте комментарий

Смотреть похожие темы

Читать похожие статьи