logo

Houzz Австралия: Дом, нарисованный восьмилетними двойняшками

Планы перестройки этого дома в Мельбурне зашли в тупик, пока на помощь не пришли восьмилетние сыновья хозяев

Houzz Россия
Houzz Россия

8 июня 2015

Обновлено 24 июня 2015

Из уст младенцев точнее, из детских альбомов для рисования возникают самые оригинальные идеи. Первый день архитектора Эндрю Мэйнарда (Andrew Maynard) в компании заказчиков был долгим: вместе они пытались найти идеи для ремонта и расширения пространства, которые помогли бы создать семейный дом мечты. После многочасовых дискуссий, отступлений и хождения по кругу, они ничуть не приблизились к концепции, которая могла бы привести проект в действие. Мэйнард вспоминает ощущение безысходности, сопутствующее той первой встрече: «Мы оказались на дне глубокой кроличьей норы».

И тут — со скромным «Вот, держите!» — сыновья-двойняшки показали взрослым рисунки, которыми они были увлечены, пока те были погружены в свои серьезные дела. Никаких гоночных машин, космических кораблей или динозавров — на бумаге была идея, ставшая основой затейливого дома с башней, который в итоге построили.
Houzz Австралия: Дом, нарисованный восьмилетними двойняшками
О проекте
Место: Альфингтон, северо-восточный пригород Мельбурна, Виктория
Кто здесь живет: Пара с двумя сыновьями-двойняшками
Автор проекта: Эндрю Мэйнард (Andrew Maynard)
Размер: участок 500 кв.м, дом 225 кв.м
Фото: Питер Беннеттс (Peter Bennetts)

На каком-то этапе эволюции каждого дома всегда случается так называемый момент «ага!». Для Мэйнарда этот момент появился с неожиданной стороны. Пока происходили длительные
обсуждения с хозяевами, их сыновья-двойняшки, с присущим детям простым взглядом на вещи, были заняты рисованием нового дома: башенная структура с окнами, дверями и комнатами, утопающими в солнечном свете. Как вспоминает архитектор, незатейливое произведение эти рисунки помогли сформировать сразу несколько идей, обсуждаемых в тот день: «Мальчики решительно столкнули лодку с берега, и мы отправились в долгожданное плавание…»
Houzz Австралия: Дом, нарисованный восьмилетними двойняшками
Houzz Австралия: Дом, нарисованный восьмилетними двойняшками
Лейтмотивом стал образ башни, добавляющий этому дому необычный акцент. Проект включал в себя ремонт дома, покрытого обшивочной доской, и постройку серии сооружений с наклонными крышами, складывающимися в один ансамбль. Самая высокая из этих построек, оправдывающая название «Дом с башней», студия-площадка для игр, принадлежащая ее авторам — братьям-двойняшкам.

Внутри высокой башни находится и кабинет мальчиков. Здесь есть письменные столы на уровне пола и любимая всеми детьми и гостями дома сетка, которая нависает над нижним уровнем.
Houzz Австралия: Дом, нарисованный восьмилетними двойняшками
Сетка, до которой можно добраться по ступенькам, ведущим с первого этажа, позволяет умелым «скалолазам» наблюдать за тем, что происходит на улице и заднем дворе, вместе с тем обеспечивая удобное место, где можно читать, рисовать и мечтать. Безопасная сетка протянута от стены к стене и надежно закреплена. Она достаточно прочна, чтобы выдержать и энергичных восьмилеток, и даже их родителей.

Броская башня соединяется с остальной частью дома коротким застекленным переходом. «Это пространство подчеркивает идею вертикальности, тему, которая проходит через весь проект», — рассказывает дизайнер.


Сеть: Oxley Nets
Houzz Австралия: Дом, нарисованный восьмилетними двойняшками
Башня играет существенную роль в очертании дома. Тонкая дранка, которой покрыта большая часть наружных стен построек, — это красный кедр. Дранку не стали красить, чтобы покрытие меняло цвет естественным образом.

Стена и кровельная дранка: Lysaght
Houzz Австралия: Дом, нарисованный восьмилетними двойняшками
Дом расположен между двумя оживленными улицами: зеленой пригородной со стороны фасада и задней, похожей на деревенскую дорогу. Местная атмосфера маленькие, скромные, обшитые доской или выложенные из кирпича домики, так что было понятно, что «ультрасовременная архитектура здесь смотрелась
бы навязчивым вторжением».
Houzz Австралия: Дом, нарисованный восьмилетними двойняшками
Как спроектировать дом, который бы удовлетворял эстетические и функциональные нужды всей семьи, не загромождая местность и уличный пейзаж? Решением Мэйнарда стал комплекс построек небольших объемов, каждая из которых отличается от другой.

Он описывает эстетическую концепцию этого дизайна как «антимонолитную» и объясняет: «Снаружи дом выглядит маленьким, благодаря визуальной фрагментации отдельно стоящих зданий вместо одной громоздкой постройки. Внутри же дом кажется большим он отрицает логику в каком-то смысле, как “Тардис”!» («Тардис» — космический корабль из британского сериала «Доктор Кто» в виде полицеской будки, который внутри гораздо больше, чем снаружи. — прим. ред.)
Houzz Австралия: Дом, нарисованный восьмилетними двойняшками
«Дом с башней развился во что-то большее, чем просто дом он стал маленькой деревней, где каждая постройка выполняет определенную функцию». Этот вид с задней улицы иллюстрирует идею, прошедшую через весь проект, ансамбль структур, различающихся согласно занятиям членов семьи, напоминающий европейскую концепцию расширенной семейной фермы.
Houzz Австралия: Дом, нарисованный восьмилетними двойняшками
Вертикальные акценты отдельных корпусов напоминают высокие башни на рисунках двойняшек —намеренный уход от горизонтальной протяженности форм. «Австралия широкая и плоская. В результате здешние дома также часто оказываются широкими и плоскими. На контрасте с этим наш проект исследует идею создания вертикального дома», говорит Эндрю.

Отдельные постройки различаются и по размеру, и по функциям, но чувство последовательности достигается благодаря использованным материалам и тому, как они гармонично соединены на территории участка.
Houzz Австралия: Дом, нарисованный восьмилетними двойняшками
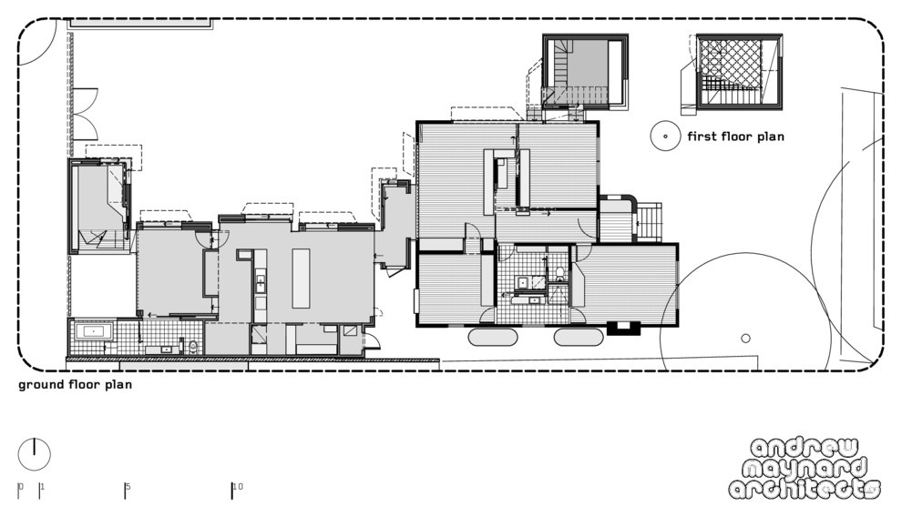
План показывает оригинальный дом со спальнями, ванной и детским пространством в центре участка, слева соединенного маленькой башней с семейной кухней, столовой и жилой зоной, которые, в свою очередь, ведут к комнатам и библиотеке хозяина. До кабинета — игровой башни мальчиков из дома можно добраться по застекленному переходу, идущему из их комнат. Квадрат наверху слева показывает сетчатый уровень этой башни.
Houzz Австралия: Дом, нарисованный восьмилетними двойняшками
Houzz Австралия: Дом, нарисованный восьмилетними двойняшками
Прежний объем дома на участке сохранил свои скромные пропорции и традиционное кирпичное крыльцо, но в то же время подвергся небольшой реконструкции как внутри, так и снаружи. Он включает в себя спальню для каждого из мальчиков, ванную и пространства для игр. Войти в дом можно через это небольшое крыльцо.
Houzz Австралия: Дом, нарисованный восьмилетними двойняшками
Спальни братьев в доме визуально и физически связаны с новыми расширенными постройками. Этот эффект удался благодаря расположению окон и тому, как все структуры соединены вместе. Кухня, столовая и гостиная находятся в отдельном здании, но в то же время объединяются с домом благодаря небольшому сочленению в форме башни.

Полы: эвкалипт, покрытый тунговым маслом
Houzz Австралия: Дом, нарисованный восьмилетними двойняшками
Покрашенная в белый ванная комната двойняшек полна естественного света. Самые современные домашние системы отопления используют воду как проводник тепла. Вода, подогретая (или, в некоторых случаях, охлажденная) в газовом бойлере, проходит по трубам по всему участку в радиаторы и встроенные в пол системы подогрева.

Плитка: Ghiaccio от Ceramica Vogue; умывальник: Cube 500 от Caroma; настенный смеситель: Rogerseller
Houzz Австралия: Дом, нарисованный восьмилетними двойняшками
Кухню расположили в центре дома, свет и солнечные лучи в нее проникают через широкие двери, выходящие на сад и другие постройки «деревни». Полы кухни и жилых пространств сделаны из полированного бетона.
Houzz Австралия: Дом, нарисованный восьмилетними двойняшками
Двойняшки проводят очень много времени «на высоте». Кажется, лазание — одно из их любимых занятий, а отверстия в форме башен в фанерных стенах еще больше способствуют скалолазным подвигам.
Houzz Австралия: Дом, нарисованный восьмилетними двойняшками
Башни стали лейтмотивом всего дома: такие выемки в стене на уровне пола встречаются повсюду! Мотивы башни появились в столярной отделке крыльца оригинальной постройки.
Houzz Австралия: Дом, нарисованный восьмилетними двойняшками
Потолок в кухне и столовой повторяет контуры внешней структуры, перенося мотивы башни и вертикальные формы внутрь и в то же время придавая простор и открытость этому достаточно компактному пространству.
Houzz Австралия: Дом, нарисованный восьмилетними двойняшками
Обширный стол длиной почти 3 метра и шириной 8 метров —место для встреч и общения: приготовление еды часто превращается в совместное занятие, когда друзья или соседи приходят в гости. Столешница из стали, выкрашенная в черный цвет, покрыта воском. Кухня отделана сосновой фанерой.

Краска: Lexicon, Dulux
Houzz Австралия: Дом, нарисованный восьмилетними двойняшками
Спальня хозяев дома находится в отдельной башенной структуре, соединенной с основными комнатами и библиотекой с помощью застекленного перехода. В доме есть Его и Ее места: у хозяйки это светлая, полная книг библиотека. «Его пространство хитрое местечко в пространстве над кухней под крышей, выложенное синтетической травой и меблированное диваном-книжкой и удобным креслом», рассказывает архитектор.
Houzz Австралия: Дом, нарисованный восьмилетними двойняшками
Houzz Австралия: Дом, нарисованный восьмилетними двойняшками
Санузел при спальне родителей отличается той же простотой и современностью дизайна, что и ванная мальчиков: в нем использована похожая плитка и отделка. Широкая стеклянная панель, протянувшаяся от пола до потолка, отделяет «мокрую» часть и усиливает естественное освещение. Окна и двери, выходящие на север, оснащены свето- и теплнепроницаемыми ставнями. Библиотеку можно мельком увидеть справа.

Ванна: Stylus Newbury Island 1800 от Caroma; душевая лейка: Sussex Taps; плитка: Ghiaccio от Ceramica Vogue
Houzz Австралия: Дом, нарисованный восьмилетними двойняшками
Мэйнард создал разное настроение внутри комплекса с помощью различных цветов и материалов. Библиотека, по словам автора, «место для мыслей и раздумья, контрастирующее с красочностью и игривостью кабинета мальчиков». Эта комната выложена темным эвкалиптом с эффектной текстурой и раскрыта в сторону сада.
Houzz Австралия: Дом, нарисованный восьмилетними двойняшками
Мэйнард считает, что нужно бороться с присущим современным людям желанием отгородиться: «Мы все больше и больше при постройке домов беспокоимся о личном пространстве и поворачиваемся спиной к соседям». Хозяева разделают его взгляды: в их представлении идеальный дом место, где «общество, искусство и натура воссоединяются». И искренность их убеждения активно подтверждается пространством перед домом, а также соседними постройками, принадлежащими семейной паре. Это пространство превратилось в общественный огород: соседям предоставляется возможность свободно сажать и пропалывать эту территорию, если возникнет желание.

Участок окутывает и небольшая тайна: дом с башней номер 3 по улице; смежный традиционный дом, покрытый кремовой доской, номер 7, и «никто не знает, что же случилось с номером 5», рассказывает Эндрю.
Houzz Австралия: Дом, нарисованный восьмилетними двойняшками
Сообщество, культура и природа все соединяется в этом игривом, непринужденном, но очень функциональном доме. Он интимный и публичный в одно и то же время, маленький, но при этом просторный, традиционный, но современный. Он подходит как для уединенного раздумья, так и для праздников с кучей друзей, для работы или игры.

Дом с башней номинирован на премию Australian Interior Design Awards 2015, объявленной в мае 2015.

РАССКАЖИТЕ НАМ…
Понравился ли вам этот необычный дом, вдохновленный рисунком мальчиков? Воплощали ли вы дома какие-то из детских фантазий? Поделитесь с нами идеями, мыслями или рисунками в разделе комментраиев!

СТАТЬИ ПО ТЕМЕ…
Лофты | Скандинавские | Загородные дома | Квартиры | Маленькое жилье | Houzz в гостях |
Houzz в мире | США и Канада | Европа | Австралия

Комментарии 3

Удивительный дом. Креативно и интересно. Думаю очень нравится детям!
luscha

10 л.

Замечательный проект, настолько сложный, лёгкий и ритмичный, как музыка, очень вдохновляет!!! Столько глубины в себе открывает.
Потрясающий дом с огромным количеством интересных и креативных идей!

Оставьте комментарий

Смотреть похожие темы

Читать похожие статьи