logo

До и после: Пентхаус [!], где раньше был евроремонт

Обеденный стол заносили в квартиру с помощью крана

Houzz Россия
Houzz Россия

29 июля 2019

Обновлено 2 окт. 2019

До и после: Пентхаус [!], где раньше был евроремонтИрина Владимирская
О проекте
Место: Москва
Год: 2019
Кто здесь живет: молодая семья с двумя детьми
Авторы проекта: архитектурная студия Artechnology, архитекторы — Георгий Ахвледиани и Тимур Шарипов; дизайнер Ольга Истомина; светодизайнер Сергей Назаров
Фото: Сергей Красюк

Эту квартиру молодая семья получила в подарок на свадьбу. Отличное расположение и большой метраж — казалось бы: живи и радуйся. Но интерьер, хоть и был дорого отремонтирован, выглядел морально устаревшим.
Планировка до ремонта

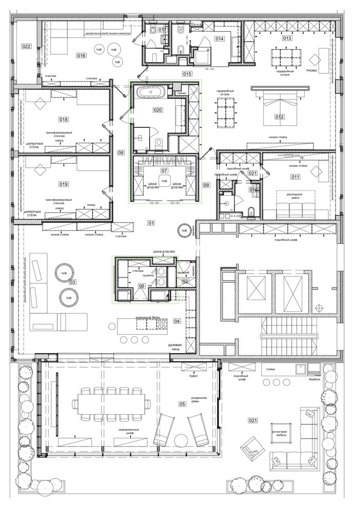
ПЛАНИРОВКА

Квартира площадью 300 кв.м с террасой 100 кв.м, но совершенно бестолковой планировкой: «Здесь были санузел 25 кв.м с расставленной по стенам сантехникой и спальня 54 кв.м без гардеробной, — рассказывает Тимур Шарипов. — Пространство использовалось настолько неэффективно, что решили “снести” все до основания».
____________________________

В ВАШЕМ ГОРОДЕ…
Через Houzz можно нанять дизайнера или архитектора в любом городе и стране. Начать поиск специалиста
Планировка после ремонта

Архитектор создал три основные зоны: дневную, где расположились гостиная, столовая и кухня, ночную со спальнями хозяев и гардеробными, а также детскую — с игровой и двумя спальнями. Получились просторные комнаты и соразмерная им мебель.
Новую архитектуру квартиры создали за счет двух объемов, на которые «нанизаны» остальные комнаты. Первый, деревянный объем, скрывает шкаф для обуви при входе, а также холодильники и проход в хозяйственную комнату из кухни. Второй объем организует круговую циркуляцию в ночных зонах родителей и детей и вмещает большую гардеробную в прихожей, гардеробную в спальне хозяев и детский санузел. Так в квартире не осталось коридоров, но сохранилось зонирование.
ГОСТИНАЯ-КУХНЯ-СТОЛОВАЯ
До: Пространство гостиной с кухней выглядит затесненным, угловатым и неинтересным. Стометровая терраса не использовалась.
До и после: Пентхаус [!], где раньше был евроремонтИрина Владимирская
Кушетка Minotti, колл. Aston, диз. Родольфо Дордони; торшер Gubi

Присоединенная терраса сделала зону сомасштабной остальной квартире. Улучшилась инсоляция, а количество “воздуха” увеличилось. В готовый павильон поставили обеденный стол и книжный шкаф с кушеткой — здесь владелец любит читать в непогоду. Новая планировка позволила увеличить и полезную площадь кухни.
До и после: Пентхаус [!], где раньше был евроремонтИрина Владимирская
Кресло Baxter; светильник Flos; диван Ditre; столик-пуф Tonin Casa; ковер Jerome Botanic
До и после: Пентхаус [!], где раньше был евроремонтИрина Владимирская
«Самое большое приключение — это, конечно, строительство павильона, — вспоминает Тимур. — Было сложно не только согласовать, но и реализовать его в уже заселенном доме. Сначала мы все рассчитали, сделали конструктивный анализ несущей способности конструктивных элементов здания, чтобы убедиться, что оно выдержит дополнительную нагрузку. После потребовалось поднять все конструктивные элементы (балки, колонны) с помощью крана и поставить панорамные окна».
До и после: Пентхаус [!], где раньше был евроремонтИрина Владимирская
Сделанный на заказ обеденный стол также поднимали краном через террасу: он оказался слишком велик для лифта и дверных порталов.
До и после: Пентхаус [!], где раньше был евроремонтИрина Владимирская
Из-за большой площади остекления для обогрева помещения необходимо много энергии, взять которую было негде: дом давно заселен. Поэтому приточный воздух в столовую подается через конвекторы. Это позволяет снять в два-три раза больше тепла при том же энергопотреблении.

В остальной квартире использовали обычные радиаторы, зашитые декоративными коробами из паркета с конвекторной решеткой.
До и после: Пентхаус [!], где раньше был евроремонтИрина Владимирская
Когда выбирали материалы, рассматривали только натуральные фактуры в их естественных оттенках. Камень, штукатурка, кожа — они вовсе не нейтральны, и в правильной компании становятся героями стильного интерьера.

В напольное покрытие встроили подсветку, она помогает создать уютную атмосферу с наступлением темноты.

Модульная мебель на террасе Atmosphera
До и после: Пентхаус [!], где раньше был евроремонтИрина Владимирская
КУХНЯ
Так вышло, что проект два года стоял на паузе. В это время заказчики много путешествовали и стали родителями. Вернувшись к ремонту, они внесли пару корректировок в наполнение квартиры.

«Мы добавили две детские комнаты и сменили наполнение кухни, — рассказывает архитектор. — Владельцы какое-то время жили в США, где комплектация отличается от европейской, и она показалась им удобнее. Появились две раковины с измельчителями и большой холодильник, а также отдельный винный шкаф».
До и после: Пентхаус [!], где раньше был евроремонтИрина Владимирская
Проблема и решение: коммуникации, спрятанные за потолком, не позволили сделать встроенное освещение — пришлось бы сильно опускать потолок. Вместо этого точечно установили накладные светильники.

Над кухонным островом появились два «куба» из стали: в одном скрывается вытяжка, в другом расположился светильник. Решетки воздуховодов спрятаны в ниши и кессоны. А вход в постирочную и дверца шкафов замаскированы в панелях из вишни.
ПРИХОЖАЯ
До:
Несмотря на уровень жилья, прихожая была стандартной: зеркальный шкаф-купе при входе и просторный неиспользуемый холл.
До и после: Пентхаус [!], где раньше был евроремонтИрина Владимирская
После: В прихожей построили семейную гардеробную. Она — часть большого объема с детским санузлом и гардеробной при спальне заказчиков.
До и после: Пентхаус [!], где раньше был евроремонтИрина Владимирская
ДЕТСКИЕ
В семье подрастают две дочки с маленькой разницей в возрасте, поэтому их спальни идентичны, за исключением мелкого декора.

Хозяйка добавила в интерьер кровать и шкафчики розового цвета, чтобы подчеркнуть возраст дочерей. Но основой стал белый цвет. Через несколько лет маленькую мебель заменят на кровати и рабочие места для школьниц.
До и после: Пентхаус [!], где раньше был евроремонтИрина Владимирская
Отдельно выделили пространство под игровую. Сейчас в этой комнате живет няня, но через пару лет девочки смогут играть здесь самостоятельно.
До и после: Пентхаус [!], где раньше был евроремонтИрина Владимирская
КАБИНЕТ
Рядом с главной спальней есть еще одна комната. Сейчас это кабинет, который без труда трансформируется в гостевую благодаря раскладному дивану и смежному санузлу.
СПАЛЬНЯ
До: Спальня с расставленной по стенам мебелью была без гардеробной или рабочего места. С кровати можно наблюдать за соседями в доме напротив, а выбранная для стен цветовая палитра и скудное количество светильников не делали интерьер светлее.
До и после: Пентхаус [!], где раньше был евроремонтИрина Владимирская
После: В комнате сохранили проходы — родители могут попасть в свою комнату из детского блока, из холла или из кухни-гостиной.

Кровать отодвинули от стены, сделав изголовье визуальным центром. Это разделило комнату на два воздушных объема — гардеробную и спальню.
До и после: Пентхаус [!], где раньше был евроремонтИрина Владимирская
Массивное изголовье, разделяющее пространства — это кирпичная стена, облицованная деревянными панелями. Кирпич использовали для безопасности, так как изголовье имеет только одну точку опоры — снизу.
До и после: Пентхаус [!], где раньше был евроремонтИрина Владимирская
Столик у окна многофункциональный: центральная часть поднимается, и рабочий стол превращается в туалетный столик.
До и после: Пентхаус [!], где раньше был евроремонтЕкатерина Перминова

До

ХОЗЯЙСКИЙ САНУЗЕЛ
До: Большой, но нефункциональный санузел. Количество мест для хранения стремится к нулю.
До и после: Пентхаус [!], где раньше был евроремонтИрина Владимирская
После: Большое количество мест для хранения визуально облегчили с помощью зеркальных фасадов. В спальне хозяев на полу лежит тик, оттенок которого использовали и в ванной комнате.
До и после: Пентхаус [!], где раньше был евроремонтИрина Владимирская
ДЕТСКИЙ САНУЗЕЛ
Здесь уложена такая же синяя плитка, что и на фартуке кухни, а стены облицованы белым мрамором, как в ванной родителей. Помимо душевой кабины, предусмотрели ванну, в которой удобнее купать детей.
До и после: Пентхаус [!], где раньше был евроремонтИрина Владимирская
САНУЗЛЫ
Кроме детского и хозяйского, есть два дополнительных санузла: один из них при игровой зоне, где сейчас живет няня.
Еще один санузел находится рядом с кабинетом. Для его облицовки использовали травертин.
_________________________________

ОБ АВТОРАХ ПРОЕКТА…
Перейдите на страницу студии Artechnology, чтобы изучить другие работы из портфолио архитекторов или заказать собственный проект

У ВАС ЕСТЬ ДЛЯ НАС ПРОЕКТ…
Загрузите съёмку в свой профиль на Houzz, отправьте ссылку с кратким описанием на editorial@flatica.ru

Для справки: Какие объекты мы публикуем

Комментарии 72

Очень интересно решение павильона. Остекление холодное? Помещение используется круглый год? Комфортная температура поддерживается конвекторами без проблем?
Может быть это глупый вопрос, но я не все знаю). Что делать с мебелью на террасе в непогоду?
L M

5 л.

Скучный срисованный интерьер.

Оставьте комментарий

Читать похожие статьи