До и после: Квартира, которую не ремонтировали 70 лет

На восстановление одной только лепнины потратили 10 000 евро

Houzz Россия
Houzz Россия

28 июня 2019

Обновлено 6 сент. 2019

Эта квартира находится у площади Республики, на втором этаже особняка османовской эпохи. Семье с тремя детьми она сразу понравилась, но интерьеры и коммуникации были в запущенном состоянии прежние хозяева не ремонтировали их около 70 лет. На Houzz новые владельцы увидели статью о переделке небольшой студии: им так понравилась работа дизайнера Мириам Гассманн, что они пригласили ее поработать над своей квартирой.

О проекте
Место: площадь Республики, Париж, Франция
Год: 2018
Размер: 173 кв.м
Кто здесь живет: семья с тремя детьми
Автор проекта: дизайнер Mириам Гассманн
Фото: Стефани Деруссан
Квартира частично сохранила очарование старины — высокие лепные потолки, паркет елочкой, мраморные камины. Но десятилетия без ремонта оставили свой след на интерьерах: выцветшие обои с пятнами от стоявшей мебели, цветная сантехника, изношенные коммуникации. . . Владельцы попросили дизайнера сделать не косметический ремонт, а серьезное обновление. «Семья хотела реального обновления комнат, при этом с уважением к старым деталям. Шесть месяцев потребовалось, чтобы переосмыслить объемы, сохранив историческую основу», — рассказывает Мириам Гассманн.
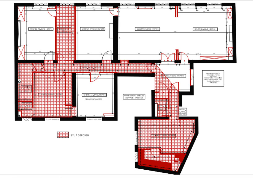
Планировка до ремонта

В квартире были просторная кухня и гостиная, две ванные комнаты и четыре спальни (площадью от 14 до 17 кв.м). Дизайнер убрала стены на участках, отмеченных красным, и заново разделила пространство. Это позволило увеличить санузлы и лучше организовать электропроводку и сантехнику.
____________________________

В ВАШЕМ ГОРОДЕ…
Найдите дизайнера на Houzz в вашем городе — закажите собственный проект
Планировка после ремонта

«Когда мы встретились, заказчики попросили сделать синий бетонный пол», — вспоминает дизайнер. Это покрытие уложили в части прихожей, в кухне и ванных комнатах (на плане выделено темным цветом), оно напоминает океанское течение, проходящее через всю квартиру.
До: Несмотря на выцветшие стены, прежняя гостиная сохранила дубовый пол в елочку и двойные деревянные двери с красивым декором.
Диван Roche Bobois; молдинги Auberlet & Laurent . . После: Вместо старых обоев стены покрыли белой краской. Владельцы попросили дизайнера воссоздать оригинальные молдинги квартиры. «Из соображений экономии часто используют не гипсовые, а полиуретановые молдинги, но здесь мы делали отливки у мастера, который знаком со старыми технологиями. Результат того стоил, хотя и обошелся в 10 000 евро на всю квартиру», — рассказывает дизайнер.

Из гостиной открывается вид на довольно оживленную и шумную площадь Республики. Поэтому Мириам предложила заменить старые окна на новые, деревянные, с лучшей звукоизоляцией.
В гостиной сохранили только половину старого дверного проема, а второй проход сместили, создав симметричную композицию у стены для ТВ-экрана.
До: Эту часть гостиной с камином из красного мрамора прежние владельцы использовали как библиотеку.
После: Вместо библиотеки семья решила сделать музыкальную комнату. «Двое из трех детей и мама играют на пианино по несколько часов в день. Белая стойка скрывает со стороны гостиной фортепиано, а еще там стоит рояль», — рассказывает дизайнер. Облицовку камина заменили, уложив панели из белого мрамора.
На этом кадре видно, где прячется фортепьяно.
Рядом с фортепьяно стоит скамья с местом для хранения, которую сделали на заказ. «Мы хотели создать уютный уголок, куда можно было бы прийти послушать музыку и насладиться теплом камина», — говорит Мириам.
От прихожей небольшой коридор ведет к отдельной кухне. «Это одна из любимых комнат владельцев. Они много готовят и едят здесь, и им даже не приходило в голову соединять это пространство с гостиной», — отмечает дизайнер.
До: В подсобном помещении в дальней части кухни находились прачечная и водонагреватель. Дизайнер раскрыла это пространство, присоединив к основной площади кухни.
После: Владельцы много готовят, поэтому им требовалось множество мест для хранения и длинная столешница. Дизайнер предложила вариант с П-образной расстановкой мебели. «Идея была в том, чтобы сделать большую столешницу вдоль двух стен комнаты и обойтись без сплошной линии верхних шкафов. Хотелось, чтобы кухня выглядела светлой и легкой, поэтому верхние шкафчики мы использовали по минимуму», — рассказывает Мириам.
Заказчики хотели поставить на кухне какой-то естественный объект, например, аквариум. Но в итоге выбрали фитостену. Зеленая стена нуждалась в подводке воды и электричества (для системы капельного орошения и встроенного освещения). Дизайнер привлекла компанию Neogarden, которая занимается созданием фитостен. И специалисты определили лучшее место для размещения конструкции.

Панели размером 60х90 см с растениями подсоединили к системе полива, уже смонтированной мастерами из Neogarden.
До: Раньше в квартире был темный длинный коридор, по сторонам которого шли двери в спальни и ванные.
После: Дизайнер чуть сдвинула стены коридора в сторону спален, создав на выигранном месте полки для книг и фотографий.
До: Эта комната была первой справа, если идти по коридору. А еще — смежной с гостиной. Во время ремонта дверь в гостиную убрали, сделав комнату изолированной.
Подвесной светильник Eos XL Vita Copenhagen

После: Комната площадью 15 кв.м стала детской. Для нее специально выбрали лаконичную отделку. «Родители чувствовали, что дети в том возрасте, когда вкусы быстро и сильно меняются. Поэтому они выбрали белую основу, а декор появится со временем, когда каждый из детей найдет цвета и предметы на свой вкус», — говорит Мириам.

Стены выкрасили в белый цвет, дубовый пол отшлифовали и заново покрыли маслом, установили новый чугунный радиатор и заменили окно.
До: В основной спальне была ниша, которую образовывали гардеробные шкафы по сторонам кровати.
После: Этот принцип сохранили, но двери шкафов заменили на современные. Вместо обоев стену покрыли градиентом синего. «Градиент сделан художником-декоратором Анной Жуан. Состав тонирован в массе естественными пигментами и благодаря особой технологии затвердевает при контакте с воздухом, как поверхность цементных плиток. Это делает роспись прочной и долговечной», — объясняет дизайнер.
До: Главная ванная была соединена со спальней. Стены здесь украшала цветная мозаика 1950 годов.
После: Теперь этот санузел стал родительским. Отделка здесь светлая и лаконичная, о чем просили заказчики. Две раздвижные двери позволяют при необходимости разделить спальню и ванную комнату. В центре санузла пол сделали из вощеного синего бетона, выделив зону ванны.
Полотенцесушитель Vola; смесители Dornbracht
До: Эта комната расположена напротив ванной. Здесь была довольно нейтральная отделка, за исключением панелей встроенного шкафа.
После: Когда дизайнер расширяла коридор, она оставила в части стен окошки, чтобы в темное прежде пространство попадал и естественный свет из спален.
Эта детская тоже белая, со светлой мебелью, готовая меняться вместе со своим владельцем.
До: В конце коридора находится второй санузел, по соседству с ним была кладовая.
Плитка Kite, Equipe Ceramicas

После: Кладовку и санузел соединили, чтобы создать просторную ванную комнату для детей. Пол покрыли синим вощеным бетоном, а для стен дизайнер выбрала белую шестигранную плитку.
Для своего санузла дети выбрали две раковины Cielo красивого зеленого оттенка.

БОЛЬШЕ ФОТО…
Квартиры с современным дизайном
Белый цвет в интерьере

Комментарии 58

Любуюсь фотографиями интерьера до ремонта. После? Хорошо, чистенько, но такой могла бы быть любая квартира для сдачи в аренду.
Konsensus

5 л.

Как жаль, что ничего не оставили от старых интерьеров, стало казенно и бездушно.
Как жаль, что очарованием и вкусом старого интерьера не прониклись ни хозяева, ни дизайнер. У нового интерьера нет своего лица, он как фрагмент интерьера салона мебели. Ушли индивидуальность и тепло, пришли стандарт и универсальность.

Оставьте комментарий

Читать похожие статьи