logo

Архитектура: Средневековый фахверк и современность в Кведлинбурге

Один из самых старых фахверковых домов в Саксонии-Анхальт благодаря реставрации обрел вторую жизнь

Houzz Россия
Houzz Россия

7 мар. 2016

Обновлено 13 мая 2016

Кведлинбург — город в земле Саксония-Анхальт, получивший статус всемирного культурного наследия ЮНЕСКО благодаря многочисленным фахверковым домам. Тому, кто хочет узнать все о средневековом королевском пфальце (резиденции немецкого короля), стоит посетить это место — самый крупный в Германии памятник под открытом небом с восьмисотлетней историей.

Архитектурное бюро Qbatur, основанное 15 лет назад, на сегодняшний день обновило более 70 домов в Кведлинбурге. «Мы выкупили дом на Брайтен-штрассе, находящийся на грани разрушения, и немедленно приняли необходимые меры для его сохранения. Потом начали искать заказчика», рассказывает один из партнеров бюро Рудольф Кёлер (Rudolf Köhler). Архитекторы быстро справились с задачей. Строительный предприниматель и его жена, посетив этот дом, буквально влюбились в него с первого взгляда.
О проекте Место: Кведлинбург, Саксония-Анхальт Размер: 185 кв.м, современная и историческая части здания одного размера Кто здесь живет: Предприниматель, владелец металлообрабатывающего завода в Ашерслебене, уроженец Падерборна, и его жена Автор проекта: бюро Qbatur Planungsgenossenschaft Фотограф: Штеффен Шпитцнер (Steffen Spitzner)
Для Кведлинбурга сохранение культурного наследия не редкость. « С помощью исследований в области строительства за последние годы наш город стал «старше» на пару сотен лет » , — объясняет Рудольф. Дендрохронологическое исследование балок дома на Брайтен-штрассе показало, что сами фермы, на которых сто лет назад был восстановлен жилой дом, датируются аж 1330 годом! Дом был перестроен и увеличен в размерах с помощью современной пристройки с многослойной фасадной стеной из экологически чистого обожженного кирпича.
« Вскоре оказалось, что возраст дома все же делает свое дело: тесаные, не пиленные балки представляли определенную опасность » , — говорит Рудольф. Изначально бюро Qbatur во главе с Ульрихом Квеком ( Ulrich Queck) разработало два проекта — традиционный и современный. Архитекторы были приятно удивлены, когда заказчику понравился второй вариант.
Фасад фахверкового дома — часть барочной постройки, которую архитекторы привели в порядок: изолировали и одновременно укрепили стены с внутренней стороны традиционным утеплителем из соломы и глины. « Фахверковую панель, в которую заделан гипсобетонный пол, красили в те времена под мрамор. Мы восстановили это цветовое оформление » , — рассказывает Рудольф.
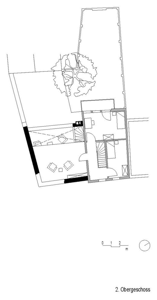
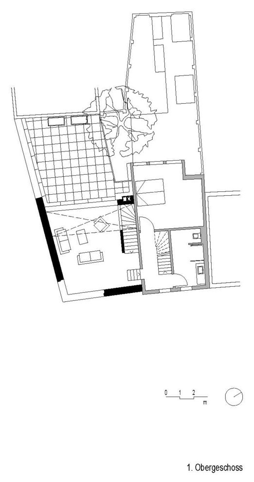
Вход в дом находится в исторической части здания. Из прихожей можно подняться на этажи с жилыми комнатами и кухней. Слева расположены гардеробная, ванная комната и подсобное помещение.
Из гостиной бетонная лестница ведет на второй и третий этажи. Окна кухни выходят на улицу, а столовой — во двор.
В новой части дома на втором этаже находятся две гостиные, оттуда можно подняться на галерею третьего этажа. Несмотря на очевидное различие старых и новых элементов материалы в обеих частях здания используются одни и те же. В качестве настила во всем доме использовано дубовое покрытие. В саду патио сделано из дуба, оконные рамы тоже дубовые. В традиционном фахверковом доме можно позволить себе установить соответствующую историческому стилю тройную оконную раму.
Сочетание нового и старого в этом доме хорошо видно по внутреннему двору. У фасада, обшитого деревянными панелями, остались две фахверковые панели времен постройки дома. На первом этаже архитекторы решили остекловать фасад, так как прочность конструкции здесь оставляла желать лучшего. « Там, где конструкция совсем ослабла, мы сделали фасад из современных материалов, так как они укрепляют старые элементы строения » , — объясняет Рудольф. Во дворе построили навес для автомобиля. Из гостиной, расположенной над навесом, можно выйти на террасу.
Нынешний дом площадью 185 кв.м разделен на историческую часть (справа) и на современную (слева).
Эти две половины пересекаются друг с другом, соединяя в жилом пространстве прошлое и настоящее дома. Не все старые здания должны становиться музеями — жить здесь как минимум просто красиво.
Жители Кведлинбурга берегут наследие и не гонятся за последними инновациями. Дома, ставшие культурными памятниками города, сохраняются усилиями семей, живущих в них. В 2013 году реставрация дома завершилась, и результат пришелся по душе как соседям, так и всем жителям Кведлинбурга. Возможно, причина отчасти в том, что пристройка получилась в стиле архитектора Дэвида Чипперфильда ( David Chipperfield) , который успешно « встраивает » современные здания в давно сформировавшийся архитектурный ландшафт, — вспомните его Галерею современного искусства на канале Купферграбен в Берлине. Экологически чистый обожженный кирпич также добросовестно выполняет свою миссию.
Домовладельцы с помощью профессионалов спасли и оживили это старинное архитектурное сокровище и сделали его полноправным и важным элементом Кведлинбурга.

Комментарии 7

Slaw Kaa

6 л.

Der Neuanbau hat nen Charme eines Toilettenhäuschens... Новая пристройка имеет очарование туалетной будки, на даче...
Неоднократно была в Квидленбурге. Жаль, что фасады со стороны старинных улиц скоро будут изуродованы современными квадратиками. Лиха беда -начало. Современную часть здания прекрасно было бы по-возможности вписать со стороны двора. Как собственно многие там и делают. Но со стороны старинного ряда фасадов- вкрапление современной архитектуры ломает ощущение 1000 летнего города напрочь.
Лавли домик! А немцев можно не импортировать - благодаря их склонности к блицкригам у нас не так и много осталось для реставрации. Самостоятельно справимся. Кстати, во времена Петра1 все иностранцы звались "немцы", по их полной неспособности выучить язык страны проживания. Самих немцев-то там как бы и не преобладало. Избавляйтесь уж от иллюзионов.

Оставьте комментарий

Смотреть похожие темы

Читать похожие статьи