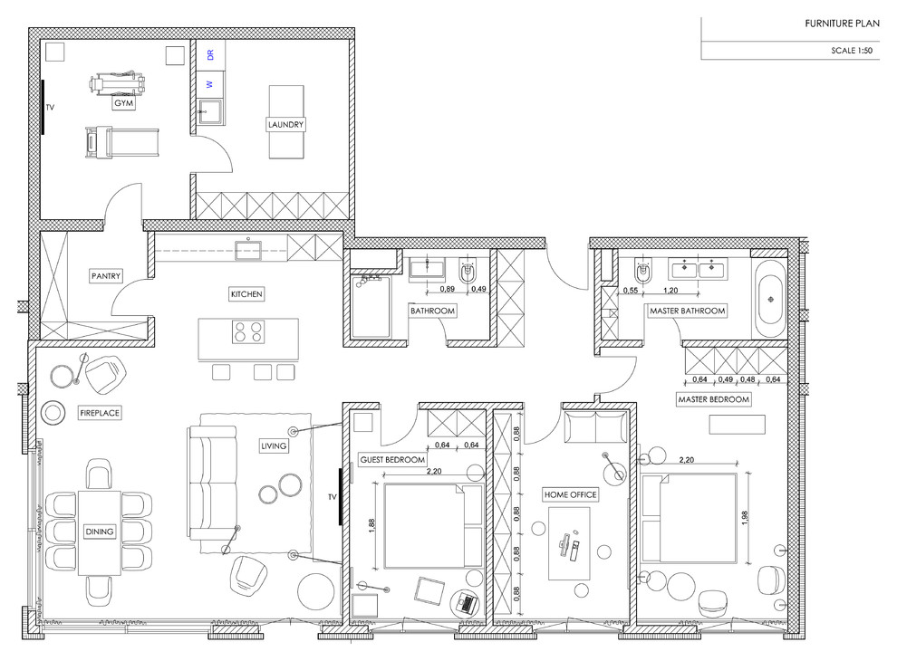
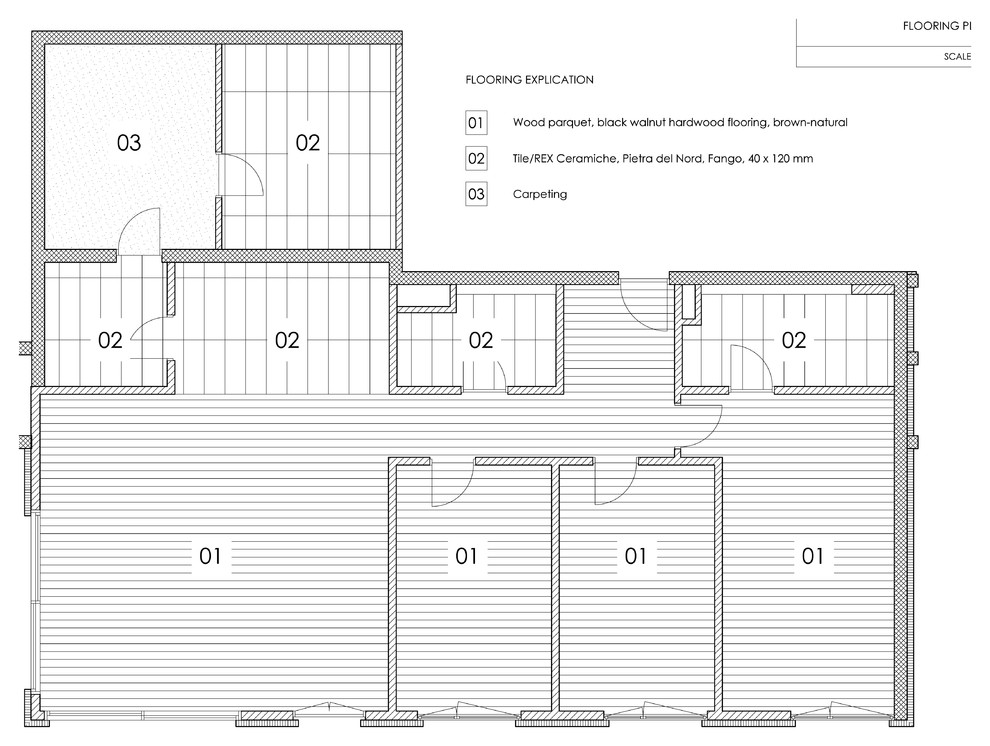
Zurich New Apartment
Newly built apartment near Zurich, ground level with small garden/terrace, about 135m2 living space. . Complete interior design in a modern, stylish and yet practical way. .
Год реализации: 2016
Стоимость проектирования: 1 050 000 ₽
12 фотографий












