Зодчество 2015_Архитектура
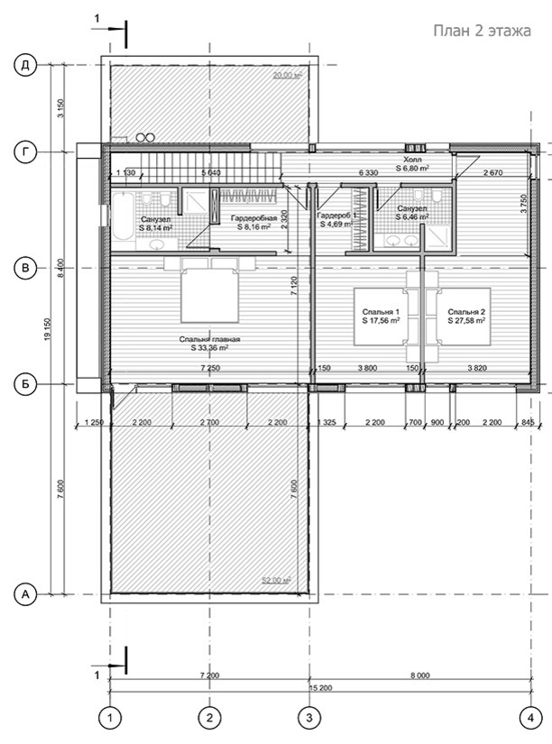
Генеральный план участка . Индивидуальный жилой дом располагается на участке 882 кв.м. в Химкинском районе Московской области. Участок . граничит с территорией жилой застройки и дорогой с северной стороны. Смежный участок планируется под строительство . жилого дома в идентичном архитектурном стиле с возможностью объединения. Фасады с наибольшим процентом . остекления имеют южную ориентацию. . . Архитектурно-планировочные решения . Этажность - 2 . Высота 1 этажа - 3,5-3,8 м; высота 2 этажа - 2,8 м . Габариты в осях - 19,15 х 15,20 м; максимальная высота от уровня земли - 8,6 м . За 0.000 принята отметка уровня чистого пола 1го этажа. . . Пространственная композиция дома представляет собой сочетание двух перпендикулярно расположенных вытянутых . объёмов, содержащих в себе различные функции, что также подчёркивается различной отделкой фасадов. . На 1м этаже располагаются общественные зоны, такие как кухня, столовая и гостиная, объединённые в одно помещение с . открытой линейной структурой планировки, а также технические и подсобные помещения, скрытые от взгляда . перегородкой. . На 2м этаже расположены хозяйская и 2 гостевых спальни с гардеробными комнатами. Главная спальня имеет . собственный санузел и выход на террасу. . . Конструктивные решения . Фундамент - винтовые сваи с металлической обвязкой двутаврового сечения. . Силовой каркас дома - колонны из ЛВЛ-бруса; HTS-балки; консоль 2го этажа поддерживается 2мя стальными колоннами . круглого сечения, объединённых ригелем. . Внешние стены - с заполнением минераловатным утеплителем. . Окна - двойной стеклопакет с алюминиевым профилем и 6мм стеклом. . Кровля - плоская эксплуатируемая по HTS-балкам. . . Технико-экономические показатели . Общая площадь дома - 249 кв.м . S 1 этажа - 136 кв.м; террасы - 82 кв.м . S 2 этажа - 113 кв.м; террасы - 72 кв.м . S застройки - 236 кв. . . Авторский коллектив: Иван Бакушин, Екатерина Сафонова, Станислав Кондратьев
6 фотографий







