Зодчество 2015_Архитектура
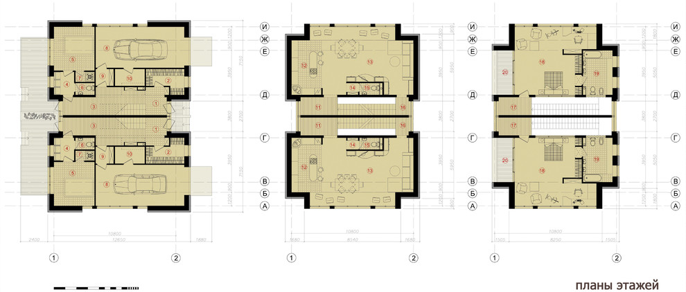
Данный проект был выполнен как альтернативный проект к проекту индивидуального одно-семейного жилого дома, спроектированного в традиционном стиле. . Здание расположено на достаточно узком участке между автомобильной дорогой и берегом реки. Подъезд к дому осуществляется со стороны дороги, с этой же стороны находится открытая автостоянка на две автомашины, перекрытая от атмосферных осадков нависающей консолью второго этажа здания. За автостоянкой расположен вход в здание. . На первом этаже находятся прихожая с гардеробом, холл, гостевой санузел, техническое помещение, кухня-столовая и гостиная. К гостиной со стороны реки примыкает достаточно большая терраса с открытым бассейном. Из холл первого этажа на второй этаж ведёт лестница. На втором этаже находятся холл, к которому примыкают с одной стороны две детские спальни с гардеробом и ванной, с другой спальня для взрослых со своим гардеробом и ванной и кабинет. Все спальни имеют выходы на балконы. . Над лестницей в кровле запроектирован фонарь. Все помещения освещены естественным светом, спальни окнами, запроектированными в торцах здания, кабинет, ванные и гардеробные окнами-иллюминаторами, находящимися в кровле. На глухой части кровли возможна установка солнечных батарей, что даёт возможность установки термоблока, работающего как от сети электроснабжения так и от солнечных батарей. . Конструктивная схема здания – каркас из деревоклеенных элементов с заполнением минерально-ватными плитами.
9 фотографий









