Зодчество 2015_Архитектура
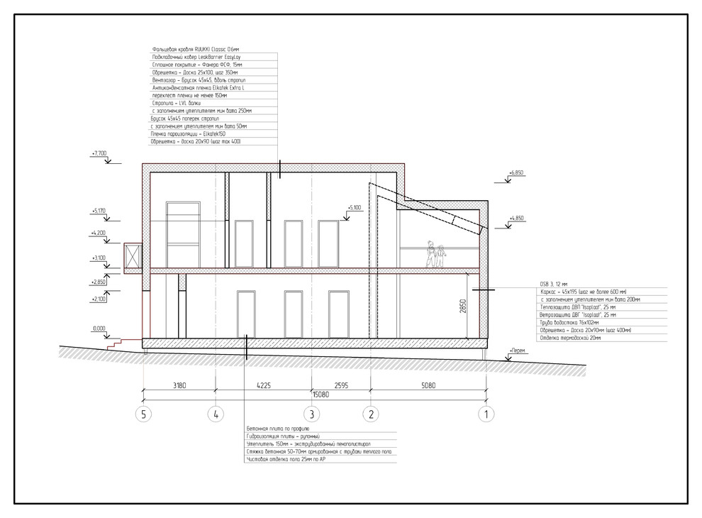
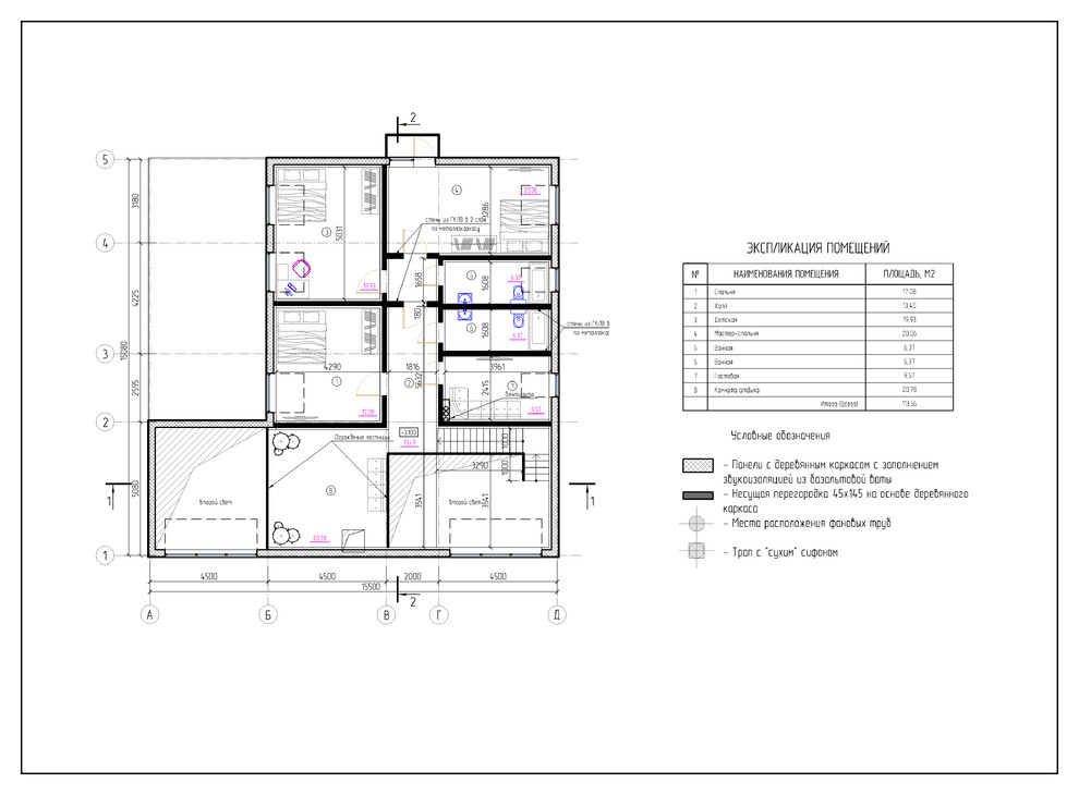
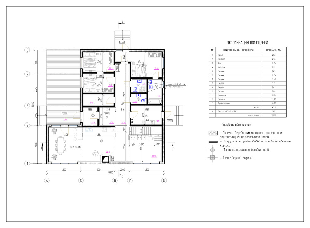
Заказчиком этого дома выступила молодая семья с хорошим заработком и современным взглядом на мир. Поездки в Альпы и разговоры о Куршавеле. Их понимание прекрасного было созвучно с моим. Так с легкого общения и работы на уровне «настроенческой доски» мы вышли на проектирование. . . Изначально передо мной поставили задачу спроектировать простой современный дом. Важным условием технического регламента поселка было использование свайного фундамента. . Максимально стремясь уйти от коридорного типа домов, но думая о "капсульности" мы сформировали техническое задание. Началось проектирование дома для семьи ее многочисленных гостей.. . . Дом располагался в лесу, поэтому с расположением на участке не возникало разногласий, ориентировка спальных на южную сторону и кухни-столовой на залив. Пожелание сделать маленький балкон для любования природой было учтено. Под ним расположился отдельный выход их комнаты родителей. . . Исходя из задания вырисовывались компактные комнаты на первом и втором этаже с большой мастер-спальней и личным санузлом, а также - детской. Всего получилось 7 спален и 5 санузлов. Главным ядром дома должна была являться гостиная с кухней столовой. Исследования показывают, что именно там, мы проводим большую часть нашей жизни. Поэтому я предложил второй свет над гостиной, развернув дом и поиграв с кровлей дома. Особенностью же интерьера можно считать минимализм. Белые стены и потолок смотрелись идеально на фоне пола, выполненного из доски. . . Свободный коридор приводил нас в приватную зону. Практически в каждой комнате было предусмотрено витражное остекление в пол с возможным размещением французского балкона. Все это задавало новый стиль. Новое восприятие. Соединение нарочито грубого, жесткого с легким и воздушным. Подчеркнуто угловатые формы внутри дома начали работать. Тогда же пришло решение сделать легкую маркизу, которую мы бы натягивали в полуденный зной летом, прячась от назойливого солнца. Маркиза должна быть неким парусом или балдахином у дома. . . Конструктивные решения в доме были просты и надежны. Фундамент на винтовых сваях и силовой каркас стен давал нам возможность в кратчайшие сроки быстро реализовать проект. Отсутствие свесов кровли и большие витражи задали, обозначили проблему реализации в нашем климате. Тут началась работа, были разработаны уникальные узлы. Была предложена система внутреннего водостока с прокладкой внутри греющего кабеля, которая не давала возможности льду и снегу разорвать связи внутри дома и не портили наш фасад. Отделку фасадов изначально предполагалась вести из необрезной доски, которая бы гармонировала с корой деревьев. Но в последствии ее заменили на термодоску, которая хорошо смотрелась с медной фальцевой кровлей. . . Именно так сложился образ дома, дом который я бы назвал возможно авангардным, а возможно нет. Простые формы да. . . Здесь мне нравится высказывание Щусева А.В. "Простота форм обязывает придавать прекрасные пропорции и соотношениям, которые сообщали бы им необходимую гармонию"
12 фотографий












