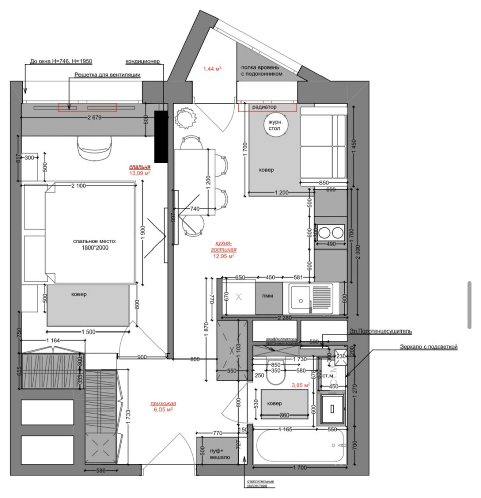
ЖК «Тополя», квартира 37 кв м. Квартира под сдачу.
Пожелание заказчика-никакого белого цвета. Сделали два варианта на выбор, один с черным акцентом, другой все в теплых тонах. Выбрали все в теплых, сейчас идет реализация
Стоимость проектирования: 34 999 ₽
г. Москва, улица Верхние Поля, Юго-Восточный административный округ
50 фотографий



















































