ЖК SREDA OF LIFE
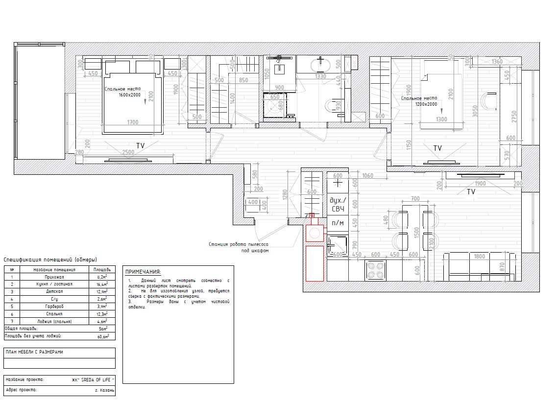
Мы редко берем в работу маленькие квартиры с небольшим бюджетом, но с этой квартирой случилась любовь. В процессе работы мы столкнулись с рядом вызовов, главным из которых была необходимость оптимизации каждого сантиметра.В прихожей зоне мы использовали зеркало, чтобы визуально расширить пространство, и компактную систему хранения для обуви и верхней одежды. Кухня-гостиная стала сердцем квартиры, где семья может собираться вместе. Мы выбрали светлые оттенки для мебели и отделки, чтобы создать ощущение легкости и воздушности.
Год реализации: 2024
Стиль: Современный
г Казань
35 фотографий



































