ЖК Сердце столицы
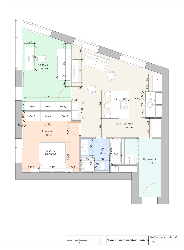
Двухкомнатная квартира 75 м.кв для молодой девушки с ребенком. Высокие потолки и панорамные окна это огромный плюс для любого пространства. Основной цвет стен был выбран светлым, но контрастные вставки и акценты делают интерьер интереснее, придавая индивидуальность. .
Год реализации: 2020
г. Москва, 34 Шелепихинская набережная, Северо-Западный административный округ
16 фотографий
















