ЖК Ренессанс, г. Нижний Новгород
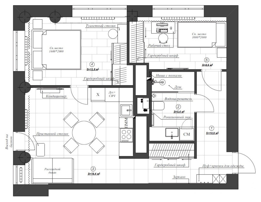
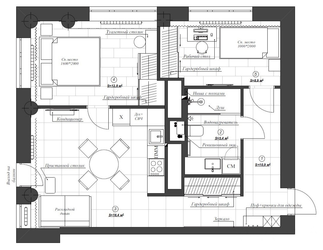
Проект квартиры 53 кв.м. Изначально квартира была однокомнатной, но исходная планировка и наличие нужного количества окон позволили сделать из однокомнатной квартиры-двухкомнатную! Задачей было разработать дизайн-проект квартиры, которая выставится на продажу. . Интерьер сделан фоновым, чтобы будущие владельцы могли добавить индивидуальности и характера через декор, аксессуары и предметы искусства.
Год реализации: 2022
г. Нижний Новгород, улица Славянская
23 фотографии
























