ЖК Перемена
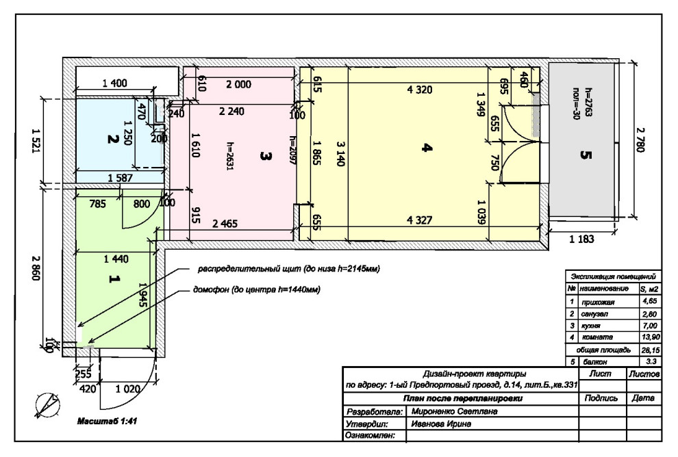
Квартира расположена в доме Жилого комплекса «Перемена» - проект компании «Петрополь». . Квартира, общей площадью 28,2 м2, с ориентацией окон на ЮЗ, расположена на 13-м этаже 16-х этажного секции здания. . Предназначена для проживания одной взрослой женщины, переехавшей из трехкомнатной квартиры. Пожеланием заказчицы было создание максимального количества систем хранения.Квартира сдана без отделки имеет следующее «предчистовое» состояние: стяжка пола, монолитные потолки без штукатурки и шпаклёвки, счетчики на воду, прокладка проводов радио, телефона, ТВ – до квартирного коридора. Такие элементы, как стеклопакеты, отдельная электропроводка к месту подключения плиты, дверь, звонок, датчики пожарной сигнализации и трубка домофона. . Одним из плюсов оснастки дома является система отопления. Все трубы скрыты в полу, а отводы расположены непосредственно у радиаторов. Кроме того, все радиаторы снабжены терморегуляторами.
17 фотографий

















