ЖК "Олимпийская деревня"
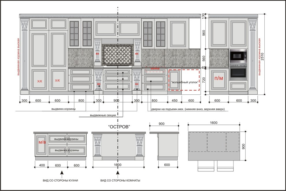
Квартира 250 кв.м. в таунхаусе. Год реализации 2015-2016 г. . Консерватизм в интерьере не противится новому, но и не гонится за модой – ТЗ заказчиков. . Все столярные изделия (корпусная мебель, стеновые декоративные панели, панели из натурального шпона, двери, плинтуса и т.д) — изготовлены по эскизам автора проекта. . Подоконники, столешницы выполнены из мрамора Imperador Light, Imperador Dark. Одна из стен лестничного пролета между этажами оформлена слэбами оникса с подсветкой. Мягкая мебель (диваны, кровати) следующих брендов: Keoma, Epoque, Эстетика и др. Светильники: ММ Lampadari, Illuminati, Fabian, Shonbek и др. Керамогранит, мозаика: Gardenia orchidea, Сasalgrande padana , Skalini, Vallelunga, Рetre antiqua. Сантехника: Villeroy & boch, Нatria g-full. Встраиваемая техника для кухни: Smeg . Обои: Аsanderus. Текстиль: Daylight. .
80 фотографий


















































