ЖК "Лучи" г. Москва
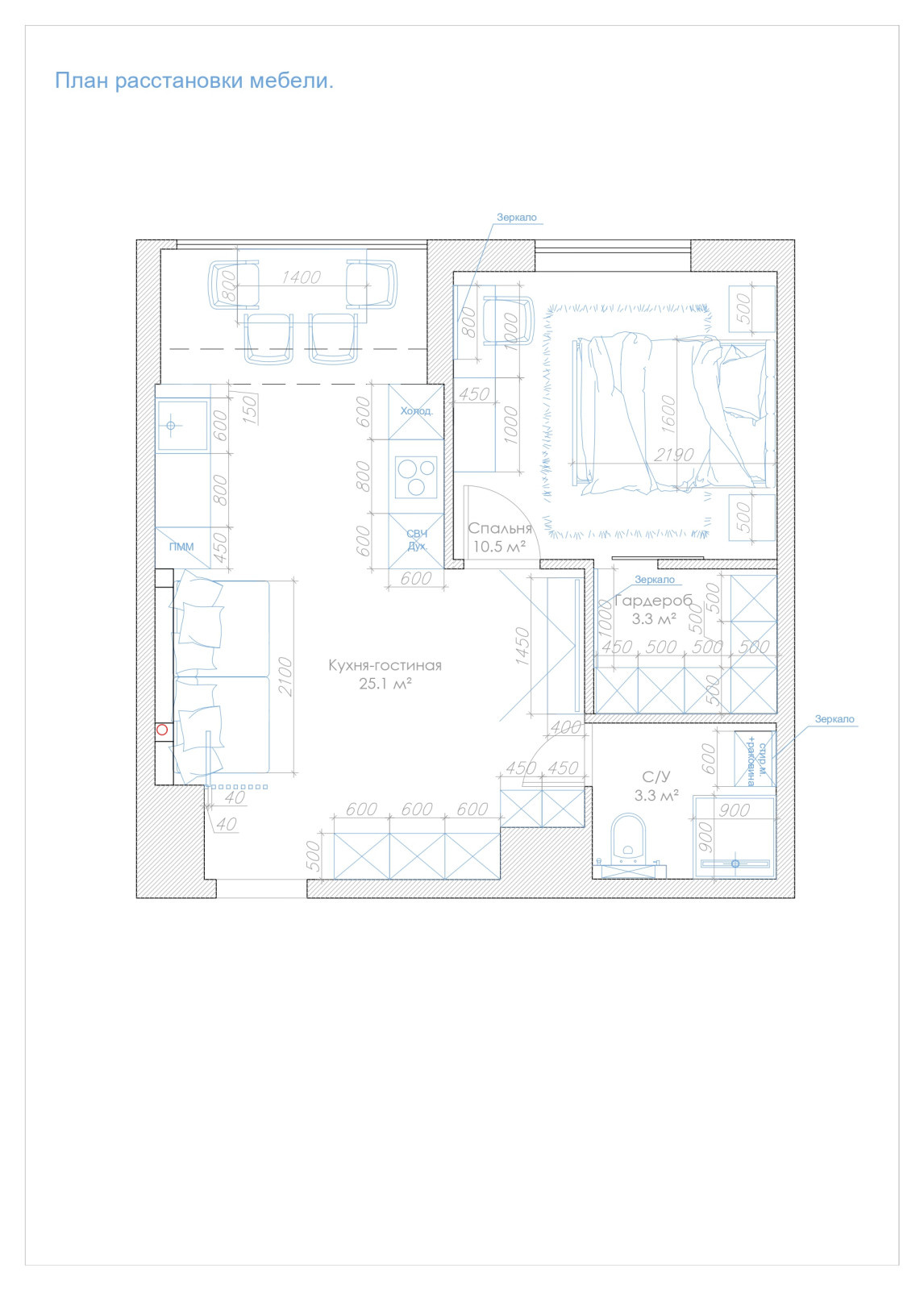
Квартира для молодой пары. Ребята любят принимать гостей по выходным, поэтому для них было важно из однокомнатной квартиры сделать многофункциональное пространство, в котором удобно будет отдыхать, работать удаленно, веселиться и готовить что-нибудь вкусное для своих частых гостей. Благодаря перепланировке мы смогли выделить отдельную спальню, гостиную зону, сделать практичную кухню и даже нашлось место под гардеробную. проект на стадии завершения.
Год реализации: 2021
Стоимость проектирования: 34 999 ₽
17 фотографий

















