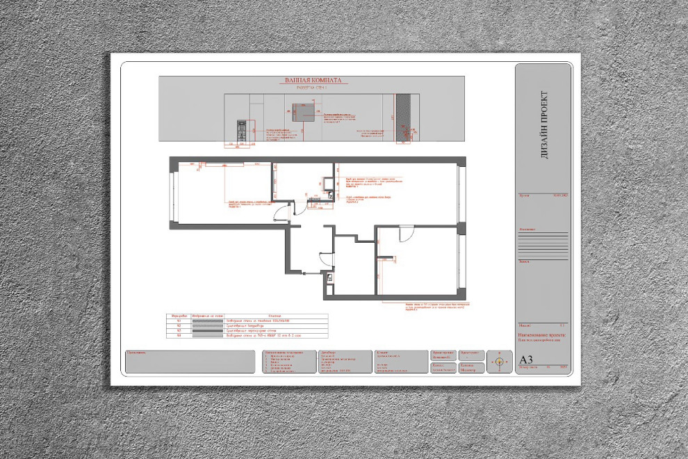
ЖК Кутузовский ”LIFE”
Я рассматриваю набор чертежей как искусную инструкцию, и в ней есть множество преимуществ в том, чтобы воспринимать архитектурный дизайн как вид искусства: . Четкая организация информация оправдывает высокую цену не потому, что она выглядит роскошно, а потому, что позволяет вам донести свои идеи до тех, кого вы ожидаете заинтересовать, профинансировать и усовершенствовать свою работу.
Стоимость проектирования: 157 500 ₽
г. Москва, Гжатская улица, Западный административный округ
5 фотографий






