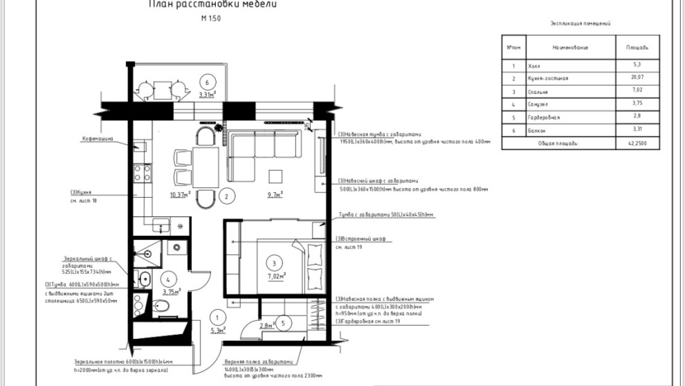
Этот проект наполнен стилем и уютом. Функционально решено планировочное решение пространства.

Год реализации: 2019
photo

9 фотографий

IMG_1693.PNG
IMG_1693.PNG
IMG_1694.PNG
IMG_1694.PNG
IMG_1690.PNG
IMG_1690.PNG
IMG_1619.PNG
IMG_1619.PNG
IMG_1620.PNG
IMG_1620.PNG
IMG_1703.PNG
IMG_1703.PNG
IMG_1704.PNG
IMG_1704.PNG
IMG_1706.PNG
IMG_1706.PNG
IMG_1707.PNG
IMG_1707.PNG
Фоновое изображение профиля Alena Levina
Фото профиля Alena Levina

Alena LevinaAlena Levina

Дизайнеры интерьера

Контакты