ЖК"Город набережных"
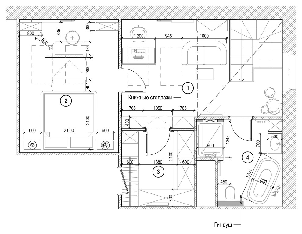
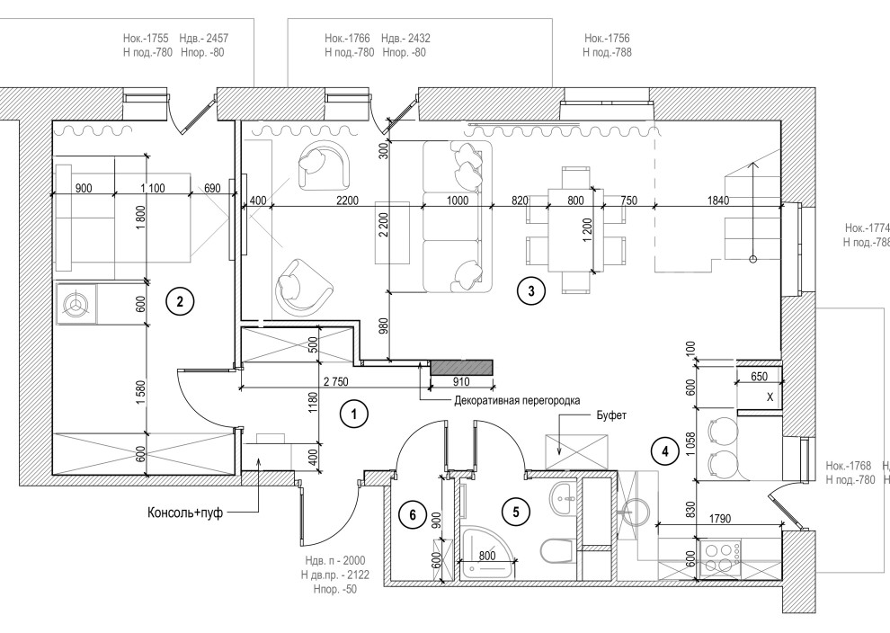
Проект двухуровневой квартиры в ЖК "Город набережных". В оформлении интерьера я совместила современную классику с элементами лофта, разбавив нежностью Прованса.
Год реализации: 2018
41 фотография
Проект двухуровневой квартиры в ЖК "Город набережных". В оформлении интерьера я совместила современную классику с элементами лофта, разбавив нежностью Прованса.
41 фотография
