ЖК Георг Ландрин
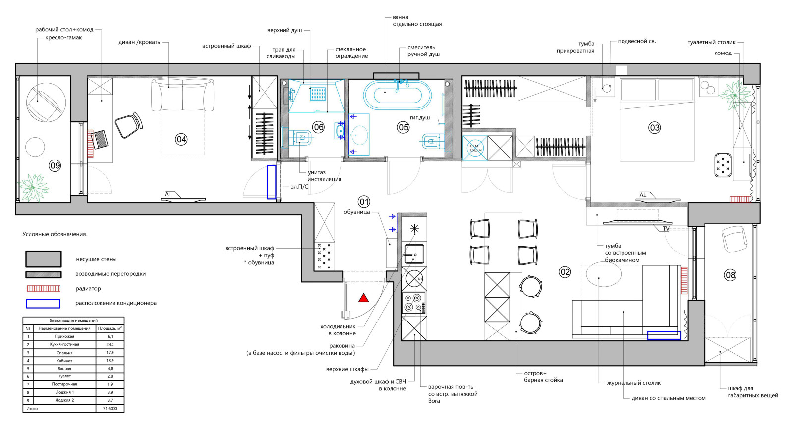
Квартира 70 кв.м. для молодой семейной пары. Стояла задача из двухкомнатной квартиры сделать евро-трёшку. Перенести кухню и совместить ее с гостиной, увеличив тем самым площади спален и оставить место для гардеробной. Заказчики хотели видеть интерьер в темных тонах, чтобы присутствовало ощущение уединенности и покоя. Что бы подчеркнуть эту идею использовали встроенный биокамин. . В санузлах так же прослеживается эта идея, оба помещения похожи по цветовой гамме, но разные по функции и задаче. Так душевая берет на себя задачу быстро освежиться ,например с утра. А в ванной комнате приятно провести время и расслабиться после трудового дня. .
Год реализации: 2020
Стоимость проектирования: 5 250 000 ₽
27 фотографий



























