ЖК Дискавери
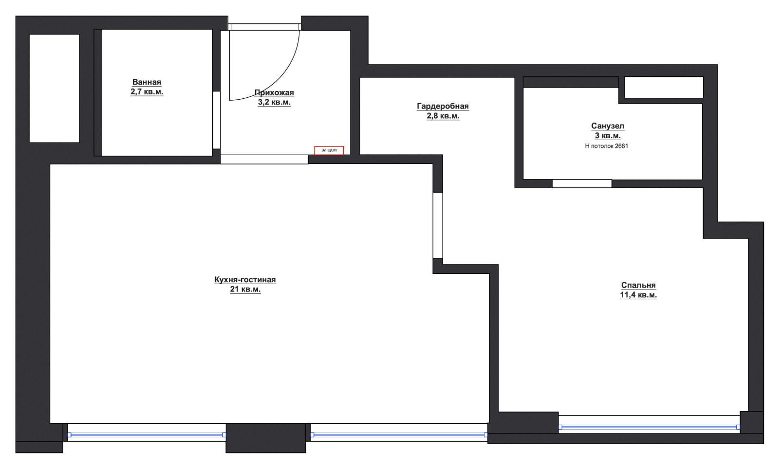
Квартира 44 кв.м. . . Задачи: . Владельцы этой квартиры в московском жилом комплексе Discovery — молодая семейная пара. Он —программист. Она — менеджер по закупкам. . Застройщик сдавал квартиру с предчистовой отделкой и со всеми электро- и сантехническими выводами. . Заказчики не хотели менять планировку и расположение выводов, поэтому задача стояла: использовать каждый квадратный метр "под себя". . Среди пожеланий было уместить место отдыха, обеденную и рабочую зону в гостиной, в спальне оборудовать гардеробную и дополнительный шкаф, оставить место для детской кроватки на будущее. В ванной обязательно расположить ванну. . . Планировка . Изначальную планировку можно назвать евродвушкой. Это формат квартир с объединенной кухней-гостиной, небольшой комнатой. В этом случае планировку можно было считать оправданно удачной. В кухне-гостиной — целых два окна. Есть два санузла, один из которых при спальне. И также в спальне предусмотрен закуток под гардеробную. . . Отделка . Для отделки стен в основных помещениях выбрали обои под покраску. . В кухне-гостиной использовали несколько оттенков. Основной цвет стен — нейтральный, светлый серый. Рабочая зона выделена глубоким сине-зеленым оттенком. В спальне базовый оттенок стен — серо-зеленый. В изголовье кровати сделали акцент с помощью обоев с рисунком. . В санузле и ванной скомбинировали отделку из плитки и краски. . . Вся квартира держит единый цветовой тон — нейтральный фон и яркие акценты (в мебели, декоративных обоях за изголовьем кровати и в виде краски в ванной и санузле). Рабочая зона в гостиной выделена акцентным глубоким сине-зеленым цветом, он вместе с тепло-зеленым диваном создал очень удачный цветовой альянс. Как известно, зеленый цвет лучше всех остальных успокаивает и расслабляет, поэтому именно этот оттенок был выбран для стен спальни и как продолжение для санузла около спальни.
34 фотографии

































