ЖК Береговой
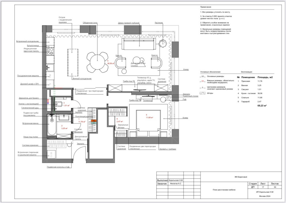
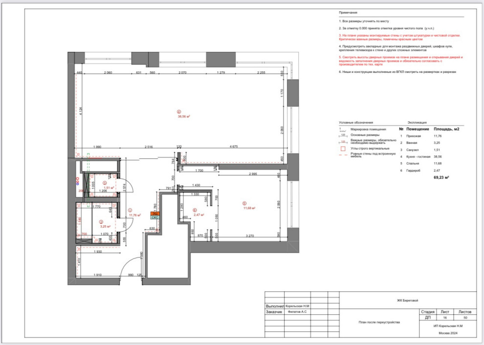
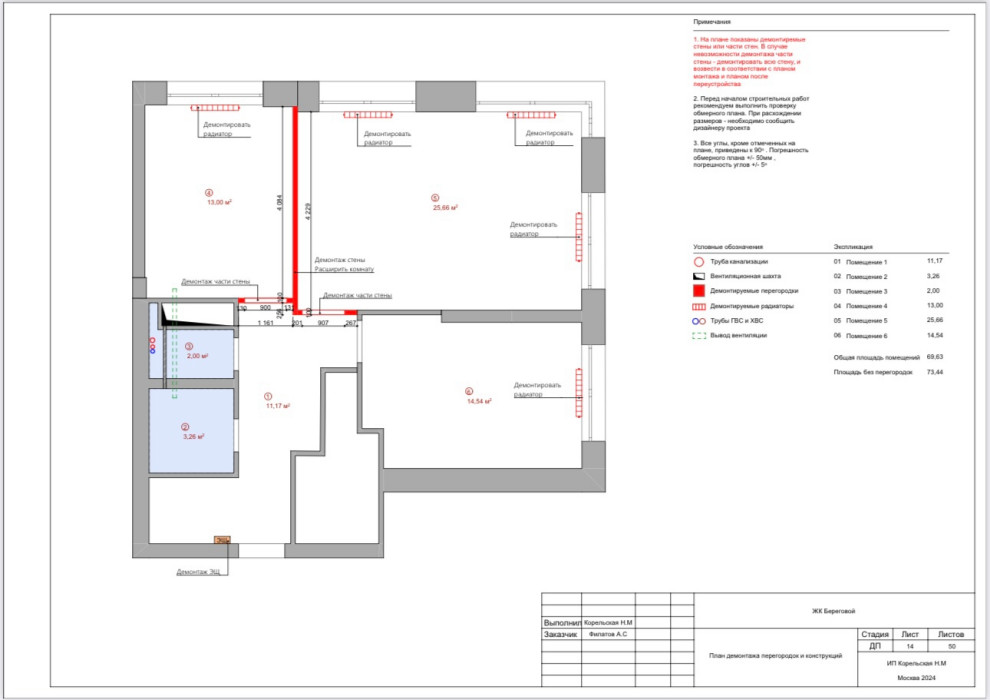
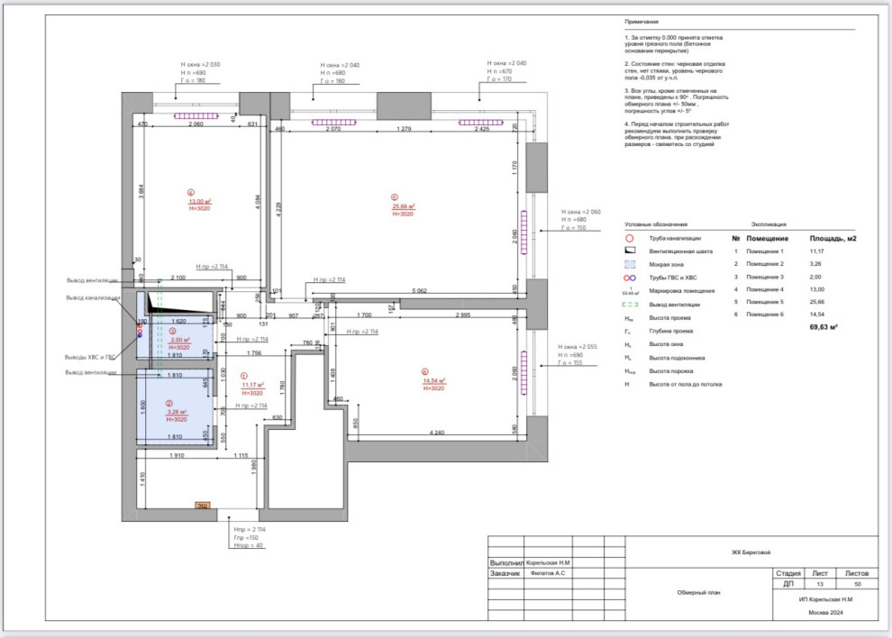
Квартира для молодой пары. Главным требованием было: светлые оттенки с добавление акцентов, светлое пространство, больше воздуха и мест хранения. . Необходимо было добавить гардеробную при спальне, остров на кухне отдельную обеденную зону с акцентной люстрой.
Стоимость проектирования: 12 250 000 ₽
11 фотографий











