ЖК Береговой
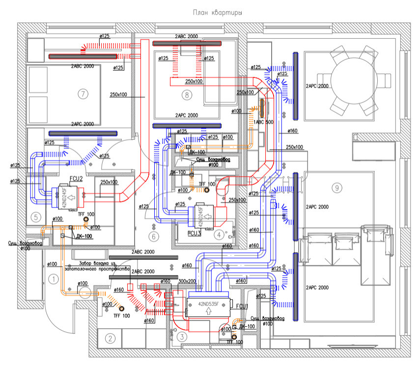
Система кондиционирования - фанкойлы Carrier, щелевые решетки Арктос, системах форсуночного увлажнения и туманообразования высокого давления.
Год реализации: 2021
Стоимость проектирования: 2 450 000 ₽
5 фотографий
Система кондиционирования - фанкойлы Carrier, щелевые решетки Арктос, системах форсуночного увлажнения и туманообразования высокого давления.
5 фотографий
