ЖК ''Академическая жемчужина'' 65м2
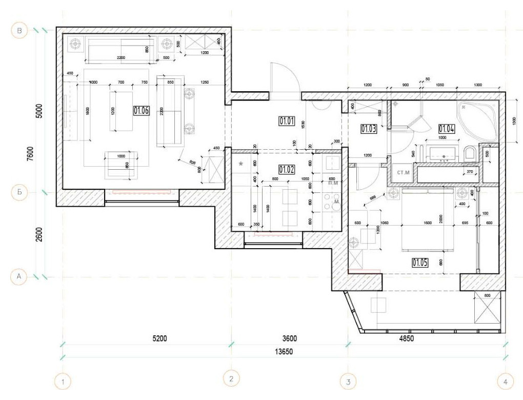
ЖК ''Академическая жемчужина'' 65м2. . Планировка ступенчатого вида с тремя окнами и множеством несущих стен, что ограничивало выбор планировочных решений. . Основной требованием заказчиков было сделать большую спальню с рабочей зоной и гардеробной. Для выполнения этой задачи спальню пришлось разместить в зону, где изначально от застройщик было по плану кухня. Для увеличения пространства спальни был присоединен и утеплен балкон. Кухню разместили в зону большой прихожей. Зона отдельной гостиной получилась достаточно большой, по современным меркам 24м2.Квартира выполнена в в стиле современный-минимализм с акцентными пятнами в виде декора. .
Год реализации: 2020
Стоимость проектирования: 135 000 ₽
г. Москва, 6 корпус 1 улица Дмитрия Ульянова, Юго-Западный административный округ
14 фотографий













