Жилой дом в Подмосковье
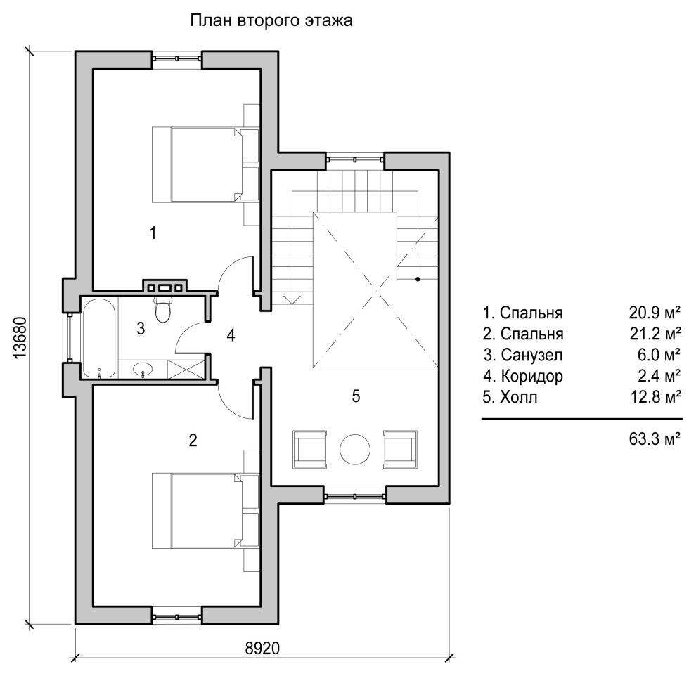
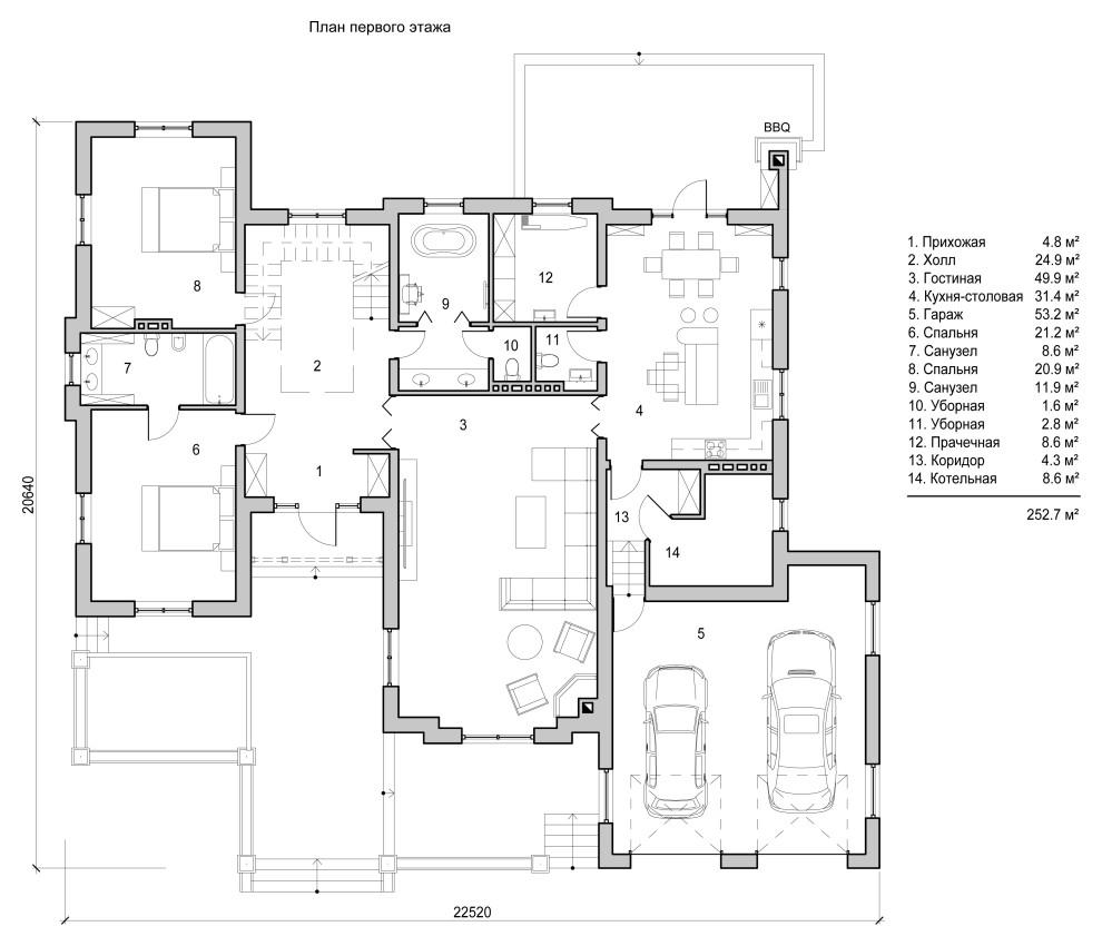
Частный дом расположен в Московской области. Посадка здания выполнена исходя из видовых характеристик участка, с основной ориентацией на реку. . Архитектура здания тяготеет к американским особнякам в стиле French country, здание выполнено из кирпича, имеет несколько террас, просторную гостиную. Спальня хозяев и гостевая спальня расположены на первом этаже, детский блок – на втором. Спальни ориентированы на юг, юго-запад, юго-восток, а хоз-блок, кухня, санузлы и гараж ориентированы на север, северо-восток. На северную сторону так же вынесена основная терраса у столовой и зоной барбекю. .
Год реализации: 2018
Стоимость проектирования: 275 000 ₽
5 фотографий






