Жилой дом в АМСТЕРДАМЕ 1
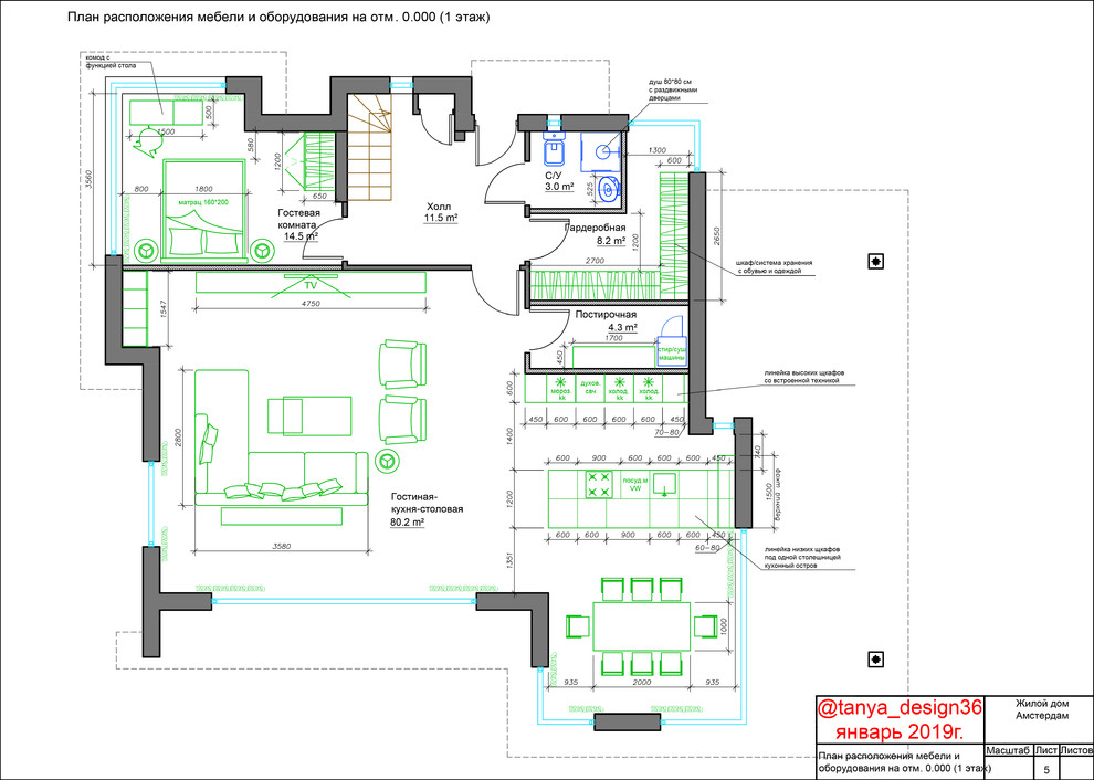
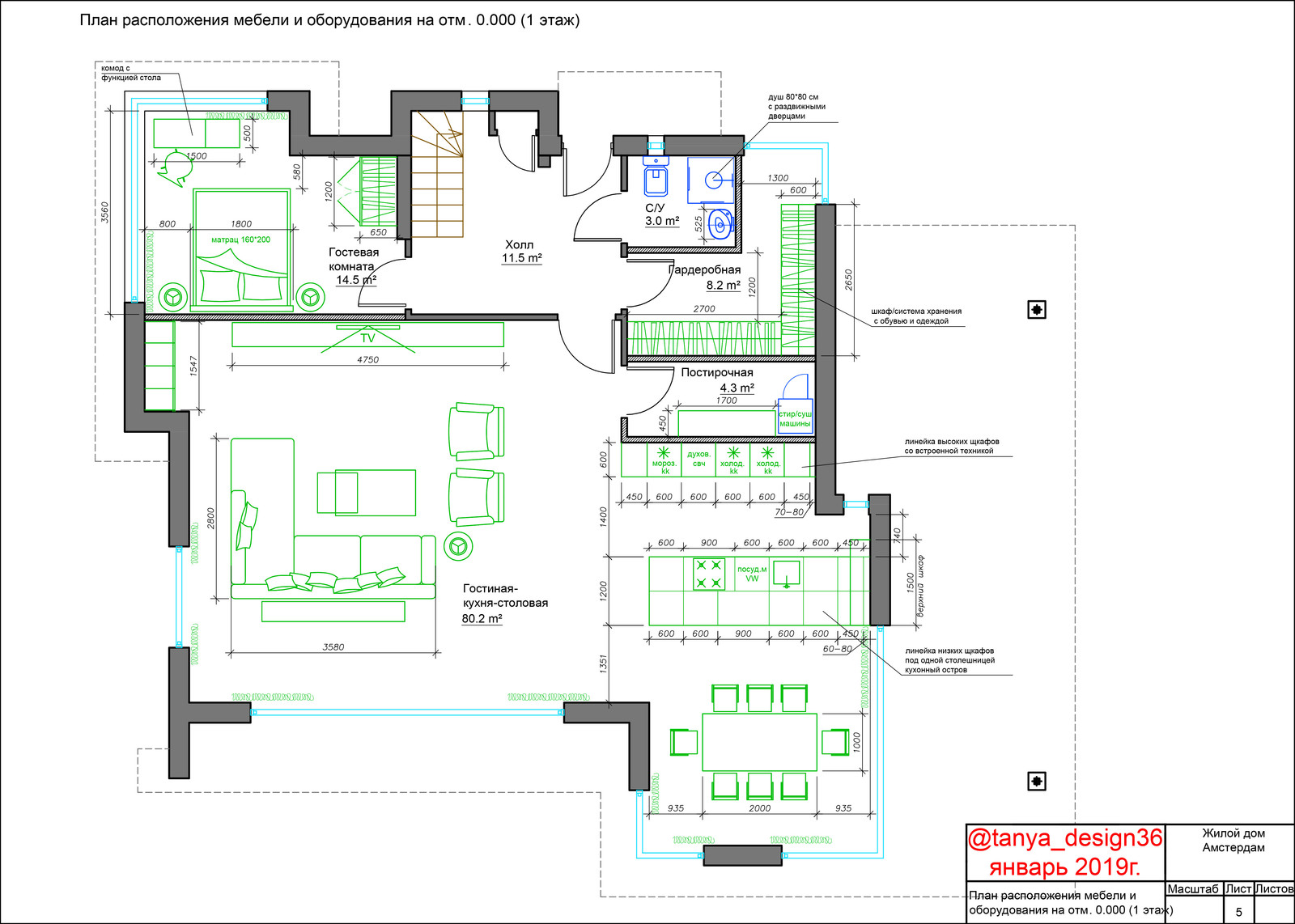
Дом состоит из трех этажей: на первом — общая открытая зона, на втором — спальная зона хозяев, на третьем расположены две квартиры-студии, которые сдаются в аренду. . Общая лестница, расположенная в холле, отделена от жилых комнат и открытой зоны на первом этаже и является отдельным композиционным элементом в планировке дома. . Основной задачей в этом проекте являлась функциональная организация 1 и 3 этажей, без изменения конструкции и фасадов здания. На 1 этаже необходимо было выделить кухню, столовую, гостиную, холл, гостевую комнату, гардеробную комнату, кладовую комнату (в Голландии она называется «при кухне»), один или 2 санузла. На 3 этаже необходимо было организовать студии для автономного проживания, учитывая особенность кровли и очень маленькую площадь. Задача была решена. . В результате проектирования поменялось место расположения кухонной рабочей зоны, появился кухонный остров и секции вертикальных шкафов . со встроенной бытовой техникой. Обеденный стол «переехал» в зону остекленного эркера и функционально все встало на свои места.
7 фотографий








