Жилой дом на компактном участке
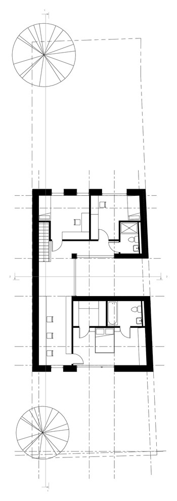
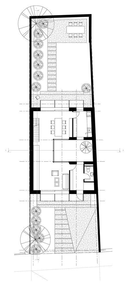
Цель данного проекта - формирование комфортной жилой среды и активной связи с окружением. . Участок имеет узкую вытянутую форму в плане и развивается вглубь квартала. Здание разделяет участок на две части, входная зона и внутренний двор. Во входной зоне размещается открытое парковочное место на один автомобиль, участок газона и небольшая площадка перед фасадом. Во внутреннем дворе размещается летняя площадка и небольшая терраса вдоль фасада. . Здание имеет двухэтажную структуру. Первый этаж играет роль общей жилой зоны и рассматривается, как единое пространство. Зону гостинной и столовой разделяет двухсветный зимний сад. Столовая, через раздвижной витраж, связана со внутренним двором. На втором этаже размещается главная спальня и две малые спальни. Коридор, связывающий эти помещения, выполняет роль общего кабинета. . Композиция фасадов выстроена на основе модульной схемы. Лаконичность решений подчеркивает взаимосвязи между объемными решениями, смещая акценты во взаимодействие поверхностей, материалов, света и тени. . Принцип эксплуатации // Принцип эксплуатации дома опирается на активное использование общего пространства и включение дворового пространства со все процессы. Это позволяет получить многофункциональное и насыщенное жилое пространство. Все жилые зоны раскрываются во внешнюю среду и образуют взаимодействие с ней. Двусветный зимний сад имеет открытую схему. Это позволяет транслировать состояние природы во внутреннее пространство дома.
10 фотографий











