Земляничные поляны
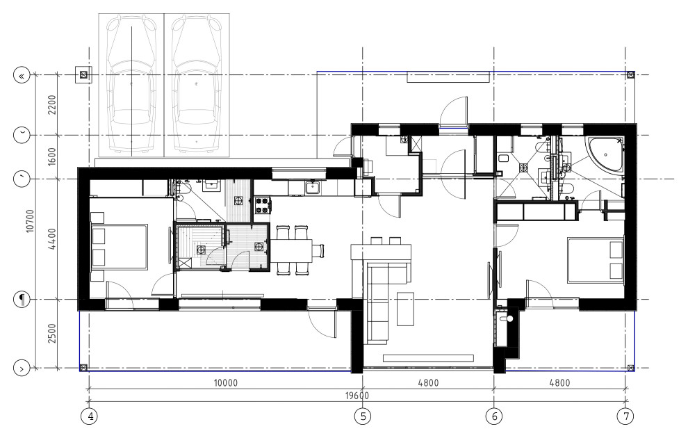
Небольшой жилой дом разработан как типовой проект для застройки жилой части гольф-клуба STRAWBERRY FIELDS . Это одноэтажное жилое здание с двускатной крышей. Объём гостиной выделен в композиции структурным остеклением на всю высоту этажа. Вилла состоит из совмещенной гостиной-столовой и двух спален. У каждой спальни имеется свой сан.узел. Также в здании организован общий сан.узел с выходом из гостиной и сауна с душевой. Гостиная и каждая спальня имеет свой выход на обширную террасу, кроме того терраса имеется при главном входе в здание. Крыша виллы является также навесом над террасами и над автостоянкой на две машины.
Год реализации: 2016
Стоимость проектирования: 135 000 ₽
27 фотографий




























