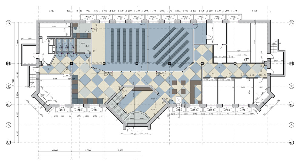
ЗАЛ КОНФЕРЕНЦИЙ И СЕМИНАРОВ КОМПАНИИ ООО “ДАТА+”
Год реализации: 2016
7 фотографий
7 фотографий

ИНТЕРЬЕРНЫЕ РЕШЕНИЯ АПАРТАМЕНТОВ. УЛИЦА МИШИНА
ИНТЕРЬЕРНЫЕ РЕШЕНИЯ АПАРТАМЕНТОВ. МОСКВА, ЖК МОСФИЛЬМОВСКИЙ
ИНТЕРЬЕРНЫЕ РЕШЕНИЯ АПАРТАМЕНТОВ. МОСКВА, ЖК ОБЫКНОВЕННОЕ ЧУДО
ИНТЕРЬЕРНЫЕ РЕШЕНИЯ ЗАГОРОДНОГО ДОМА. МО, НОВОГОРСК-7
ИНТЕРЬЕРНЫЕ РЕШЕНИЯ АПАРТАМЕНТОВ. МОСКВА, ЖК МОСФИЛЬМОВСКИЙ
АКТОВЫЙ ЗАЛ ИНСТИТУТА РОССЕЛЬХОЗНАДЗОРА ФБГУ “ВГНКИ”