Загородный дом в пос.Салтыковка
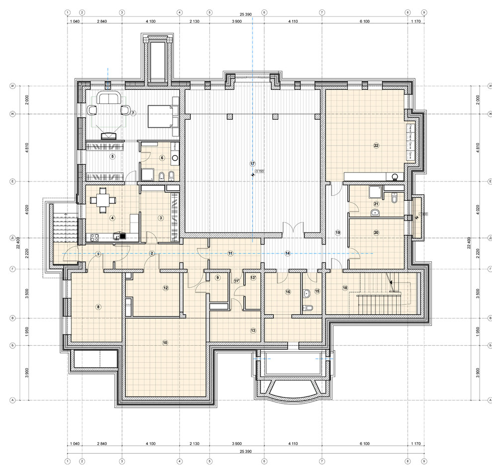
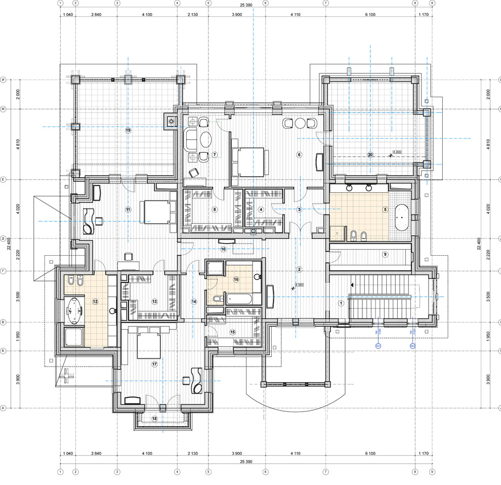
Салтыковка - старинное дачное место под Москвой и основная стилистическая идея исходит из продолжения архитектурных традиций, сложившихся в Москве и ее пригороде в нач.20 века. Пример современного решения особняка в стиле модерн с учётом преемственности таких значимых деталей, как настенная майолика с лилиями, «свободная» ковка ограждений и текучесть линий декора по фасаду. Автор вдохновился шедеврами Ф. Шехтеля и Л. Кекушева. Но прямых заимствований нет, все индивидуально, любовью отрисовано и выполнено. . Рациональное размещение основных помещений 1-го и 2-го этажей позволяет освободить место для трёх террас, зримо соединяющих интерьеры с природой по принципу «открытого плана». Этот проект включает в себя все важнейшие для загородного комфортного существования хозяйственные помещения, бильярдную с баром, расположенные в цокольном этаже, а большая светлая столовая-гостиная(76м2) первого этажа с обязательным камином является центром притяжения. . В цокольном этаже расположены в основном, служебные и хозяйственные помещения: . Квартира для прислуги с ванной, гардеробной, кухней и жилой комнатой, Бильярдная с баром, постирочная, гладильная, бойлерная, несколько кладовых и пресловутое хранилище для шуб. . На первом этаже имеются еще гостевая спальня со своей ванной и гардеробной, детская игровая комната, кабинет, кухня с двумя кладовыми и с отдельным входом для прислуги. Из кухни (39м2) удобный выход на крытую террасу с барбекю. . Второй этаж: мастер-спальня с будуаром, двумя гардеробными и ванной, две детских, каждая со своей ванной и гардеробной и две больших открытых террасы. Как и положено, все основные помещения дома (гостиная-столовая, мастер-спальня, кабинет, детская, все террасы) ориентированы строго на юг. . ТЭП: . Площадь цокольного этажа 398 м2 . Площадь 1 этажа 375 м2 . Площадь 2 этажа 290 м2 . ОБЩАЯ ПЛОЩАДЬ ДОМА 1063 м2
14 фотографий














