Загородный дом 200 кв.м. Королев
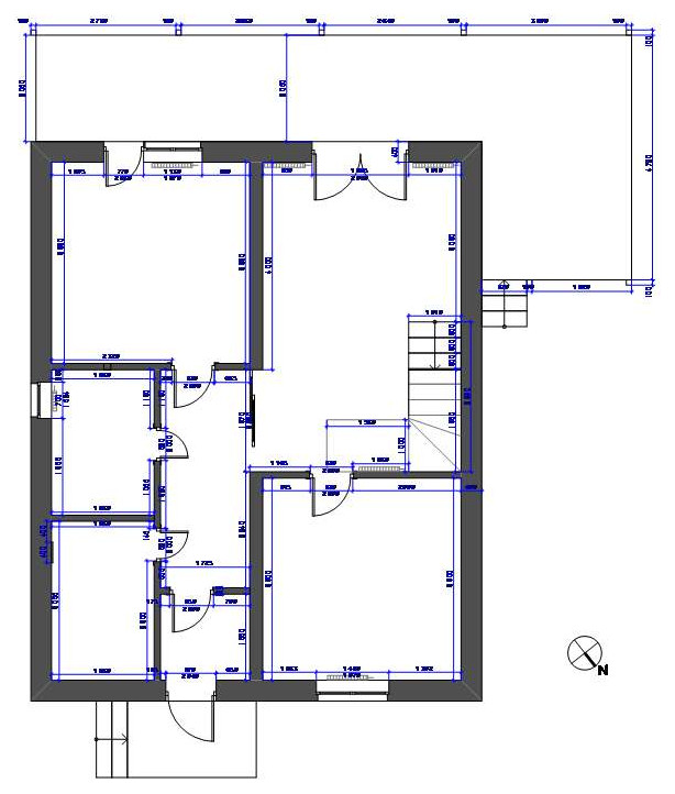
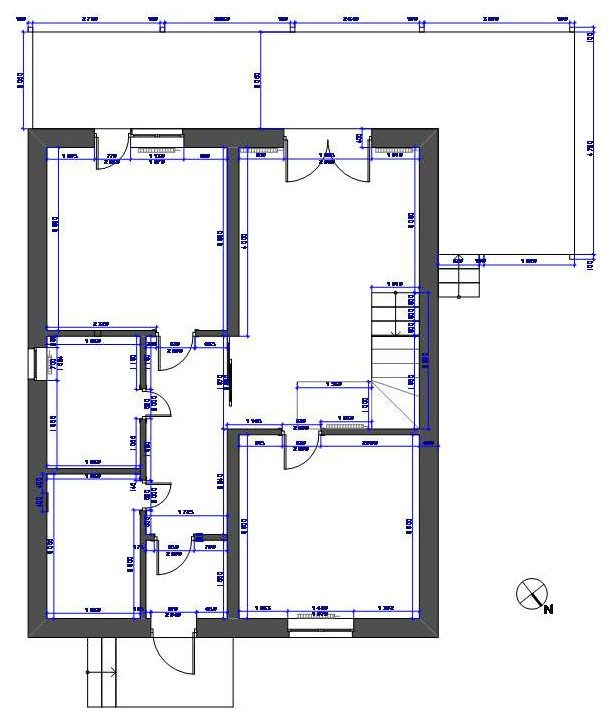
Новый проект небольшого загородного дома 200 кв. м. Гостиную и кухню мы совместили с террасой, тем самым добавили к полезной площади ещё 14,77 м2. . Утеплили террасу и убрали балконные двери и подоконные блоки. . Результат нашей работы - это создание современного образа жизни наших заказчиков.
Год реализации: 2022
Стоимость проектирования: 135 000 ₽
Стиль: Европейский
г. Королев, Московская обл, г Королёв, мкр Болшево, 4-й Гражданский пер
15 фотографий
















