Загородная усадьба из клееного бруса Комфорт-123
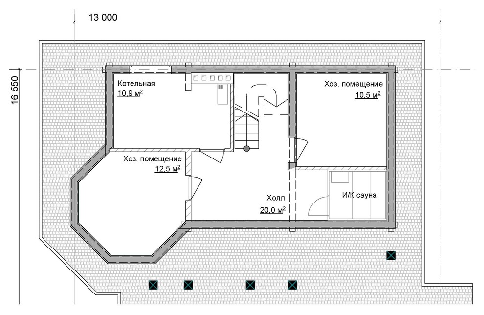
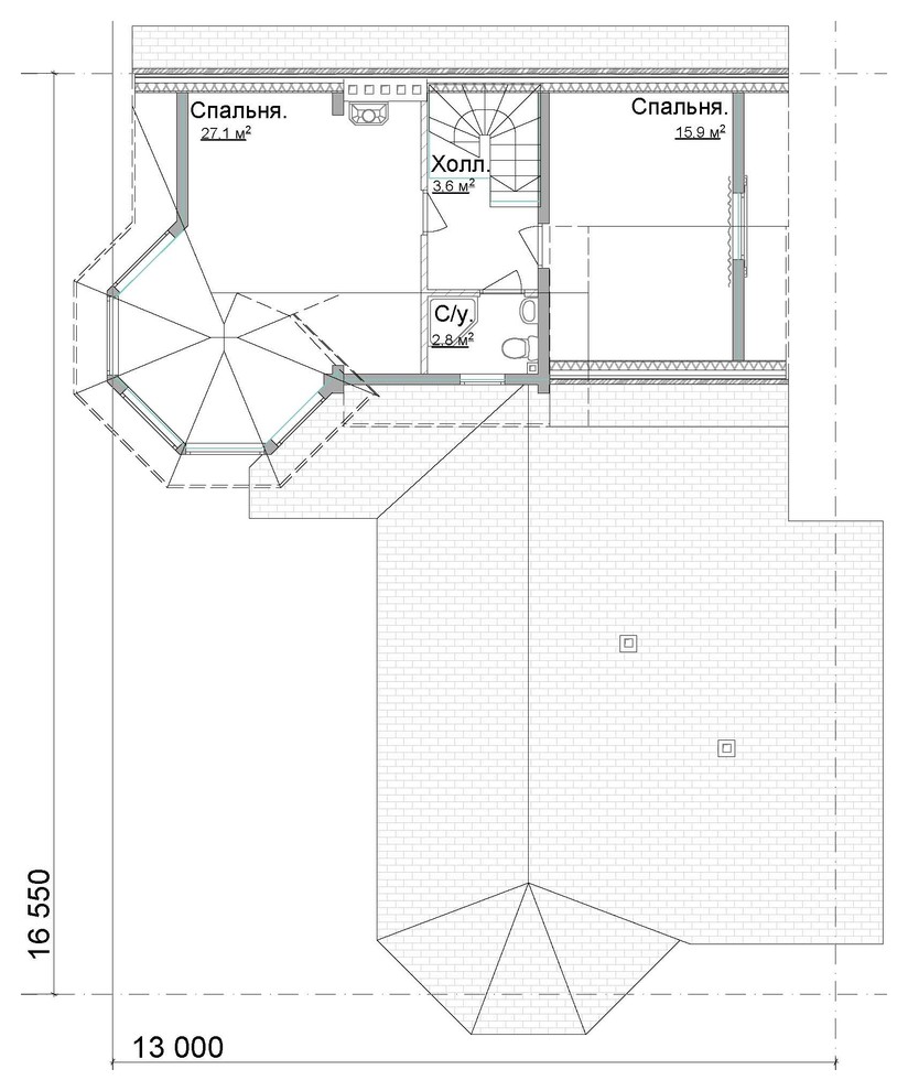
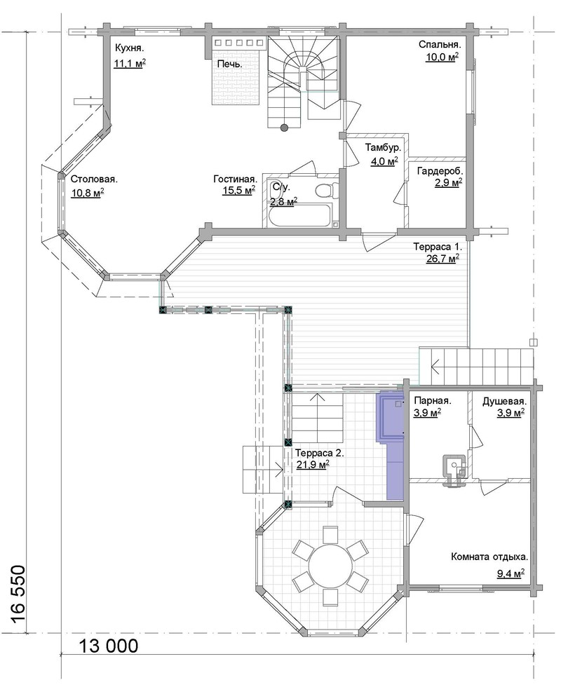
Уникальный по исполнению загородный комплекс из клееного бруса от компании МОГУТА с большим количеством окон, расположенных в эркерных зонах дома и веранды бани. Несмотря на свою компактность у этого комплекса достаточно большая площадь. Это обусловлено наличием цокольного этажа, попасть в который можно прямо из деревянного дома. На первом этаже будет размещена русская печь, а на втором небольшая чугунная печка. Терраса является переходом из дома в зону отдыха и барбекю и далее в баню. Проект самой бани предусматривает застекленную веранду, из окон которой открывается бесподобный вид на реку. . Общая площадь – 226,4 м2 . Цокольный этаж – 54 м2 . 1 этаж дом – 84 м2 . 1 этаж баня- 39 м2 . 2-эт – 49,4 м2 . Цокольный этаж . Котельная- 10,9 . Хоз. помещение-10,5 . Хоз. Помещение-12,5 . Холл-20 . 1 этаж . Гостиная – 15,5 . Кухня – 11,1 . Столовая- 10,8 . с\у – 2,8 . Спальня – 10 . гардеробная – 2,9 . Тамбур – 4,0 . Терраса – 26,7 . Терраса бани– 21,9 . Парная – 3,9 . Душевая – 3,9 . Комната отдыха-9,4 . 2 этаж . Спальня – 27,1 . Холл-3,6 . Спальня -15,9 . Спальня – 16,8 . с\у – 2,8 . Цена в клееном брусе толщиной 200 мм – от 4 850 000 руб . Цена в сухом профилированном брусе толщиной 200 мм – от 4 370 000 руб . Цена в оцилиндрованном бревне ф240 мм – от 4 100 000 руб . . В стоимость входит: . - эскизный проект . – Цокольный этаж +плита на буронабивных сваях . - стены из бруса или бревна . - черновые полы . - крыша из битумной черепицы "под ключ" . https://youtu.be/Su5H5fE5bqw
7 фотографий







