Z301 Комфортный одноэтажный дом с большой террасой.
Год реализации: 2020
3 фотографии
3 фотографии

Zx12 Комфортабельный двухэтажный дом традиционной формы с гаражом.
Z18 Элегантный классический дом с изящными мансардными окнами и балконами.
Z24 Практичный одноэтажный дом с 4-х скатной кровлей и угловым окном в кухне.
Zz2 Просторный проект двухэтажного дома с удобной планировкой.
Z273 Проект стильного одноэтажного дома в классическом стиле.
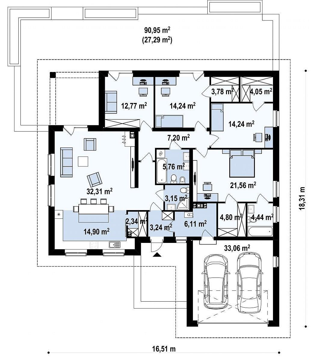
Z200 Удобный одноэтажный дом с гаражом для двух автомобилей, с большой площадью