Я люблю тебя жизнь!
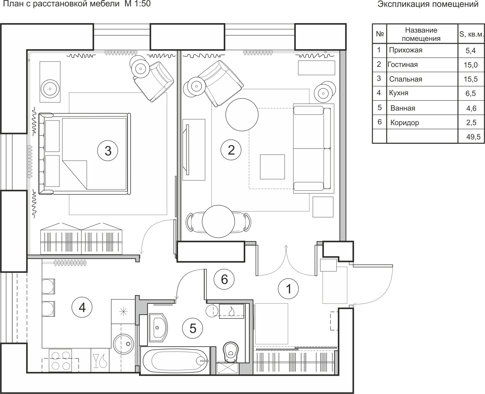
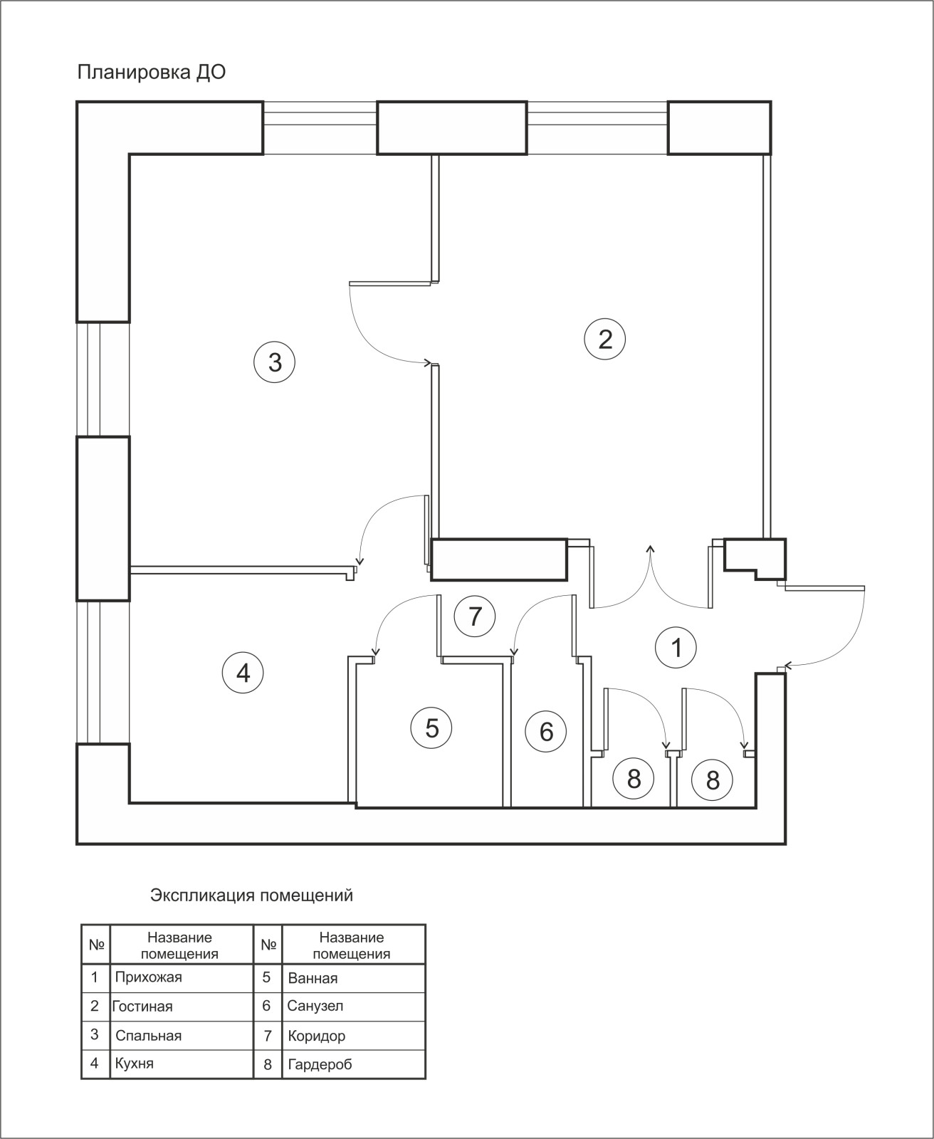
Концепт: интернациональное универсальное жилище в историческом центре, с одной стороны оно может быть где угодно, с другой понятно, что это в Екатеринбурге. Заказчик: молодой человек, любитель путешествий, работает над продвижением гастрономических и спортивных проектов, владелец чихающего шарпея. Ещё на стадии выбора квартиры для покупки была выбрана оптимальная планировка, поэтому изменения в ней минимальные. Были объединены ванная и санузел, в кухне убрали входную дверь, в прихожей - узкую кладовку-шкаф. Звукоизолировали стену граничащую с квартирой соседей. По запросу владельца отделочные материалы использованы достаточно бюджетные, легкие в уходе. Нижнюю часть стен в прихожей, коридоре и кухне закрыли лаком, теперь шарпей хозяина может спокойно чихать на стены – их легко помыть, даже если сделать это не сразу. Помимо колористического решения (сбалансированные оттенки природных цветов + контрастные яркие детали), большое внимание уделялось тактильной составляющей материалов. . Фотосъёмка: Михаил Поморцев . Стилист съёмки: Ирина Чертихина
12 фотографий












